Form EHS-16 Application for Approval as a New Jersey Lead Course Instructor / Training Manager - New Jersey

Form EHS-16 Application for Approval as a New Jersey Lead Course Instructor / Training Manager - New Jersey

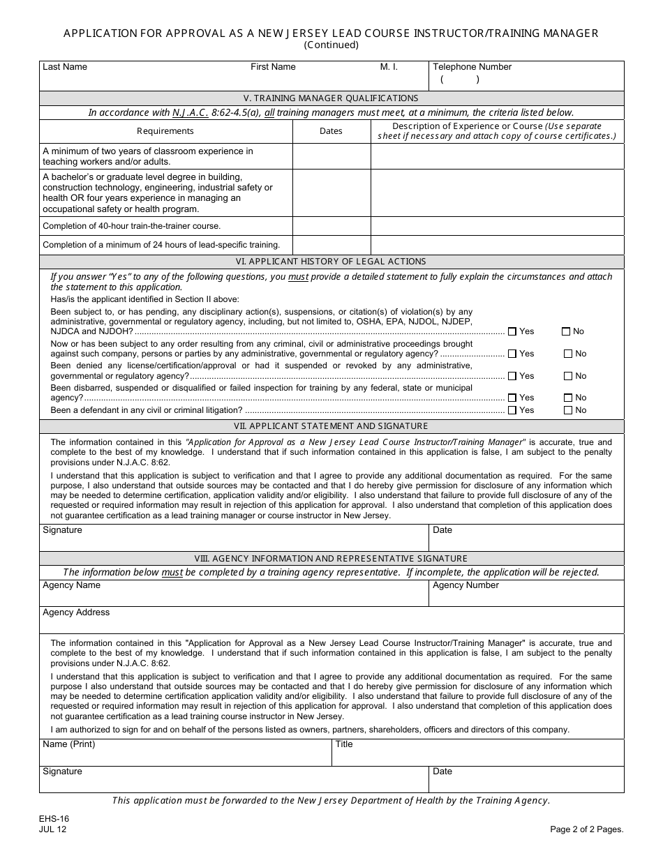
What Is Form EHS-16?

This is a legal form that was released by the New Jersey Department of Health - a government authority operating within New Jersey. As of today, no separate filing guidelines for the form are provided by the issuing department.

FAQ

Q: What is Form EHS-16?
A: Form EHS-16 is the application for approval as a New Jersey Lead Course Instructor/Training Manager in New Jersey.

Q: What is the purpose of Form EHS-16?
A: The purpose of Form EHS-16 is to apply for approval as a Lead Course Instructor/Training Manager in New Jersey.

Q: Who needs to fill out Form EHS-16?
A: Individuals who want to become approved Lead Course Instructors/Training Managers in New Jersey need to fill out Form EHS-16.

Q: What information do I need to provide on Form EHS-16?
A: You will need to provide personal and contact information, education and experience details, as well as complete the required sections and certifications on Form EHS-16.

Q: Are there any fees associated with Form EHS-16?
A: Yes, there is a fee associated with the Form EHS-16 application. Please refer to the instructions on the form for the current fee amount and payment instructions.

Q: How long does it take to process Form EHS-16?
A: The processing time for Form EHS-16 may vary. It is recommended to submit the application well in advance to allow sufficient time for processing.

Q: What happens after I submit Form EHS-16?
A: After submitting Form EHS-16, it will be reviewed by the New Jersey Department of Health. You will be informed of the approval status and next steps.

Q: Can I appeal a denial of my Form EHS-16 application?
A: Yes, if your Form EHS-16 application is denied, you have the right to appeal the decision. Instructions on how to appeal will be provided with the denial notification.

ADVERTISEMENT

Form Details:

  • Released on July 1, 2012;
  • The latest edition provided by the New Jersey Department of Health;
  • Easy to use and ready to print;
  • Quick to customize;
  • Compatible with most PDF-viewing applications;
  • Fill out the form in our online filing application.

Download a printable version of Form EHS-16 by clicking the link below or browse more documents and templates provided by the New Jersey Department of Health.

Download Form EHS-16 Application for Approval as a New Jersey Lead Course Instructor / Training Manager - New Jersey

4.8 of 5 (50 votes)
  • Form EHS-16 Application for Approval as a New Jersey Lead Course Instructor/Training Manager - New Jersey

    1

  • Form EHS-16 Application for Approval as a New Jersey Lead Course Instructor/Training Manager - New Jersey, Page 2

    2

  • Form EHS-16 Application for Approval as a New Jersey Lead Course Instructor / Training Manager - New Jersey, Page 1
  • Form EHS-16 Application for Approval as a New Jersey Lead Course Instructor / Training Manager - New Jersey, Page 2
Prev 1 2 Next
ADVERTISEMENT

Related Documents