South Dakota Weatherization Assistance Application - South Dakota

South Dakota Weatherization Assistance Application - South Dakota

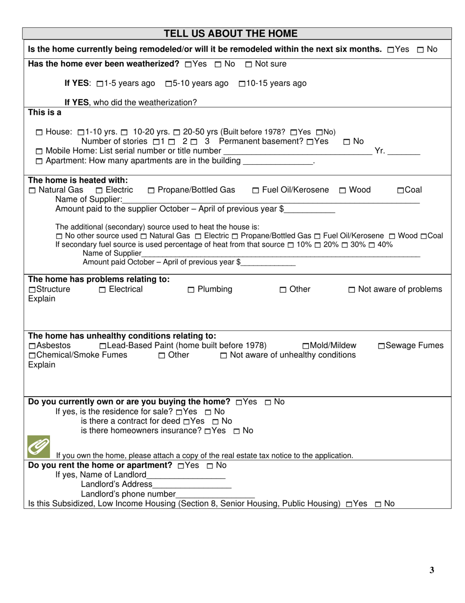
South Dakota Weatherization Assistance Application is a legal document that was released by the South Dakota Department of Social Services - a government authority operating within South Dakota.

FAQ

Q: What is the South Dakota Weatherization Assistance Application?
A: The South Dakota Weatherization Assistance Application is a program that helps low-income residents of South Dakota make their homes more energy efficient.

Q: Who is eligible for the South Dakota Weatherization Assistance Program?
A: Low-income households in South Dakota, including homeowners and renters, may be eligible for the program.

Q: What services are provided through the South Dakota Weatherization Assistance Program?
A: The program offers services such as insulation, sealing air leaks, furnace repair and replacement, and energy education.

Q: How can I apply for the South Dakota Weatherization Assistance Program?
A: You can apply for the program by completing the South Dakota Weatherization Assistance Application and submitting it to the designated agency in your area.

Q: Is there a cost for the South Dakota Weatherization Assistance Program?
A: The program is provided at no cost to eligible households.

ADVERTISEMENT

Form Details:

  • The latest edition currently provided by the South Dakota Department of Social Services;
  • Ready to use and print;
  • Easy to customize;
  • Compatible with most PDF-viewing applications;
  • Fill out the form in our online filing application.

Download a printable version of the form by clicking the link below or browse more documents and templates provided by the South Dakota Department of Social Services.

Download South Dakota Weatherization Assistance Application - South Dakota

4.8 of 5 (43 votes)
  • South Dakota Weatherization Assistance Application - South Dakota

    1

  • South Dakota Weatherization Assistance Application - South Dakota, Page 2

    2

  • South Dakota Weatherization Assistance Application - South Dakota, Page 3

    3

  • South Dakota Weatherization Assistance Application - South Dakota, Page 4

    4

  • South Dakota Weatherization Assistance Application - South Dakota, Page 5

    5

  • South Dakota Weatherization Assistance Application - South Dakota, Page 1
  • South Dakota Weatherization Assistance Application - South Dakota, Page 2
  • South Dakota Weatherization Assistance Application - South Dakota, Page 3
  • South Dakota Weatherization Assistance Application - South Dakota, Page 4
  • South Dakota Weatherization Assistance Application - South Dakota, Page 5
Prev 1 2 3 4 5 Next
ADVERTISEMENT

Related Documents