Form F418-052-303 Alleged Safety or Health Hazards - Washington (Somali)

Form F418-052-303 Alleged Safety or Health Hazards - Washington (Somali)

This is a legal form that was released by the Washington State Department of Labor and Industries - a government authority operating within Washington.

The document is provided in Somali. As of today, no separate filing guidelines for the form are provided by the issuing department.

FAQ

Q: What is Form F418-052-303?
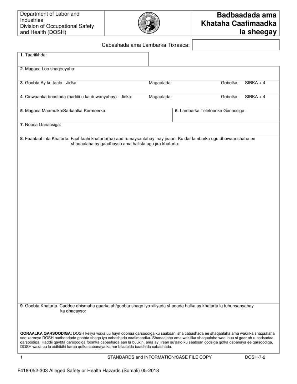
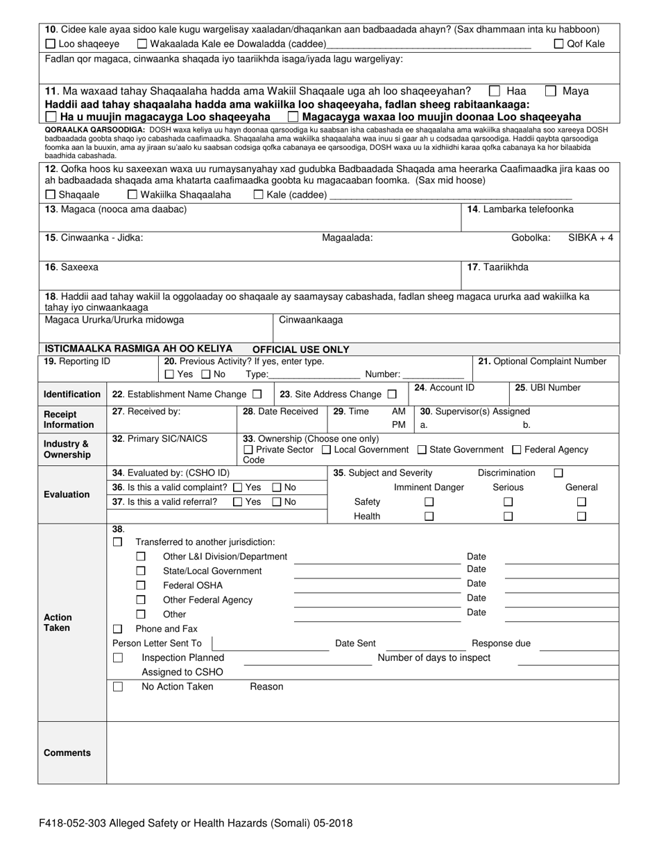
A: Form F418-052-303 is a document used in Washington to report alleged safety or health hazards.

Q: What is the purpose of Form F418-052-303?
A: The purpose of Form F418-052-303 is to report safety or health hazards that are alleged to exist in a specific location.

Q: Who can use Form F418-052-303?
A: Anyone in Washington who wants to report alleged safety or health hazards can use Form F418-052-303.

Q: Is Form F418-052-303 specific to any language?
A: Yes, Form F418-052-303 is specific to the Somali language.

Q: How should I fill out Form F418-052-303?
A: You should provide all the requested information on the form accurately and completely.

Q: What should I do after filling out Form F418-052-303?
A: After filling out Form F418-052-303, you should submit it to the appropriate authorities in Washington.

Q: Is there a deadline for submitting Form F418-052-303?
A: The document does not specify a deadline for submitting Form F418-052-303. Please check with the appropriate authorities in Washington for any specific deadlines.

Q: What happens after I submit Form F418-052-303?
A: After you submit Form F418-052-303, the appropriate authorities will review the allegations and take the necessary actions to address the reported safety or health hazards.

Q: Is there a fee for submitting Form F418-052-303?
A: The document does not mention any fee for submitting Form F418-052-303. Please check with the appropriate authorities in Washington for any applicable fees.

ADVERTISEMENT

Form Details:

  • Released on May 1, 2018;
  • The latest edition provided by the Washington State Department of Labor and Industries;
  • Easy to use and ready to print;
  • Quick to customize;
  • Compatible with most PDF-viewing applications;

Download a printable version of Form F418-052-303 by clicking the link below or browse more documents and templates provided by the Washington State Department of Labor and Industries.

Download Form F418-052-303 Alleged Safety or Health Hazards - Washington (Somali)

4.4 of 5 (85 votes)
  • Form F418-052-303 Alleged Safety or Health Hazards - Washington (Somali)

    1

  • Form F418-052-303 Alleged Safety or Health Hazards - Washington (Somali), Page 2

    2

  • Form F418-052-303 Alleged Safety or Health Hazards - Washington (Somali), Page 3

    3

  • Form F418-052-303 Alleged Safety or Health Hazards - Washington (Somali), Page 4

    4

  • Form F418-052-303 Alleged Safety or Health Hazards - Washington (Somali), Page 1
  • Form F418-052-303 Alleged Safety or Health Hazards - Washington (Somali), Page 2
  • Form F418-052-303 Alleged Safety or Health Hazards - Washington (Somali), Page 3
  • Form F418-052-303 Alleged Safety or Health Hazards - Washington (Somali), Page 4
Prev 1 2 3 4 Next
ADVERTISEMENT

Related Documents