Form F418-052-294 Alleged Safety or Health Hazards - Washington (Russian)

Form F418-052-294 Alleged Safety or Health Hazards - Washington (Russian)

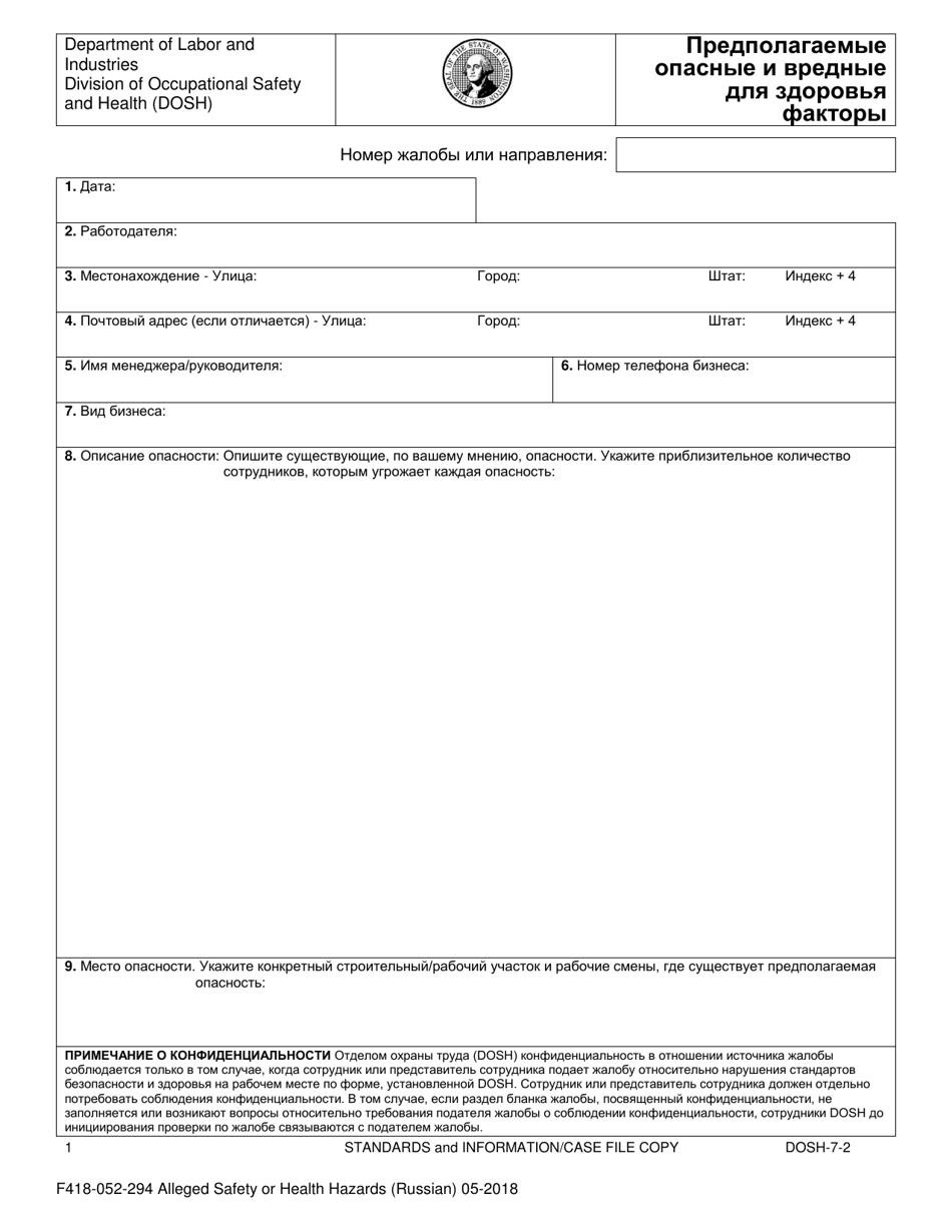
This is a legal form that was released by the Washington State Department of Labor and Industries - a government authority operating within Washington.

The document is provided in Russian. As of today, no separate filing guidelines for the form are provided by the issuing department.

FAQ

Q: What is Form F418-052-294?
A: Form F418-052-294 is a document used in Washington to report alleged safety or health hazards.

Q: What should I do if I encounter safety or health hazards in Washington?
A: You should fill out Form F418-052-294 to report the alleged hazards.

Q: Is Form F418-052-294 specific to Russian language?
A: Yes, this particular form is available in Russian.

Q: What information should I provide on Form F418-052-294?
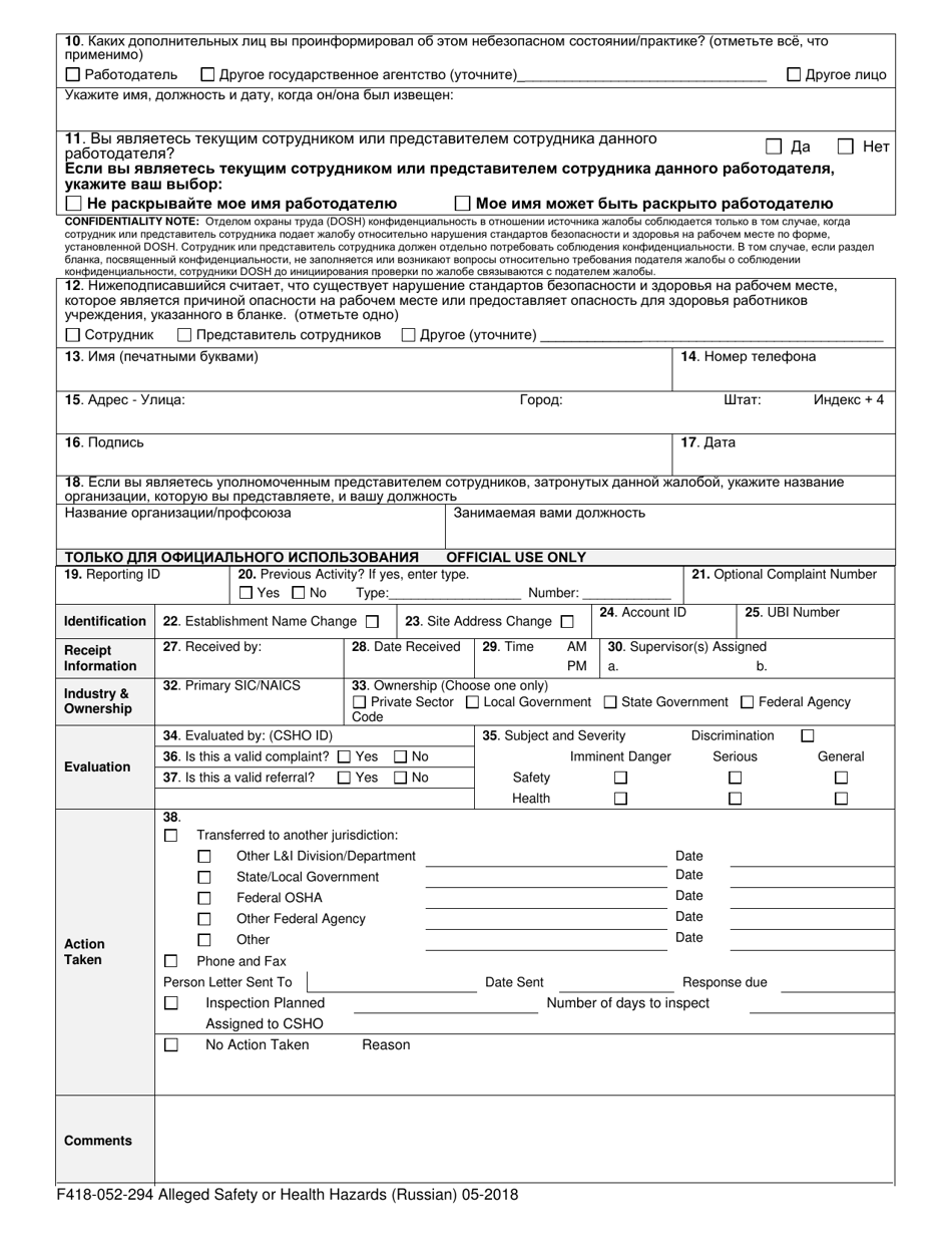
A: You should provide detailed information about the alleged safety or health hazards, as well as your contact information and any witnesses if applicable.

ADVERTISEMENT

Form Details:

  • Released on May 1, 2018;
  • The latest edition provided by the Washington State Department of Labor and Industries;
  • Easy to use and ready to print;
  • Quick to customize;
  • Compatible with most PDF-viewing applications;

Download a printable version of Form F418-052-294 by clicking the link below or browse more documents and templates provided by the Washington State Department of Labor and Industries.

Download Form F418-052-294 Alleged Safety or Health Hazards - Washington (Russian)

4.6 of 5 (74 votes)
  • Form F418-052-294 Alleged Safety or Health Hazards - Washington (Russian)

    1

  • Form F418-052-294 Alleged Safety or Health Hazards - Washington (Russian), Page 2

    2

  • Form F418-052-294 Alleged Safety or Health Hazards - Washington (Russian), Page 3

    3

  • Form F418-052-294 Alleged Safety or Health Hazards - Washington (Russian), Page 4

    4

  • Form F418-052-294 Alleged Safety or Health Hazards - Washington (Russian), Page 1
  • Form F418-052-294 Alleged Safety or Health Hazards - Washington (Russian), Page 2
  • Form F418-052-294 Alleged Safety or Health Hazards - Washington (Russian), Page 3
  • Form F418-052-294 Alleged Safety or Health Hazards - Washington (Russian), Page 4
Prev 1 2 3 4 Next
ADVERTISEMENT

Related Documents