Formulario F700-146-999 Queja De Salario Prevaleciente Del Trabajador - Washington (Spanish)

Notification Icon This version of the form is not currently in use and is provided for reference only. Download this version of Formulario F700-146-999 for the current year.

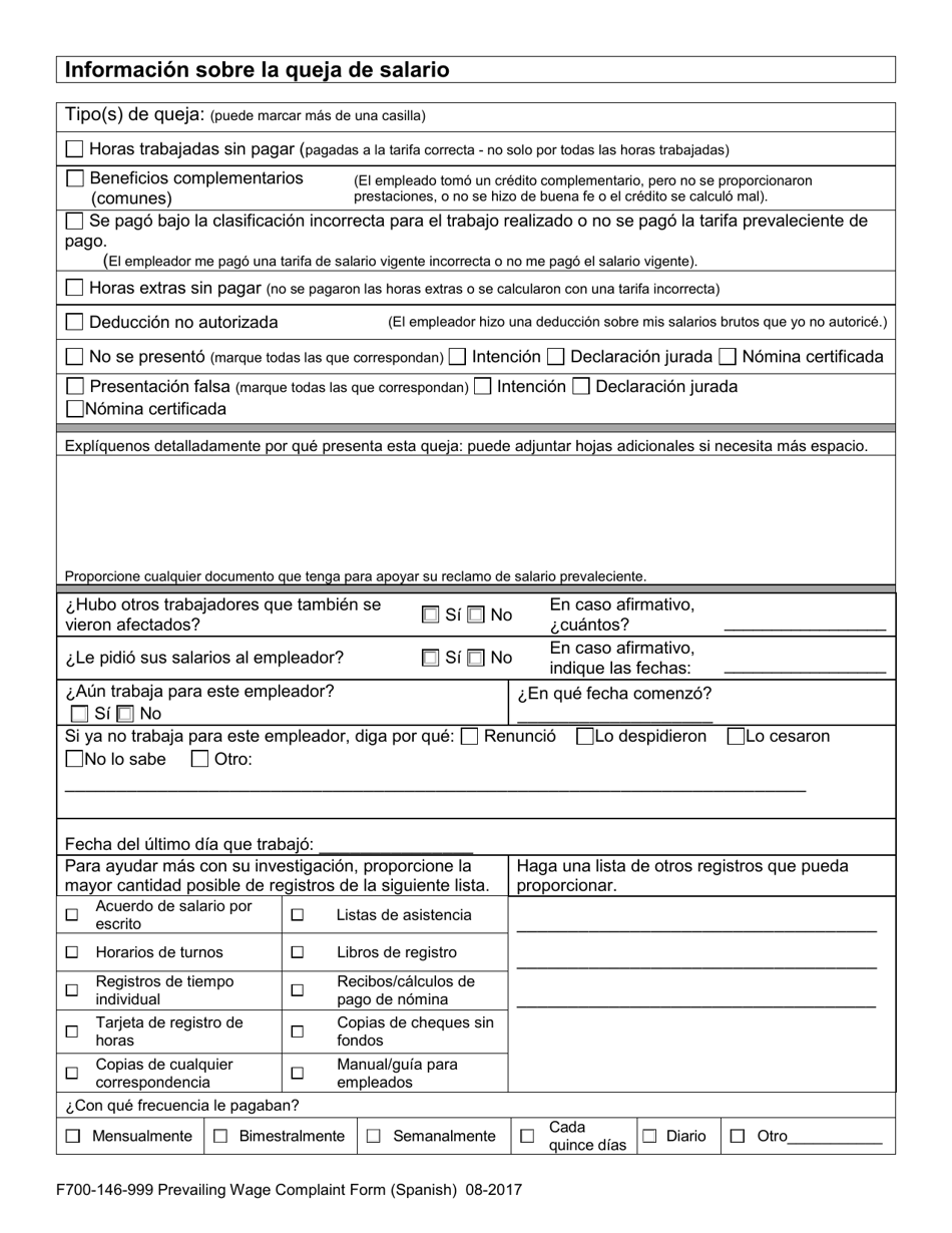
Formulario F700-146-999 Queja De Salario Prevaleciente Del Trabajador - Washington (Spanish)

Qué es Formulario F700-146-999?

Este es un formulario legal que fue publicado por el Washington State Department of Labor and Industries, una autoridad gubernamental que opera dentro de Washington. A partir de hoy, el departamento emisor no proporciona en separado pautas de presentación para el formulario.

Detalles del formulario:

  • Publicado el 1 de agosto de 2017;
  • La última versión proporcionada por el Washington State Department of Labor and Industries;
  • Lista para utilizar e imprimir;
  • Fácil de personalizar;
  • Compatible con la mayoría de las aplicaciones para visualizar PDF;
  • Complete este formulario en línea.

Descargue una versión del Formulario F700-146-999 haciendo clic en el enlace debajo o busque más documentos y plantillas proporcionados por el Washington State Department of Labor and Industries.

FAQ

Q: ¿Qué es el formulario F700-146-999?
A: El formulario F700-146-999 es un formulario para presentar una queja sobre el salario prevaleciente del trabajador en Washington.

Q: ¿Cuál es el propósito del formulario F700-146-999?
A: El propósito del formulario F700-146-999 es permitir a los trabajadores denunciar violaciones del salario prevaleciente en Washington.

Q: ¿Cómo se utiliza el formulario F700-146-999?
A: El formulario F700-146-999 se completa con la información de la queja y se presenta en la agencia correspondiente en Washington.

Q: ¿Dónde puedo obtener el formulario F700-146-999?
A: Puede obtener el formulario F700-146-999 en la agencia gubernamental encargada de hacer cumplir las leyes laborales en Washington.

Q: ¿Cuáles son los requisitos para presentar una queja utilizando el formulario F700-146-999?
A: Los requisitos para presentar una queja utilizando el formulario F700-146-999 varían, pero generalmente incluyen información sobre el empleador, el trabajador y los detalles de la violación salarial.

ADVERTISEMENT

Download Formulario F700-146-999 Queja De Salario Prevaleciente Del Trabajador - Washington (Spanish)

4.4 of 5 (42 votes)
  • Formulario F700-146-999 Queja De Salario Prevaleciente Del Trabajador - Washington (Spanish)

    1

  • Formulario F700-146-999 Queja De Salario Prevaleciente Del Trabajador - Washington (Spanish), Page 2

    2

  • Formulario F700-146-999 Queja De Salario Prevaleciente Del Trabajador - Washington (Spanish), Page 3

    3

  • Formulario F700-146-999 Queja De Salario Prevaleciente Del Trabajador - Washington (Spanish), Page 4

    4

  • Formulario F700-146-999 Queja De Salario Prevaleciente Del Trabajador - Washington (Spanish), Page 5

    5

  • Formulario F700-146-999 Queja De Salario Prevaleciente Del Trabajador - Washington (Spanish), Page 6

    6

  • Formulario F700-146-999 Queja De Salario Prevaleciente Del Trabajador - Washington (Spanish), Page 1
  • Formulario F700-146-999 Queja De Salario Prevaleciente Del Trabajador - Washington (Spanish), Page 2
  • Formulario F700-146-999 Queja De Salario Prevaleciente Del Trabajador - Washington (Spanish), Page 3
  • Formulario F700-146-999 Queja De Salario Prevaleciente Del Trabajador - Washington (Spanish), Page 4
  • Formulario F700-146-999 Queja De Salario Prevaleciente Del Trabajador - Washington (Spanish), Page 5
  • Formulario F700-146-999 Queja De Salario Prevaleciente Del Trabajador - Washington (Spanish), Page 6
Prev 1 2 3 4 5 6 Next
ADVERTISEMENT

Related Documents