Form F700-146-303 Prevailing Wage Worker Complaint - Washington (Somali)

Form F700-146-303 Prevailing Wage Worker Complaint - Washington (Somali)

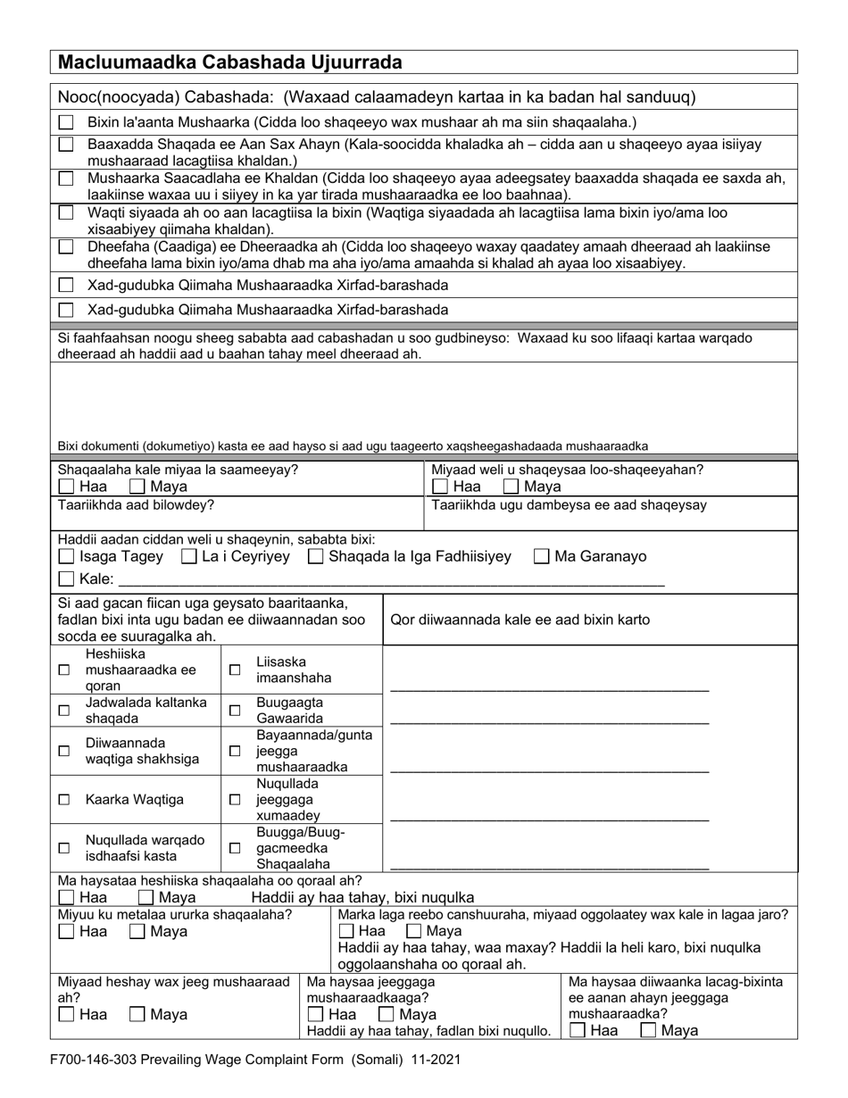
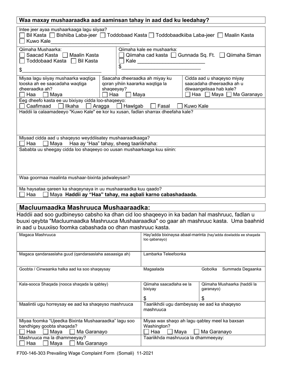
This is a legal form that was released by the Washington State Department of Labor and Industries - a government authority operating within Washington.

The document is provided in Somali. As of today, no separate filing guidelines for the form are provided by the issuing department.

Form Details:

  • Released on November 1, 2021;
  • The latest edition provided by the Washington State Department of Labor and Industries;
  • Easy to use and ready to print;
  • Quick to customize;
  • Compatible with most PDF-viewing applications;

Download a printable version of Form F700-146-303 by clicking the link below or browse more documents and templates provided by the Washington State Department of Labor and Industries.

ADVERTISEMENT

Other Revision

Download Form F700-146-303 Prevailing Wage Worker Complaint - Washington (Somali)

4.5 of 5 (88 votes)
  • Form F700-146-303 Prevailing Wage Worker Complaint - Washington (Somali)

    1

  • Form F700-146-303 Prevailing Wage Worker Complaint - Washington (Somali), Page 2

    2

  • Form F700-146-303 Prevailing Wage Worker Complaint - Washington (Somali), Page 3

    3

  • Form F700-146-303 Prevailing Wage Worker Complaint - Washington (Somali), Page 4

    4

  • Form F700-146-303 Prevailing Wage Worker Complaint - Washington (Somali), Page 5

    5

  • Form F700-146-303 Prevailing Wage Worker Complaint - Washington (Somali), Page 6

    6

  • Form F700-146-303 Prevailing Wage Worker Complaint - Washington (Somali), Page 1
  • Form F700-146-303 Prevailing Wage Worker Complaint - Washington (Somali), Page 2
  • Form F700-146-303 Prevailing Wage Worker Complaint - Washington (Somali), Page 3
  • Form F700-146-303 Prevailing Wage Worker Complaint - Washington (Somali), Page 4
  • Form F700-146-303 Prevailing Wage Worker Complaint - Washington (Somali), Page 5
  • Form F700-146-303 Prevailing Wage Worker Complaint - Washington (Somali), Page 6
Prev 1 2 3 4 5 6 Next
ADVERTISEMENT