Form F700-146-303 Prevailing Wage Worker Complaint - Washington (Somali)

Notification Icon This version of the form is not currently in use and is provided for reference only. Download this version of Form F700-146-303 for the current year.

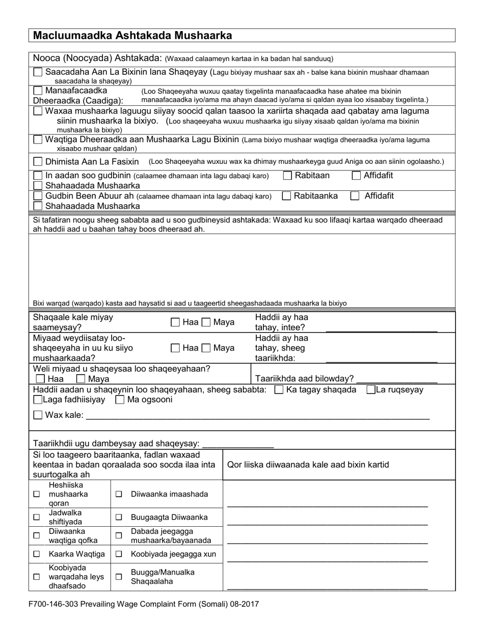
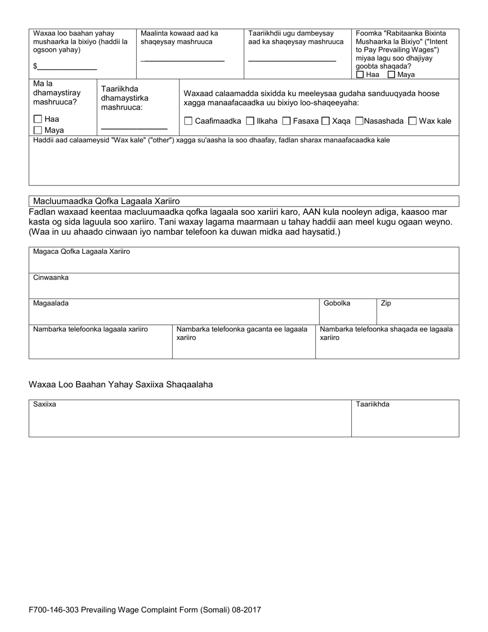
Form F700-146-303 Prevailing Wage Worker Complaint - Washington (Somali)

This is a legal form that was released by the Washington State Department of Labor and Industries - a government authority operating within Washington.

The document is provided in Somali. As of today, no separate filing guidelines for the form are provided by the issuing department.

FAQ

Q: What is Form F700-146-303?
A: Form F700-146-303 is a Prevailing Wage Worker Complaint form in Washington.

Q: What is the purpose of Form F700-146-303?
A: The purpose of Form F700-146-303 is to file a complaint regarding prevailing wage violations.

Q: Who can file Form F700-146-303?
A: Any worker who believes their prevailing wage rights have been violated can file Form F700-146-303.

Q: Is there a fee to file Form F700-146-303?
A: No, there is no fee to file Form F700-146-303.

Q: Do I need to provide supporting documents with Form F700-146-303?
A: Yes, you should provide any documentation or evidence that supports your claim of prevailing wage violation.

Q: What happens after I file Form F700-146-303?
A: After you file Form F700-146-303, the Washington State Department of Labor & Industries will review your complaint and investigate the alleged violations.

Q: What are the possible outcomes of filing Form F700-146-303?
A: Possible outcomes of filing Form F700-146-303 include a resolution through negotiation, mediation, or formal enforcement action by the department.

Q: Can I file Form F700-146-303 anonymously?
A: No, you cannot file Form F700-146-303 anonymously. Your identity will be kept confidential, but it may be necessary for the department to contact you for further information or clarification.

Q: What is the time frame for resolving a complaint filed with Form F700-146-303?
A: The time frame for resolving a complaint filed with Form F700-146-303 varies depending on the complexity of the case and the cooperation of the parties involved.

ADVERTISEMENT

Form Details:

  • Released on August 1, 2017;
  • The latest edition provided by the Washington State Department of Labor and Industries;
  • Easy to use and ready to print;
  • Quick to customize;
  • Compatible with most PDF-viewing applications;

Download a printable version of Form F700-146-303 by clicking the link below or browse more documents and templates provided by the Washington State Department of Labor and Industries.

Download Form F700-146-303 Prevailing Wage Worker Complaint - Washington (Somali)

4.4 of 5 (54 votes)
  • Form F700-146-303 Prevailing Wage Worker Complaint - Washington (Somali)

    1

  • Form F700-146-303 Prevailing Wage Worker Complaint - Washington (Somali), Page 2

    2

  • Form F700-146-303 Prevailing Wage Worker Complaint - Washington (Somali), Page 3

    3

  • Form F700-146-303 Prevailing Wage Worker Complaint - Washington (Somali), Page 4

    4

  • Form F700-146-303 Prevailing Wage Worker Complaint - Washington (Somali), Page 5

    5

  • Form F700-146-303 Prevailing Wage Worker Complaint - Washington (Somali), Page 6

    6

  • Form F700-146-303 Prevailing Wage Worker Complaint - Washington (Somali), Page 1
  • Form F700-146-303 Prevailing Wage Worker Complaint - Washington (Somali), Page 2
  • Form F700-146-303 Prevailing Wage Worker Complaint - Washington (Somali), Page 3
  • Form F700-146-303 Prevailing Wage Worker Complaint - Washington (Somali), Page 4
  • Form F700-146-303 Prevailing Wage Worker Complaint - Washington (Somali), Page 5
  • Form F700-146-303 Prevailing Wage Worker Complaint - Washington (Somali), Page 6
Prev 1 2 3 4 5 6 Next
ADVERTISEMENT