Form AR-636-002 Architect Registration Initial Application - Washington

Notification Icon This version of the form is not currently in use and is provided for reference only. Download this version of Form AR-636-002 for the current year.

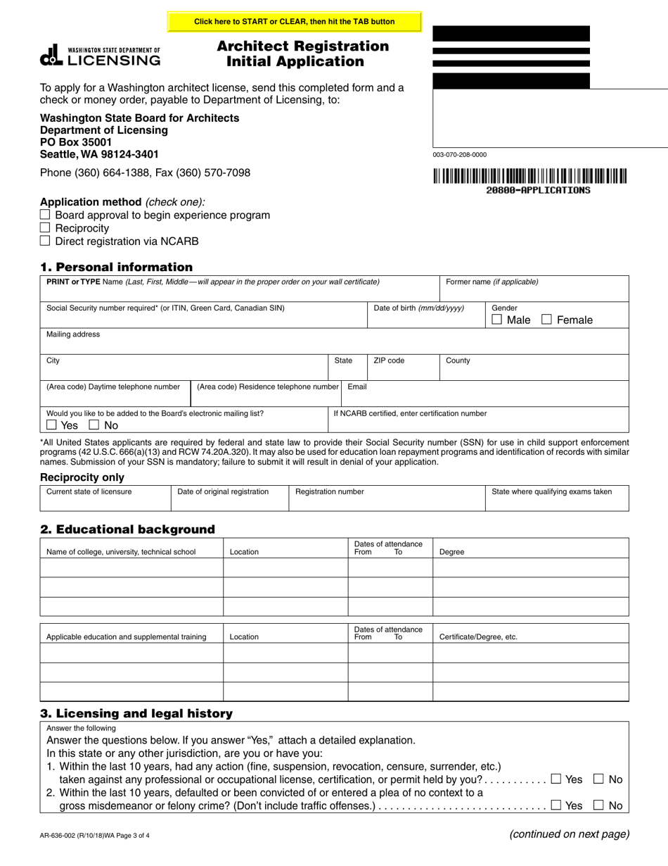
Form AR-636-002 Architect Registration Initial Application - Washington

What Is Form AR-636-002?

This is a legal form that was released by the Washington State Department of Licensing - a government authority operating within Washington. As of today, no separate filing guidelines for the form are provided by the issuing department.

FAQ

Q: What is Form AR-636-002?
A: Form AR-636-002 is the Architect Registration Initial Application for Washington.

Q: Who needs to fill out Form AR-636-002?
A: Architects who want to register in the state of Washington need to fill out Form AR-636-002.

Q: What is the purpose of Form AR-636-002?
A: The purpose of Form AR-636-002 is to apply for initial registration as an architect in Washington.

Q: What information do I need to provide on Form AR-636-002?
A: You will need to provide personal and contact information, education and work experience details, as well as information about your professional references.

Q: Are there any additional documents required with Form AR-636-002?
A: Yes, you will need to submit supporting documentation such as transcripts, work experience verification forms, and professional reference forms.

Q: How long does it take to process Form AR-636-002?
A: The processing time for Form AR-636-002 can vary, but it generally takes several weeks to a few months.

Q: What happens after I submit Form AR-636-002?
A: After you submit Form AR-636-002, it will be reviewed by the Board of Architects. If approved, you will be granted registration as an architect in Washington.

Q: Can I practice as an architect in Washington without completing Form AR-636-002?
A: No, you cannot practice as an architect in Washington without completing Form AR-636-002 and obtaining registration from the Board of Architects.

ADVERTISEMENT

Form Details:

  • Released on October 1, 2018;
  • The latest edition provided by the Washington State Department of Licensing;
  • Easy to use and ready to print;
  • Quick to customize;
  • Compatible with most PDF-viewing applications;
  • Fill out the form in our online filing application.

Download a fillable version of Form AR-636-002 by clicking the link below or browse more documents and templates provided by the Washington State Department of Licensing.

Download Form AR-636-002 Architect Registration Initial Application - Washington

4.4 of 5 (72 votes)
  • Form AR-636-002 Architect Registration Initial Application - Washington

    1

  • Form AR-636-002 Architect Registration Initial Application - Washington, Page 2

    2

  • Form AR-636-002 Architect Registration Initial Application - Washington, Page 3

    3

  • Form AR-636-002 Architect Registration Initial Application - Washington, Page 4

    4

  • Form AR-636-002 Architect Registration Initial Application - Washington, Page 1
  • Form AR-636-002 Architect Registration Initial Application - Washington, Page 2
  • Form AR-636-002 Architect Registration Initial Application - Washington, Page 3
  • Form AR-636-002 Architect Registration Initial Application - Washington, Page 4
Prev 1 2 3 4 Next
ADVERTISEMENT