DNR Form 542-3112 Registration of Minor Nonrecurring Use of Water - Iowa

Notification Icon This version of the form is not currently in use and is provided for reference only. Download this version of DNR Form 542-3112 for the current year.

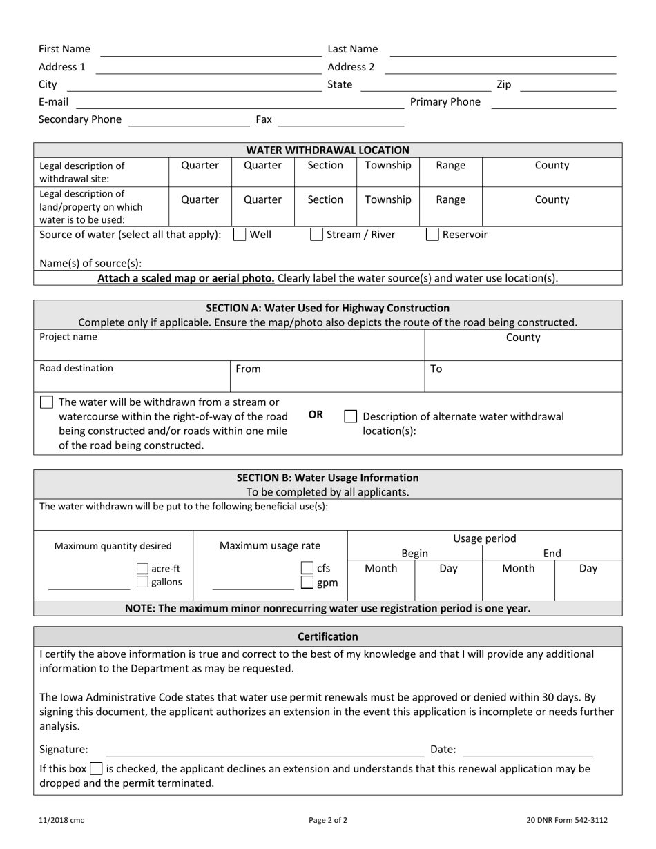
DNR Form 542-3112 Registration of Minor Nonrecurring Use of Water - Iowa

What Is DNR Form 542-3112?

This is a legal form that was released by the Iowa Department of Natural Resources - a government authority operating within Iowa. As of today, no separate filing guidelines for the form are provided by the issuing department.

FAQ

Q: What is DNR Form 542-3112?
A: DNR Form 542-3112 is a registration form for minor nonrecurring use of water in Iowa.

Q: Who needs to fill out DNR Form 542-3112?
A: Anyone who wants to use water for a minor nonrecurring purpose in Iowa needs to fill out this form.

Q: What is considered a minor nonrecurring use of water?
A: Minor nonrecurring use of water refers to temporary or one-time use of water for activities such as construction or special events.

Q: Why is DNR Form 542-3112 important?
A: This form helps the Iowa Department of Natural Resources (DNR) track and regulate water usage for minor nonrecurring purposes.

Q: Are there any fees associated with DNR Form 542-3112?
A: There may be fees depending on the type and volume of water requested. Please refer to the form or contact the Iowa DNR for more information.

ADVERTISEMENT

Form Details:

  • Released on November 1, 2018;
  • The latest edition provided by the Iowa Department of Natural Resources;
  • Easy to use and ready to print;
  • Quick to customize;
  • Compatible with most PDF-viewing applications;
  • Fill out the form in our online filing application.

Download a fillable version of DNR Form 542-3112 by clicking the link below or browse more documents and templates provided by the Iowa Department of Natural Resources.

Download DNR Form 542-3112 Registration of Minor Nonrecurring Use of Water - Iowa

4.6 of 5 (8 votes)
  • DNR Form 542-3112 Registration of Minor Nonrecurring Use of Water - Iowa

    1

  • DNR Form 542-3112 Registration of Minor Nonrecurring Use of Water - Iowa, Page 2

    2

  • DNR Form 542-3112 Registration of Minor Nonrecurring Use of Water - Iowa, Page 1
  • DNR Form 542-3112 Registration of Minor Nonrecurring Use of Water - Iowa, Page 2
Prev 1 2 Next
ADVERTISEMENT

Related Documents