Instructions for Form 650-040-03 Stormwater Pollution Prevention Plan Construction Inspection Report - Florida

Instructions for Form 650-040-03 Stormwater Pollution Prevention Plan Construction Inspection Report - Florida

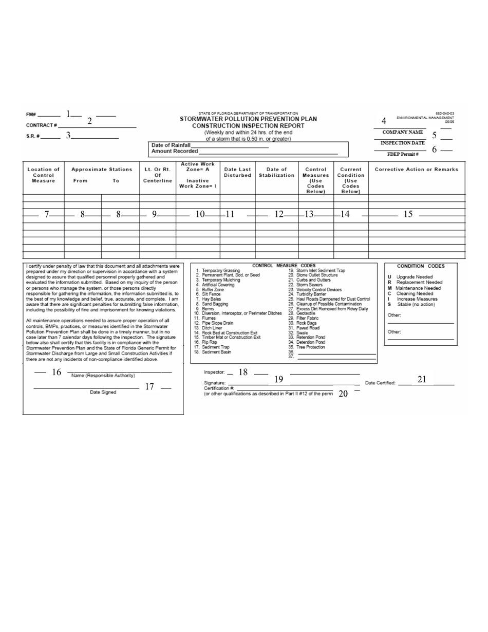
This document contains official instructions for Form 650-040-03 , Stormwater Pollution Construction Inspection Report - a form released and collected by the Florida Department of Transportation. An up-to-date fillable Form 650-040-03 is available for download through this link.

FAQ

Q: What is Form 650-040-03?
A: Form 650-040-03 is the Stormwater Pollution Prevention Plan Construction Inspection Report used in Florida.

Q: What is the purpose of Form 650-040-03?
A: The purpose of Form 650-040-03 is to document inspections of stormwater pollution prevention plans during construction projects.

Q: Who uses Form 650-040-03?
A: Form 650-040-03 is used by construction inspectors in Florida.

Q: What should be included in Form 650-040-03?
A: Form 650-040-03 should include information about the construction project, inspection findings, and any corrective actions taken.

ADVERTISEMENT

Instruction Details:

  • This 3-page document is available for download in PDF;
  • Actual and applicable for the current year;
  • Complete, printable, and free.

Download your copy of the instructions by clicking the link below or browse hundreds of other forms in our library of forms released by the Florida Department of Transportation.

Download Instructions for Form 650-040-03 Stormwater Pollution Prevention Plan Construction Inspection Report - Florida

4.7 of 5 (9 votes)
  • Instructions for Form 650-040-03 Stormwater Pollution Prevention Plan Construction Inspection Report - Florida

    1

  • Instructions for Form 650-040-03 Stormwater Pollution Prevention Plan Construction Inspection Report - Florida, Page 2

    2

  • Instructions for Form 650-040-03 Stormwater Pollution Prevention Plan Construction Inspection Report - Florida, Page 3

    3

  • Instructions for Form 650-040-03 Stormwater Pollution Prevention Plan Construction Inspection Report - Florida, Page 1
  • Instructions for Form 650-040-03 Stormwater Pollution Prevention Plan Construction Inspection Report - Florida, Page 2
  • Instructions for Form 650-040-03 Stormwater Pollution Prevention Plan Construction Inspection Report - Florida, Page 3
Prev 1 2 3 Next
ADVERTISEMENT

Related Documents