Form MCD-109 House Move Application Route Form - Texas

Notification Icon This version of the form is not currently in use and is provided for reference only. Download this version of Form MCD-109 for the current year.

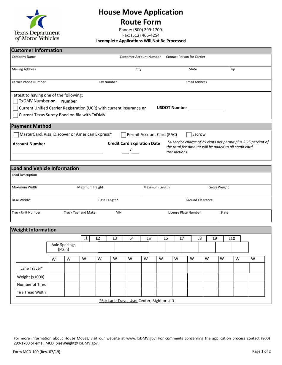
Form MCD-109 House Move Application Route Form - Texas

What Is Form MCD-109?

This is a legal form that was released by the Texas Department of Motor Vehicles - a government authority operating within Texas. As of today, no separate filing guidelines for the form are provided by the issuing department.

FAQ

Q: What is Form MCD-109?
A: Form MCD-109 is a house move application route form in Texas.

Q: What is the purpose of Form MCD-109?
A: The purpose of Form MCD-109 is to apply for a house move permit in Texas.

Q: Are there any fees associated with Form MCD-109?
A: Yes, there are fees associated with Form MCD-109. The fees vary depending on the weight and dimensions of the house being moved.

Q: Is Form MCD-109 specific to Texas?
A: Yes, Form MCD-109 is specific to Texas.

Q: What information is required on Form MCD-109?
A: Form MCD-109 requires information such as the house move route, dimensions of the house, towing vehicle details, and insurance information.

Q: What is the processing time for Form MCD-109?
A: The processing time for Form MCD-109 may vary, but it is typically processed within a few business days.

Q: What should I do if my Form MCD-109 application is denied?
A: If your Form MCD-109 application is denied, you can contact the Texas Department of Motor Vehicles for further assistance.

ADVERTISEMENT

Form Details:

  • Released on July 1, 2019;
  • The latest edition provided by the Texas Department of Motor Vehicles;
  • Easy to use and ready to print;
  • Quick to customize;
  • Compatible with most PDF-viewing applications;
  • Fill out the form in our online filing application.

Download a fillable version of Form MCD-109 by clicking the link below or browse more documents and templates provided by the Texas Department of Motor Vehicles.

Download Form MCD-109 House Move Application Route Form - Texas

4.3 of 5 (33 votes)
  • Form MCD-109 House Move Application Route Form - Texas

    1

  • Form MCD-109 House Move Application Route Form - Texas, Page 2

    2

  • Form MCD-109 House Move Application Route Form - Texas, Page 3

    3

  • Form MCD-109 House Move Application Route Form - Texas, Page 4

    4

  • Form MCD-109 House Move Application Route Form - Texas, Page 1
  • Form MCD-109 House Move Application Route Form - Texas, Page 2
  • Form MCD-109 House Move Application Route Form - Texas, Page 3
  • Form MCD-109 House Move Application Route Form - Texas, Page 4
Prev 1 2 3 4 Next
ADVERTISEMENT