Attachment E208 Concrete, Asphalt Concrete, Mineral Processing or Other Similar Equipment - Connecticut

Attachment E208 Concrete, Asphalt Concrete, Mineral Processing or Other Similar Equipment - Connecticut

What Is Attachment E208?

This is a legal form that was released by the Connecticut Department of Energy and Environmental Protection - a government authority operating within Connecticut. As of today, no separate filing guidelines for the form are provided by the issuing department.

FAQ

Q: What is Attachment E208?
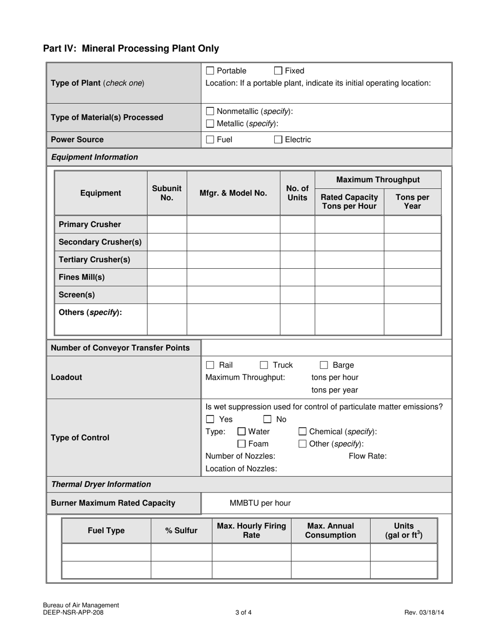
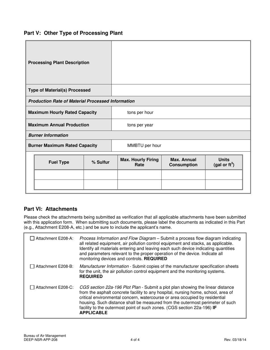
A: Attachment E208 refers to equipment used for concrete, asphalt concrete, mineral processing, or similar activities in Connecticut.

Q: What types of equipment are included in Attachment E208?
A: Equipment such as concrete mixers, asphalt plants, crushers, and similar machinery are included in Attachment E208.

Q: What is the purpose of Attachment E208?
A: The purpose of Attachment E208 is to regulate the operation and emissions of equipment used for concrete, asphalt concrete, mineral processing, or similar activities in Connecticut.

Q: Is a permit required for operating equipment listed in Attachment E208?
A: Yes, a permit is required to operate the equipment listed in Attachment E208.

Q: How can I obtain a permit for operating equipment listed in Attachment E208?
A: To obtain a permit, you must submit an application to the Connecticut Department of Energy and Environmental Protection (DEEP).

Q: Are there any emission limits associated with operating equipment listed in Attachment E208?
A: Yes, there are emission limits associated with operating the equipment listed in Attachment E208. These limits are specified in the permit.

Q: What happens if I exceed the emission limits for equipment listed in Attachment E208?
A: If you exceed the emission limits, you may be subject to enforcement actions and penalties.

Q: Are there any reporting requirements for operating equipment listed in Attachment E208?
A: Yes, there are reporting requirements for operating the equipment listed in Attachment E208. These requirements are outlined in the permit.

Q: Who enforces the regulations related to equipment listed in Attachment E208?
A: The Connecticut Department of Energy and Environmental Protection (DEEP) enforces the regulations related to equipment listed in Attachment E208.

ADVERTISEMENT

Form Details:

  • Released on March 18, 2014;
  • The latest edition provided by the Connecticut Department of Energy and Environmental Protection;
  • Easy to use and ready to print;
  • Quick to customize;
  • Compatible with most PDF-viewing applications;
  • Fill out the form in our online filing application.

Download a printable version of Attachment E208 by clicking the link below or browse more documents and templates provided by the Connecticut Department of Energy and Environmental Protection.

Download Attachment E208 Concrete, Asphalt Concrete, Mineral Processing or Other Similar Equipment - Connecticut

4.6 of 5 (17 votes)
  • Attachment E208 Concrete, Asphalt Concrete, Mineral Processing or Other Similar Equipment - Connecticut

    1

  • Attachment E208 Concrete, Asphalt Concrete, Mineral Processing or Other Similar Equipment - Connecticut, Page 2

    2

  • Attachment E208 Concrete, Asphalt Concrete, Mineral Processing or Other Similar Equipment - Connecticut, Page 3

    3

  • Attachment E208 Concrete, Asphalt Concrete, Mineral Processing or Other Similar Equipment - Connecticut, Page 4

    4

  • Attachment E208 Concrete, Asphalt Concrete, Mineral Processing or Other Similar Equipment - Connecticut, Page 1
  • Attachment E208 Concrete, Asphalt Concrete, Mineral Processing or Other Similar Equipment - Connecticut, Page 2
  • Attachment E208 Concrete, Asphalt Concrete, Mineral Processing or Other Similar Equipment - Connecticut, Page 3
  • Attachment E208 Concrete, Asphalt Concrete, Mineral Processing or Other Similar Equipment - Connecticut, Page 4
Prev 1 2 3 4 Next
ADVERTISEMENT

Related Documents