Form DBPR BCAIB7 Application for Internship Certification Training Program Approval / Renewal and Provider - Florida

Notification Icon This version of the form is not currently in use and is provided for reference only. Download this version of Form DBPR BCAIB7 for the current year.

Form DBPR BCAIB7 Application for Internship Certification Training Program Approval / Renewal and Provider - Florida

What Is Form DBPR BCAIB7?

This is a legal form that was released by the Florida Department of Business & Professional Regulation - a government authority operating within Florida. As of today, no separate filing guidelines for the form are provided by the issuing department.

FAQ

Q: What is DBPR BCAIB7?
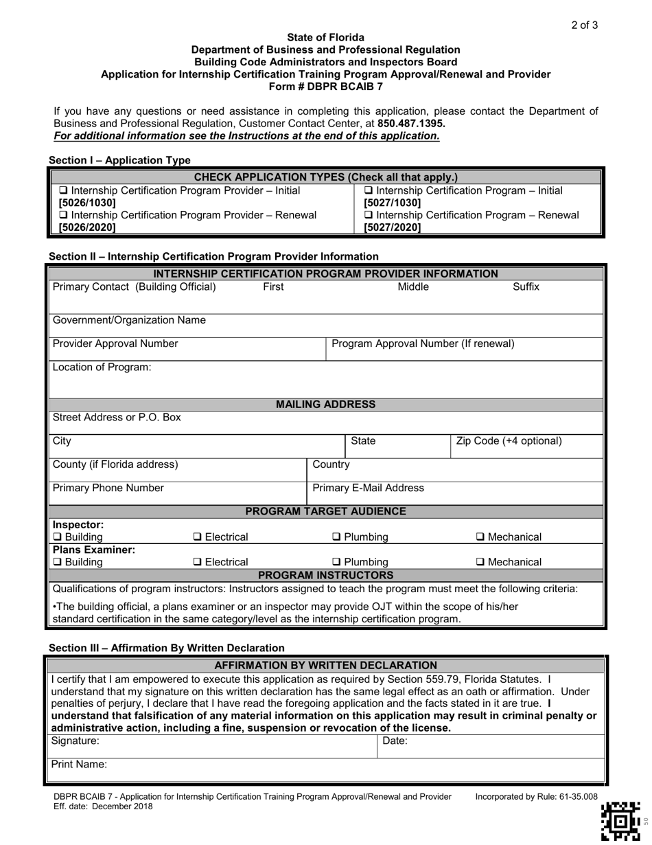
A: DBPR BCAIB7 is the application form for Internship Certification Training Program Approval/Renewal and Provider in Florida.

Q: What is the purpose of this application?
A: The purpose of this application is to apply for approval or renewal as an Internship Certification Training Program Provider in Florida.

Q: Who needs to submit this application?
A: Anyone who wants to become or renew their status as an Internship Certification Training Program Provider in Florida needs to submit this application.

Q: What does the application involve?
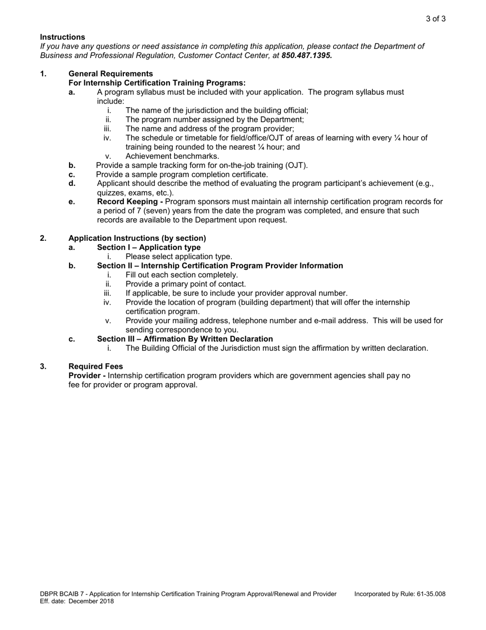
A: The application involves providing information about the program, including curriculum, instructors, facilities, and fees.

Q: What is the approval process for this application?
A: The approval process involves reviewing the application and ensuring that all requirements are met. Once approved, the provider will be authorized to offer Internship Certification Training Programs in Florida.

Q: How long is the approval valid for?
A: The approval is valid for a specific period of time, usually one year. Providers must renew their approval before it expires.

Q: What happens if the application is denied?
A: If the application is denied, the applicant will receive notification of the reasons for denial and may have the opportunity to address any deficiencies and reapply.

Q: Is there an appeal process for denied applications?
A: Yes, there is an appeal process available for denied applications. Information about the appeal process can be obtained from the DBPR.

Q: Can I operate as an Internship Certification Training Program Provider without approval?
A: No, operating as an Internship Certification Training Program Provider without approval is not allowed. It is mandatory to obtain approval from the DBPR.

ADVERTISEMENT

Form Details:

  • Released on December 1, 2018;
  • The latest edition provided by the Florida Department of Business & Professional Regulation;
  • Easy to use and ready to print;
  • Quick to customize;
  • Compatible with most PDF-viewing applications;
  • Fill out the form in our online filing application.

Download a printable version of Form DBPR BCAIB7 by clicking the link below or browse more documents and templates provided by the Florida Department of Business & Professional Regulation.

Download Form DBPR BCAIB7 Application for Internship Certification Training Program Approval / Renewal and Provider - Florida

4.3 of 5 (17 votes)
  • Form DBPR BCAIB7 Application for Internship Certification Training Program Approval/Renewal and Provider - Florida

    1

  • Form DBPR BCAIB7 Application for Internship Certification Training Program Approval/Renewal and Provider - Florida, Page 2

    2

  • Form DBPR BCAIB7 Application for Internship Certification Training Program Approval/Renewal and Provider - Florida, Page 3

    3

  • Form DBPR BCAIB7 Application for Internship Certification Training Program Approval / Renewal and Provider - Florida, Page 1
  • Form DBPR BCAIB7 Application for Internship Certification Training Program Approval / Renewal and Provider - Florida, Page 2
  • Form DBPR BCAIB7 Application for Internship Certification Training Program Approval / Renewal and Provider - Florida, Page 3
Prev 1 2 3 Next
ADVERTISEMENT

Related Documents