DNR Form 542-1470 Application to Renew Water Use Permit - Iowa

Notification Icon This version of the form is not currently in use and is provided for reference only. Download this version of DNR Form 542-1470 for the current year.

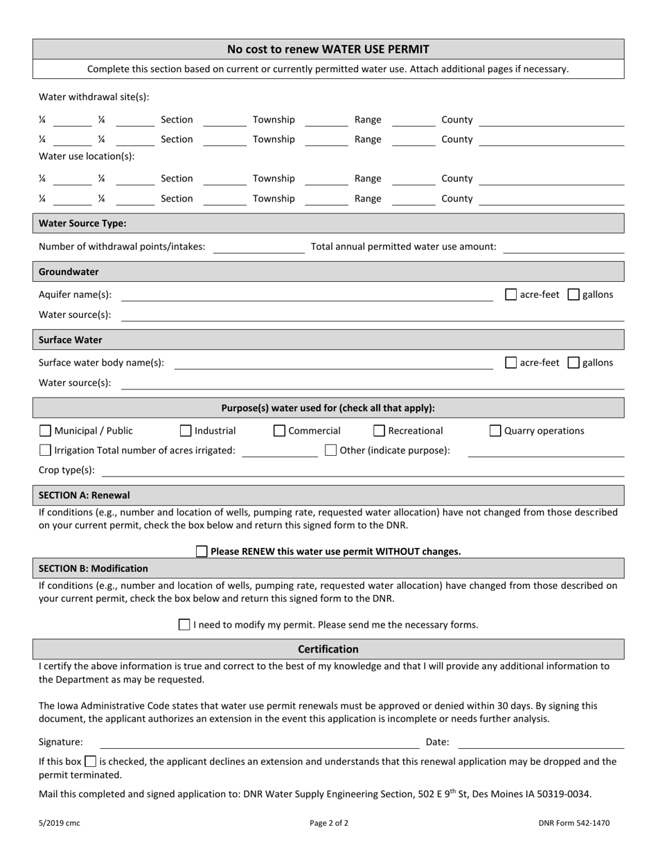
DNR Form 542-1470 Application to Renew Water Use Permit - Iowa

What Is DNR Form 542-1470?

This is a legal form that was released by the Iowa Department of Natural Resources - a government authority operating within Iowa. As of today, no separate filing guidelines for the form are provided by the issuing department.

FAQ

Q: What is the DNR Form 542-1470?
A: DNR Form 542-1470 is the Application to Renew Water Use Permit in Iowa.

Q: What does the DNR Form 542-1470 allow me to do?
A: DNR Form 542-1470 allows you to renew your Water Use Permit in Iowa.

Q: Do I need to renew my Water Use Permit in Iowa?
A: Yes, you need to renew your Water Use Permit in Iowa to continue using water resources legally.

Q: What is the purpose of renewing the Water Use Permit?
A: The purpose of renewing the Water Use Permit is to ensure compliance with regulations and to effectively manage water resources in Iowa.

Q: Are there any fees associated with renewing the Water Use Permit?
A: Yes, there may be fees associated with renewing the Water Use Permit. Please refer to the DNR Form 542-1470 or contact the Iowa DNR for specific fee information.

Q: Do I need to submit any supporting documents with the renewal application?
A: You may need to submit supporting documents, such as water usage data or environmental impact assessments, with the renewal application. Refer to the DNR Form 542-1470 for specific requirements.

Q: What is the deadline for submitting the renewal application?
A: The deadline for submitting the renewal application may vary. Please refer to the DNR Form 542-1470 or contact the Iowa DNR for the deadline information.

Q: Can I apply for a new Water Use Permit instead of renewing?
A: If you do not have an existing Water Use Permit, you may need to apply for a new permit instead of renewing. Contact the Iowa DNR for guidance.

Q: What happens if I fail to renew my Water Use Permit?
A: Failure to renew your Water Use Permit may result in legal consequences and the loss of permission to use water resources in Iowa.

ADVERTISEMENT

Form Details:

  • Released on May 1, 2019;
  • The latest edition provided by the Iowa Department of Natural Resources;
  • Easy to use and ready to print;
  • Quick to customize;
  • Compatible with most PDF-viewing applications;
  • Fill out the form in our online filing application.

Download a fillable version of DNR Form 542-1470 by clicking the link below or browse more documents and templates provided by the Iowa Department of Natural Resources.

Download DNR Form 542-1470 Application to Renew Water Use Permit - Iowa

4.6 of 5 (13 votes)
  • DNR Form 542-1470 Application to Renew Water Use Permit - Iowa

    1

  • DNR Form 542-1470 Application to Renew Water Use Permit - Iowa, Page 2

    2

  • DNR Form 542-1470 Application to Renew Water Use Permit - Iowa, Page 1
  • DNR Form 542-1470 Application to Renew Water Use Permit - Iowa, Page 2
Prev 1 2 Next
ADVERTISEMENT

Related Documents