Form UST-6F / 23B Application to Install or Replace Usts (Containment Sump / Udc Testing) - North Carolina

Notification Icon This version of the form is not currently in use and is provided for reference only. Download this version of Form UST-6F/23B for the current year.

Form UST-6F / 23B Application to Install or Replace Usts (Containment Sump / Udc Testing) - North Carolina

What Is Form UST-6F/23B?

This is a legal form that was released by the North Carolina Department of Environmental Quality - a government authority operating within North Carolina. As of today, no separate filing guidelines for the form are provided by the issuing department.

FAQ

Q: What is UST-6F/23B application form?
A: UST-6F/23B is the application form used in North Carolina to request permission to install or replace underground storage tanks (USTs) and conduct containment sump/under-dispenser containment (UDC) testing.

Q: What does UST stand for?
A: UST stands for Underground Storage Tanks.

Q: What is the purpose of UST-6F/23B form?
A: The purpose of the UST-6F/23B form is to obtain authorization from the regulatory authorities in North Carolina to install or replace USTs and perform necessary testing to ensure compliance with safety regulations.

ADVERTISEMENT

Form Details:

  • Released on March 1, 2019;
  • The latest edition provided by the North Carolina Department of Environmental Quality;
  • Easy to use and ready to print;
  • Quick to customize;
  • Compatible with most PDF-viewing applications;
  • Fill out the form in our online filing application.

Download a fillable version of Form UST-6F/23B by clicking the link below or browse more documents and templates provided by the North Carolina Department of Environmental Quality.

Download Form UST-6F / 23B Application to Install or Replace Usts (Containment Sump / Udc Testing) - North Carolina

4.7 of 5 (28 votes)
  • Form UST-6F/23B Application to Install or Replace Usts (Containment Sump/Udc Testing) - North Carolina

    1

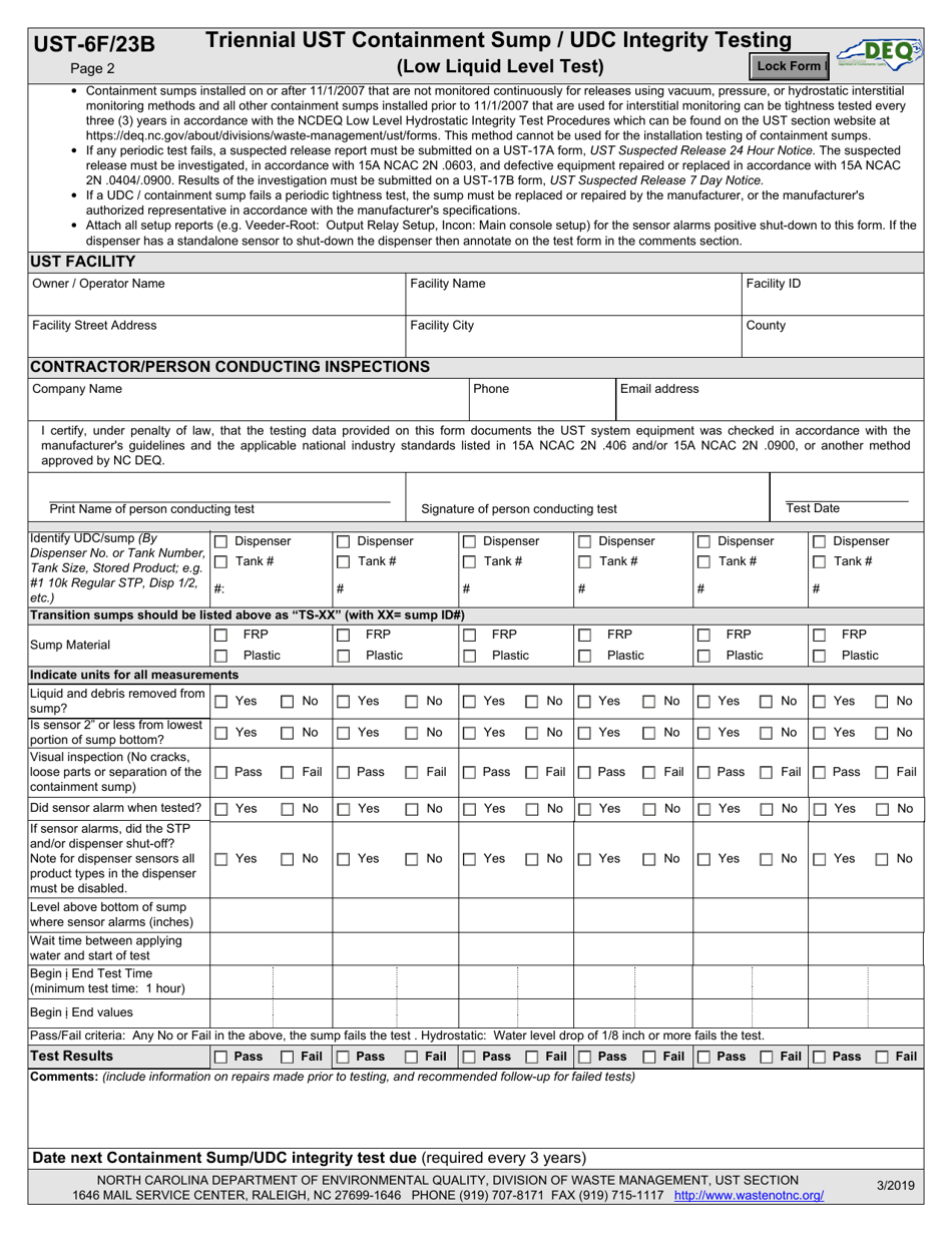
  • Form UST-6F/23B Application to Install or Replace Usts (Containment Sump/Udc Testing) - North Carolina, Page 2

    2

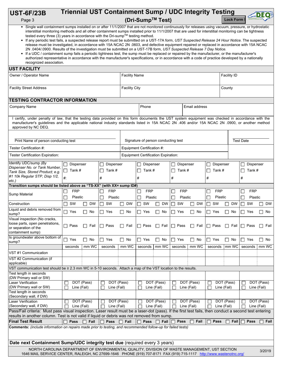
  • Form UST-6F/23B Application to Install or Replace Usts (Containment Sump/Udc Testing) - North Carolina, Page 3

    3

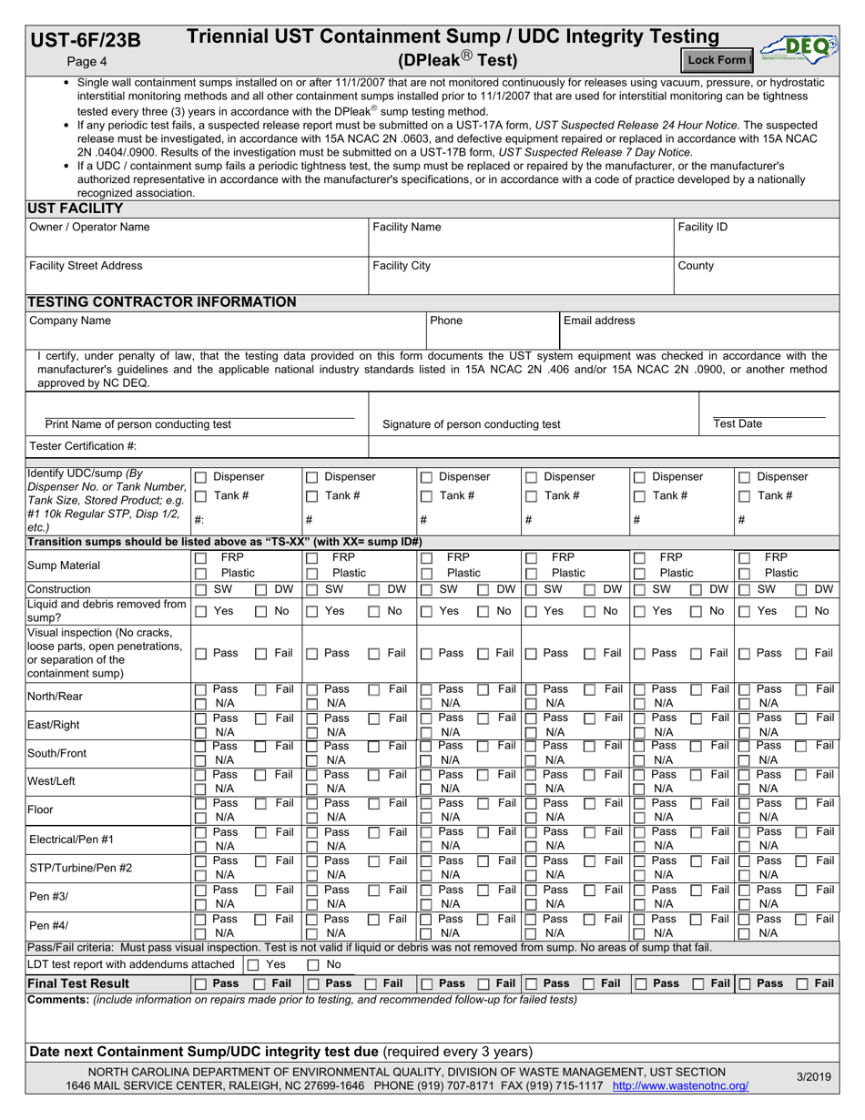
  • Form UST-6F/23B Application to Install or Replace Usts (Containment Sump/Udc Testing) - North Carolina, Page 4

    4

  • Form UST-6F / 23B Application to Install or Replace Usts (Containment Sump / Udc Testing) - North Carolina, Page 1
  • Form UST-6F / 23B Application to Install or Replace Usts (Containment Sump / Udc Testing) - North Carolina, Page 2
  • Form UST-6F / 23B Application to Install or Replace Usts (Containment Sump / Udc Testing) - North Carolina, Page 3
  • Form UST-6F / 23B Application to Install or Replace Usts (Containment Sump / Udc Testing) - North Carolina, Page 4
Prev 1 2 3 4 Next
ADVERTISEMENT

Related Documents