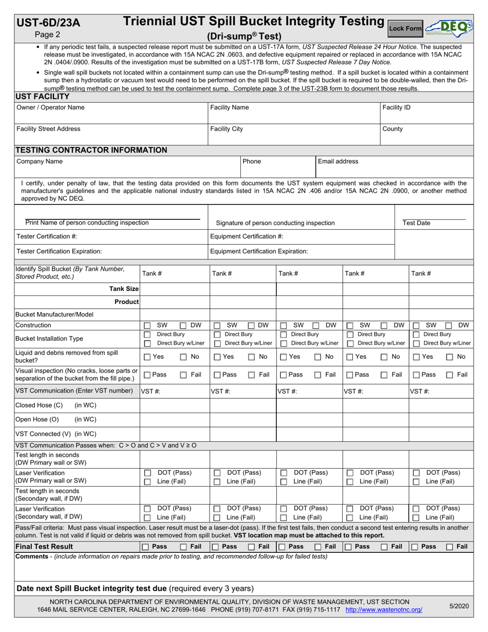
Form UST-6D (UST-23A) Triennial Ust Spill Bucket Integrity Testing (Hydrostatic / Vacuum Test) - North Carolina

Form UST-6D (UST-23A) Triennial Ust Spill Bucket Integrity Testing (Hydrostatic / Vacuum Test) - North Carolina

What Is Form UST-6D (UST-23A)?

This is a legal form that was released by the North Carolina Department of Environmental Quality - a government authority operating within North Carolina. As of today, no separate filing guidelines for the form are provided by the issuing department.

Form Details:

  • Released on May 1, 2020;
  • The latest edition provided by the North Carolina Department of Environmental Quality;
  • Easy to use and ready to print;
  • Quick to customize;
  • Compatible with most PDF-viewing applications;
  • Fill out the form in our online filing application.

Download a fillable version of Form UST-6D (UST-23A) by clicking the link below or browse more documents and templates provided by the North Carolina Department of Environmental Quality.

ADVERTISEMENT

Download Form UST-6D (UST-23A) Triennial Ust Spill Bucket Integrity Testing (Hydrostatic / Vacuum Test) - North Carolina

4.4 of 5 (15 votes)
  • Form UST-6D (UST-23A) Triennial Ust Spill Bucket Integrity Testing (Hydrostatic/Vacuum Test) - North Carolina

    1

  • Form UST-6D (UST-23A) Triennial Ust Spill Bucket Integrity Testing (Hydrostatic/Vacuum Test) - North Carolina, Page 2

    2

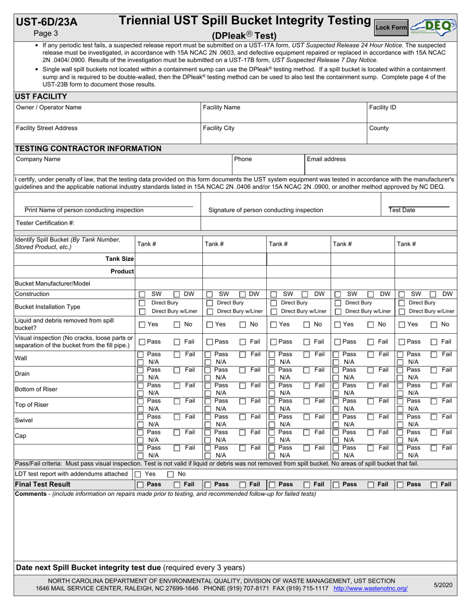
  • Form UST-6D (UST-23A) Triennial Ust Spill Bucket Integrity Testing (Hydrostatic/Vacuum Test) - North Carolina, Page 3

    3

  • Form UST-6D (UST-23A) Triennial Ust Spill Bucket Integrity Testing (Hydrostatic / Vacuum Test) - North Carolina, Page 1
  • Form UST-6D (UST-23A) Triennial Ust Spill Bucket Integrity Testing (Hydrostatic / Vacuum Test) - North Carolina, Page 2
  • Form UST-6D (UST-23A) Triennial Ust Spill Bucket Integrity Testing (Hydrostatic / Vacuum Test) - North Carolina, Page 3
Prev 1 2 3 Next
ADVERTISEMENT