Form UST-6D / 23A Triennial Ust Spill Bucket Integrity Testing (Hydrostatic / Vacuum Test) - North Carolina

Form UST-6D / 23A Triennial Ust Spill Bucket Integrity Testing (Hydrostatic / Vacuum Test) - North Carolina

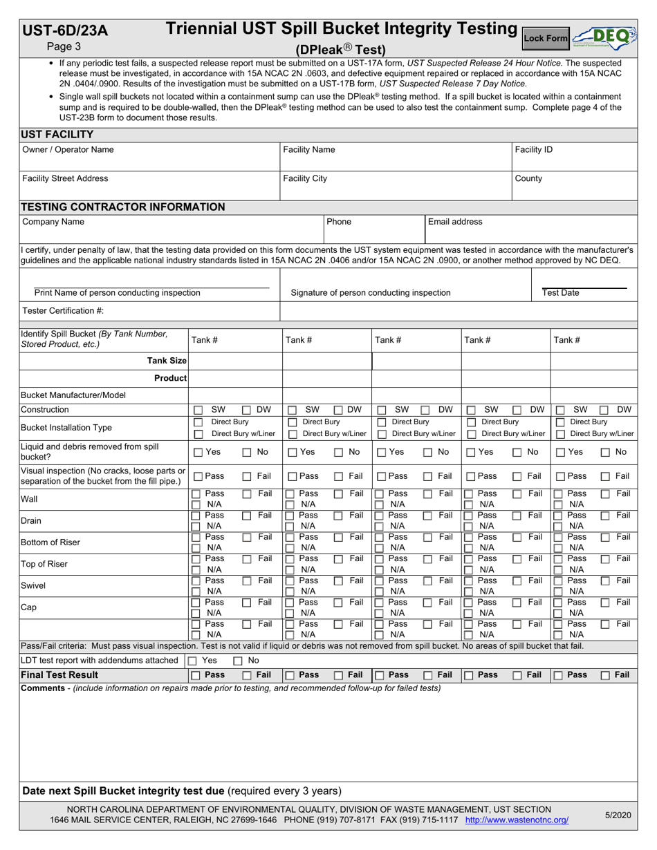
What Is Form UST-6D/23A?

This is a legal form that was released by the North Carolina Department of Environmental Quality - a government authority operating within North Carolina. As of today, no separate filing guidelines for the form are provided by the issuing department.

FAQ

Q: What is the UST-6D/23A form for?
A: The UST-6D/23A form is for Triennial UST Spill BucketIntegrity Testing (Hydrostatic/Vacuum Test) in North Carolina.

Q: What does UST stand for?
A: UST stands for Underground Storage Tank.

Q: What is the purpose of the Triennial UST Spill Bucket Integrity Testing?
A: The purpose of the testing is to ensure the integrity of the spill bucket of an underground storage tank.

Q: What type of testing is done?
A: The testing involves hydrostatic and vacuum tests.

Q: What is the frequency of the testing?
A: The testing is done every three years, hence the term Triennial.

ADVERTISEMENT

Form Details:

  • Released on May 1, 2020;
  • The latest edition provided by the North Carolina Department of Environmental Quality;
  • Easy to use and ready to print;
  • Quick to customize;
  • Compatible with most PDF-viewing applications;
  • Fill out the form in our online filing application.

Download a fillable version of Form UST-6D/23A by clicking the link below or browse more documents and templates provided by the North Carolina Department of Environmental Quality.

Download Form UST-6D / 23A Triennial Ust Spill Bucket Integrity Testing (Hydrostatic / Vacuum Test) - North Carolina

4.6 of 5 (24 votes)
  • Form UST-6D/23A Triennial Ust Spill Bucket Integrity Testing (Hydrostatic/Vacuum Test) - North Carolina

    1

  • Form UST-6D/23A Triennial Ust Spill Bucket Integrity Testing (Hydrostatic/Vacuum Test) - North Carolina, Page 2

    2

  • Form UST-6D/23A Triennial Ust Spill Bucket Integrity Testing (Hydrostatic/Vacuum Test) - North Carolina, Page 3

    3

  • Form UST-6D / 23A Triennial Ust Spill Bucket Integrity Testing (Hydrostatic / Vacuum Test) - North Carolina, Page 1
  • Form UST-6D / 23A Triennial Ust Spill Bucket Integrity Testing (Hydrostatic / Vacuum Test) - North Carolina, Page 2
  • Form UST-6D / 23A Triennial Ust Spill Bucket Integrity Testing (Hydrostatic / Vacuum Test) - North Carolina, Page 3
Prev 1 2 3 Next
ADVERTISEMENT