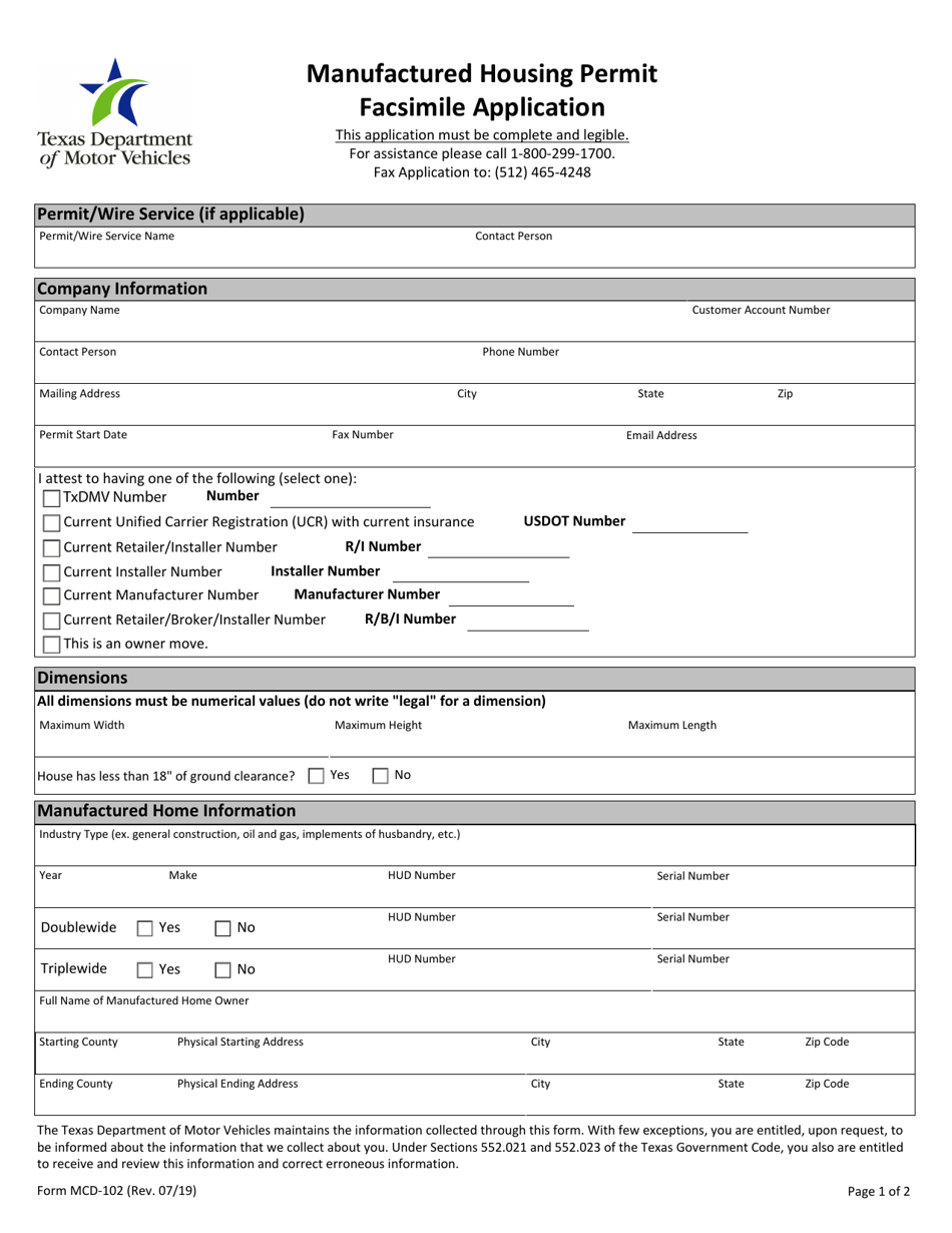
Form MCD-102 Manufactured Housing Permit Facsimile Application - Texas

Notification Icon This version of the form is not currently in use and is provided for reference only. Download this version of Form MCD-102 for the current year.

Form MCD-102 Manufactured Housing Permit Facsimile Application - Texas

What Is Form MCD-102?

This is a legal form that was released by the Texas Department of Motor Vehicles - a government authority operating within Texas. As of today, no separate filing guidelines for the form are provided by the issuing department.

Form Details:

  • Released on July 1, 2019;
  • The latest edition provided by the Texas Department of Motor Vehicles;
  • Easy to use and ready to print;
  • Quick to customize;
  • Compatible with most PDF-viewing applications;
  • Fill out the form in our online filing application.

Download a fillable version of Form MCD-102 by clicking the link below or browse more documents and templates provided by the Texas Department of Motor Vehicles.

ADVERTISEMENT

Download Form MCD-102 Manufactured Housing Permit Facsimile Application - Texas

4.8 of 5 (8 votes)
  • Form MCD-102 Manufactured Housing Permit Facsimile Application - Texas

    1

  • Form MCD-102 Manufactured Housing Permit Facsimile Application - Texas, Page 2

    2

  • Form MCD-102 Manufactured Housing Permit Facsimile Application - Texas, Page 3

    3

  • Form MCD-102 Manufactured Housing Permit Facsimile Application - Texas, Page 1
  • Form MCD-102 Manufactured Housing Permit Facsimile Application - Texas, Page 2
  • Form MCD-102 Manufactured Housing Permit Facsimile Application - Texas, Page 3
Prev 1 2 3 Next
ADVERTISEMENT