Form DBPR AR1 Application for Licensure by Examination - Florida

Notification Icon This version of the form is not currently in use and is provided for reference only. Download this version of Form DBPR AR1 for the current year.

Form DBPR AR1 Application for Licensure by Examination - Florida

What Is Form DBPR AR1?

This is a legal form that was released by the Florida Department of Business & Professional Regulation - a government authority operating within Florida. As of today, no separate filing guidelines for the form are provided by the issuing department.

FAQ

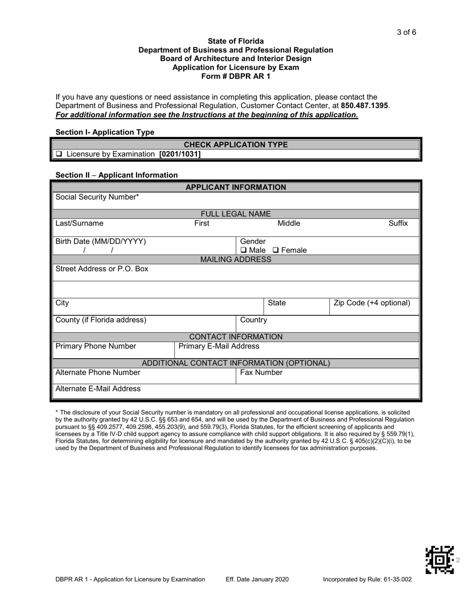
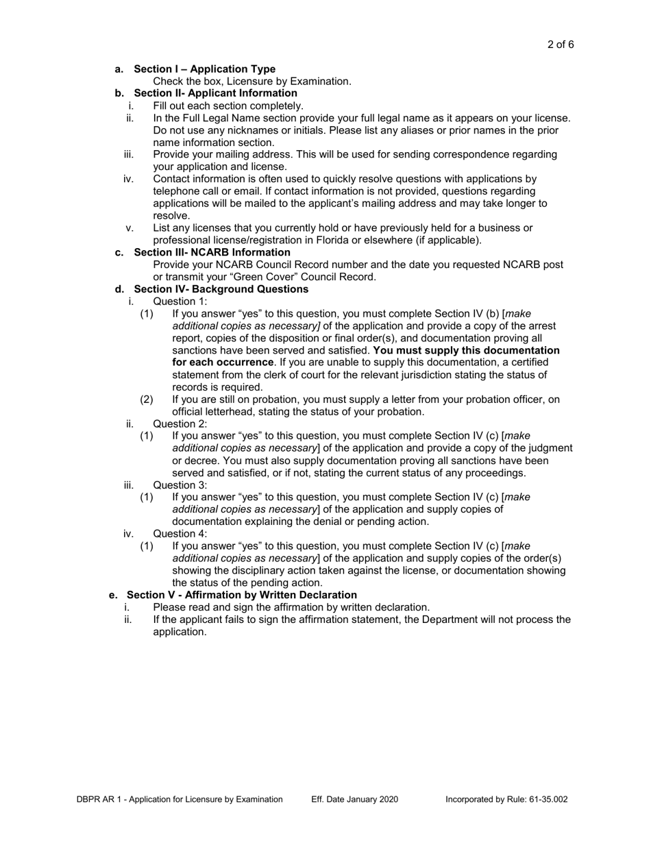
Q: What is the DBPR AR1 Application for Licensure by Examination?
A: The DBPR AR1 Application for Licensure by Examination is a form used in Florida to apply for professional licensure by examination.

Q: What is DBPR?
A: DBPR stands for Department of Business and Professional Regulation, which is responsible for regulating various professions in Florida.

Q: What should I include when filling out the DBPR AR1 Application?
A: When filling out the DBPR AR1 Application, you should include your personal information, educational background, and any required documentation.

Q: What is the purpose of the DBPR AR1 Application?
A: The purpose of the DBPR AR1 Application is to apply for professional licensure by examination in Florida.

Q: Are there any fees associated with the DBPR AR1 Application?
A: Yes, there are fees associated with the DBPR AR1 Application. The exact fees vary depending on the profession and are outlined in the application instructions.

Q: How long does it take to process the DBPR AR1 Application?
A: The processing time for the DBPR AR1 Application can vary, but it typically takes several weeks to several months.

Q: What happens after I submit the DBPR AR1 Application?
A: After you submit the DBPR AR1 Application, it will be reviewed by the DBPR. If approved, you will be eligible to take the licensure examination.

ADVERTISEMENT

Form Details:

  • Released on January 1, 2020;
  • The latest edition provided by the Florida Department of Business & Professional Regulation;
  • Easy to use and ready to print;
  • Quick to customize;
  • Compatible with most PDF-viewing applications;
  • Fill out the form in our online filing application.

Download a printable version of Form DBPR AR1 by clicking the link below or browse more documents and templates provided by the Florida Department of Business & Professional Regulation.

Download Form DBPR AR1 Application for Licensure by Examination - Florida

4.5 of 5 (11 votes)
  • Form DBPR AR1 Application for Licensure by Examination - Florida

    1

  • Form DBPR AR1 Application for Licensure by Examination - Florida, Page 2

    2

  • Form DBPR AR1 Application for Licensure by Examination - Florida, Page 3

    3

  • Form DBPR AR1 Application for Licensure by Examination - Florida, Page 4

    4

  • Form DBPR AR1 Application for Licensure by Examination - Florida, Page 5

    5

  • Form DBPR AR1 Application for Licensure by Examination - Florida, Page 6

    6

  • Form DBPR AR1 Application for Licensure by Examination - Florida, Page 1
  • Form DBPR AR1 Application for Licensure by Examination - Florida, Page 2
  • Form DBPR AR1 Application for Licensure by Examination - Florida, Page 3
  • Form DBPR AR1 Application for Licensure by Examination - Florida, Page 4
  • Form DBPR AR1 Application for Licensure by Examination - Florida, Page 5
  • Form DBPR AR1 Application for Licensure by Examination - Florida, Page 6
Prev 1 2 3 4 5 6 Next
ADVERTISEMENT