Source Test Observers Checklist - EPA Methods 1-5 & 26a (Hydrogen Halides and Halogens) - North Carolina

Source Test Observers Checklist - EPA Methods 1-5 & 26a (Hydrogen Halides and Halogens) - North Carolina

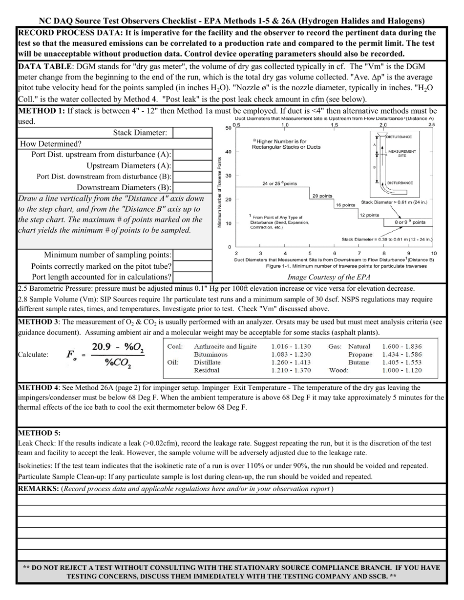
Source Test Observers Checklist - EPA Methods 1-5 & 26a (Hydrogen Halides and Halogens) is a legal document that was released by the North Carolina Department of Environmental Quality - a government authority operating within North Carolina.

FAQ

Q: What is the purpose of the Source Test Observers Checklist?
A: The purpose of the checklist is to assist in conducting source testing for hydrogen halides and halogens.

Q: Which EPA methods does the checklist cover?
A: The checklist covers EPA Methods 1-5 & 26a, which are used for measuring hydrogen halides and halogens.

Q: Why is measuring hydrogen halides and halogens important?
A: Measuring hydrogen halides and halogens is important for assessing air quality and compliance with environmental regulations.

Q: Who can use the Source Test Observers Checklist?
A: The checklist can be used by source test observers, such as technicians and engineers, who are conducting testing for hydrogen halides and halogens.

Q: What is the purpose of EPA Methods 1-5 & 26a?
A: EPA Methods 1-5 & 26a provide standardized procedures for sampling and analysis of hydrogen halides and halogens in emissions from industrial sources.

Q: Why is it important to follow the checklist?
A: Following the checklist ensures that source testing for hydrogen halides and halogens is conducted in a consistent and accurate manner.

Q: Are there any specific requirements for using the checklist?
A: Yes, users of the checklist must be familiar with EPA Methods 1-5 & 26a and have appropriate training and qualifications for conducting source testing.

Q: Can the checklist be customized for specific testing needs?
A: Yes, the checklist can be customized to include additional items or procedures that are specific to the testing requirements of a particular facility or project.

Q: What are some common items included in the checklist?
A: Common items in the checklist include equipment checks, calibration procedures, sampling protocols, and data recording and documentation.

ADVERTISEMENT

Form Details:

  • The latest edition currently provided by the North Carolina Department of Environmental Quality;
  • Ready to use and print;
  • Easy to customize;
  • Compatible with most PDF-viewing applications;
  • Fill out the form in our online filing application.

Download a printable version of the form by clicking the link below or browse more documents and templates provided by the North Carolina Department of Environmental Quality.

Download Source Test Observers Checklist - EPA Methods 1-5 & 26a (Hydrogen Halides and Halogens) - North Carolina

4.4 of 5 (25 votes)
  • Source Test Observers Checklist - EPA Methods 1-5 & 26a (Hydrogen Halides and Halogens) - North Carolina

    1

  • Source Test Observers Checklist - EPA Methods 1-5 & 26a (Hydrogen Halides and Halogens) - North Carolina, Page 2

    2

  • Source Test Observers Checklist - EPA Methods 1-5 & 26a (Hydrogen Halides and Halogens) - North Carolina, Page 3

    3

  • Source Test Observers Checklist - EPA Methods 1-5  26a (Hydrogen Halides and Halogens) - North Carolina, Page 1
  • Source Test Observers Checklist - EPA Methods 1-5  26a (Hydrogen Halides and Halogens) - North Carolina, Page 2
  • Source Test Observers Checklist - EPA Methods 1-5  26a (Hydrogen Halides and Halogens) - North Carolina, Page 3
Prev 1 2 3 Next
ADVERTISEMENT