Form DBPR AR5 Application to Qualify Architectural Business Organization - Florida

Notification Icon This version of the form is not currently in use and is provided for reference only. Download this version of Form DBPR AR5 for the current year.

Form DBPR AR5 Application to Qualify Architectural Business Organization - Florida

What Is Form DBPR AR5?

This is a legal form that was released by the Florida Department of Business & Professional Regulation - a government authority operating within Florida. As of today, no separate filing guidelines for the form are provided by the issuing department.

FAQ

Q: What is the DBPR AR5 Application?
A: The DBPR AR5 Application is the application used to qualify an architectural business organization in Florida.

Q: What does it mean to qualify an architectural business organization?
A: Qualifying an architectural business organization means obtaining the necessary license and permits to legally operate the business in Florida.

Q: Who needs to fill out the DBPR AR5 Application?
A: The DBPR AR5 Application should be filled out by architectural business organizations wishing to operate in Florida.

Q: What information is required on the DBPR AR5 Application?
A: The DBPR AR5 Application requires information such as the organization's name, contact information, license number, and proof of financial responsibility.

Q: Are there any fees associated with the DBPR AR5 Application?
A: Yes, there are fees associated with the DBPR AR5 Application. The exact amount depends on the type of architectural business organization and the services offered.

ADVERTISEMENT

Form Details:

  • Released on July 1, 2020;
  • The latest edition provided by the Florida Department of Business & Professional Regulation;
  • Easy to use and ready to print;
  • Quick to customize;
  • Compatible with most PDF-viewing applications;
  • Fill out the form in our online filing application.

Download a printable version of Form DBPR AR5 by clicking the link below or browse more documents and templates provided by the Florida Department of Business & Professional Regulation.

Download Form DBPR AR5 Application to Qualify Architectural Business Organization - Florida

4.5 of 5 (12 votes)
  • Form DBPR AR5 Application to Qualify Architectural Business Organization - Florida

    1

  • Form DBPR AR5 Application to Qualify Architectural Business Organization - Florida, Page 2

    2

  • Form DBPR AR5 Application to Qualify Architectural Business Organization - Florida, Page 3

    3

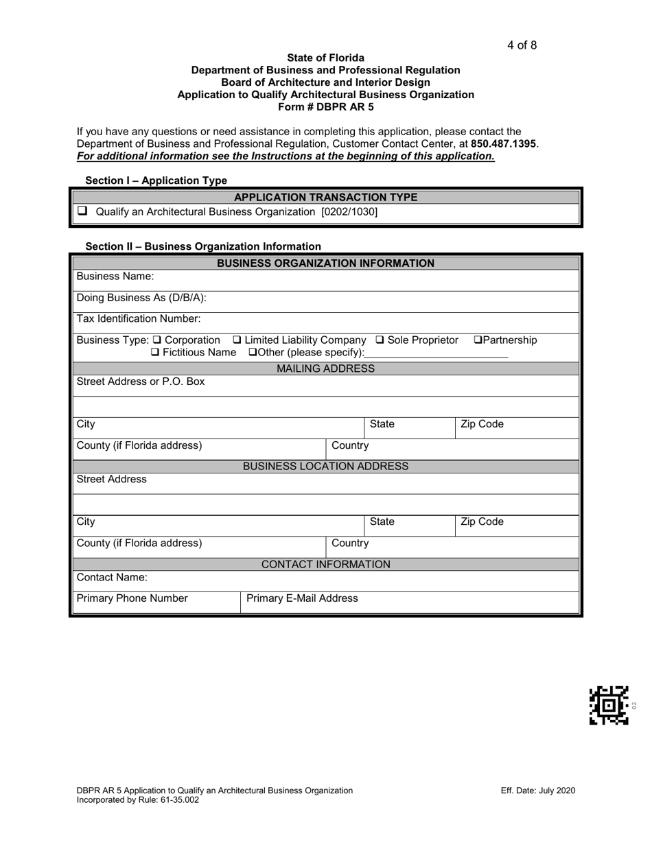
  • Form DBPR AR5 Application to Qualify Architectural Business Organization - Florida, Page 4

    4

  • Form DBPR AR5 Application to Qualify Architectural Business Organization - Florida, Page 5

    5

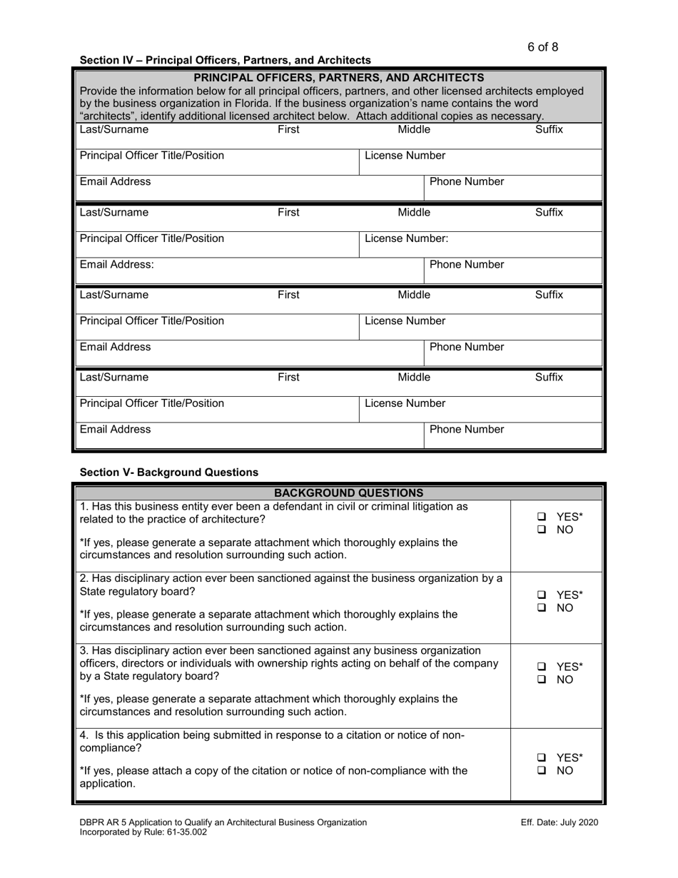
  • Form DBPR AR5 Application to Qualify Architectural Business Organization - Florida, Page 6

    6

  • Form DBPR AR5 Application to Qualify Architectural Business Organization - Florida, Page 7

    7

  • Form DBPR AR5 Application to Qualify Architectural Business Organization - Florida, Page 8

    8

  • Form DBPR AR5 Application to Qualify Architectural Business Organization - Florida, Page 1
  • Form DBPR AR5 Application to Qualify Architectural Business Organization - Florida, Page 2
  • Form DBPR AR5 Application to Qualify Architectural Business Organization - Florida, Page 3
  • Form DBPR AR5 Application to Qualify Architectural Business Organization - Florida, Page 4
  • Form DBPR AR5 Application to Qualify Architectural Business Organization - Florida, Page 5
  • Form DBPR AR5 Application to Qualify Architectural Business Organization - Florida, Page 6
  • Form DBPR AR5 Application to Qualify Architectural Business Organization - Florida, Page 7
  • Form DBPR AR5 Application to Qualify Architectural Business Organization - Florida, Page 8
Prev 1 2 3 4 5 ... 8 Next
ADVERTISEMENT