New Business License and Qualifying Party Registration Application - Arizona

New Business License and Qualifying Party Registration Application - Arizona

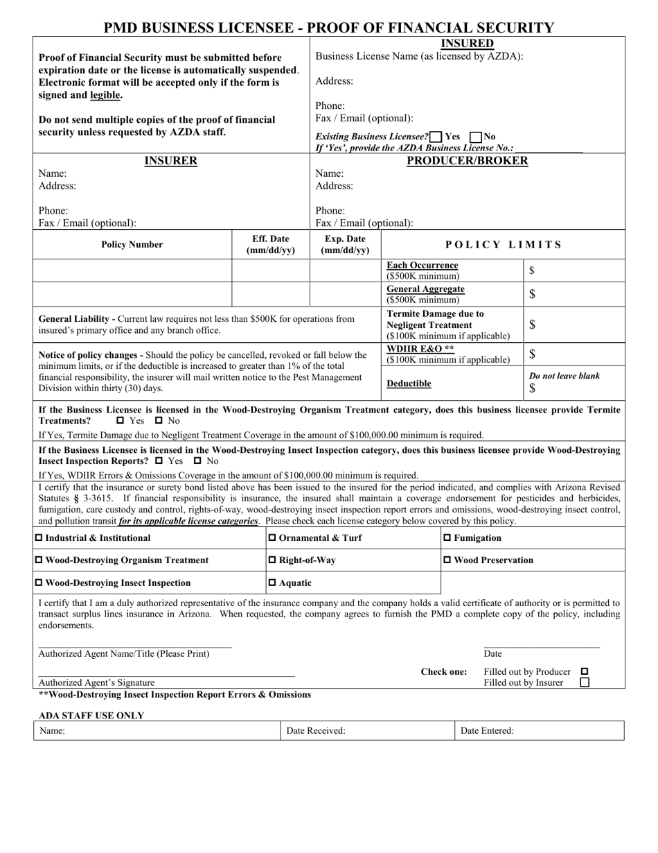
New Business License and Qualifying Party Registration Application is a legal document that was released by the Arizona Department of Agriculture - a government authority operating within Arizona.

FAQ

Q: What is a business license?
A: A business license is a legal document that allows an individual or company to operate a business in a specific location.

Q: What is a qualifying party registration?
A: A qualifying party registration is a requirement in Arizona for certain construction-related businesses, where a designated individual is responsible for overseeing the technical aspects of the work.

Q: Who needs to fill out the New Business License and Qualifying Party Registration Application?
A: Individuals or companies planning to start a new business in Arizona that requires a business license and/or qualifying party registration need to fill out this application.

Q: What information is required in the application?
A: The application typically requires details such as the business entity type, business address, owner information, trade name, and information about the qualifying party.

Q: Are there any fees associated with the application?
A: Yes, there are typically fees associated with both the business license and the qualifying party registration. The fees can vary depending on the type of business and other factors.

ADVERTISEMENT

Form Details:

  • Released on July 1, 2019;
  • The latest edition currently provided by the Arizona Department of Agriculture;
  • Ready to use and print;
  • Easy to customize;
  • Compatible with most PDF-viewing applications;
  • Fill out the form in our online filing application.

Download a fillable version of the form by clicking the link below or browse more documents and templates provided by the Arizona Department of Agriculture.

Download New Business License and Qualifying Party Registration Application - Arizona

4.7 of 5 (16 votes)
  • New Business License and Qualifying Party Registration Application - Arizona

    1

  • New Business License and Qualifying Party Registration Application - Arizona, Page 2

    2

  • New Business License and Qualifying Party Registration Application - Arizona, Page 3

    3

  • New Business License and Qualifying Party Registration Application - Arizona, Page 4

    4

  • New Business License and Qualifying Party Registration Application - Arizona, Page 5

    5

  • New Business License and Qualifying Party Registration Application - Arizona, Page 1
  • New Business License and Qualifying Party Registration Application - Arizona, Page 2
  • New Business License and Qualifying Party Registration Application - Arizona, Page 3
  • New Business License and Qualifying Party Registration Application - Arizona, Page 4
  • New Business License and Qualifying Party Registration Application - Arizona, Page 5
Prev 1 2 3 4 5 Next
ADVERTISEMENT