C&DD Facility License Application Tabs - Ohio

Notification Icon This version of the form is not currently in use and is provided for reference only. Download this version of the document for the current year.

C&DD Facility License Application Tabs - Ohio

C&DD Facility License Application Tabs is a legal document that was released by the Ohio Environmental Protection Agency - a government authority operating within Ohio.

FAQ

Q: What is a C&DD Facility License?
A: A C&DD Facility License is a permit required for operating a construction and demolition debris facility in Ohio.

Q: What is C&DD waste?
A: C&DD waste refers to waste materials such as concrete, asphalt, wood, bricks, and other materials generated from construction and demolition projects.

Q: How can I apply for a C&DD Facility License in Ohio?
A: You can apply for a C&DD Facility License by submitting an application to the Ohio Environmental Protection Agency (EPA) along with the required documents and fees.

Q: What are the tabs required for a C&DD Facility License application in Ohio?
A: The tabs required for a C&DD Facility License application in Ohio include general information, site plan, operation plan, closure and post-closure plan, financial assurance, and compliance history.

Q: What is the purpose of the site plan tab in a C&DD Facility License application?
A: The site plan tab provides details about the location, layout, and design of the proposed C&DD facility, including drainage, access roads, and other relevant information.

Q: What does the operation plan tab include in a C&DD Facility License application?
A: The operation plan tab includes information about the management and operation of the C&DD facility, such as waste acceptance criteria, handling procedures, and record-keeping requirements.

Q: Why is a closure and post-closure plan required for a C&DD Facility License application?
A: A closure and post-closure plan is required to ensure proper closure and long-term monitoring of the C&DD facility after it ceases operation. It outlines the steps and measures to be taken to protect the environment and public health.

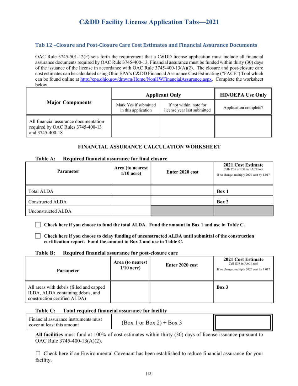
Q: What is financial assurance in relation to a C&DD Facility License application?
A: Financial assurance refers to the financial resources that a C&DD facility owner must provide to cover the costs of closure, post-closure care, and any potential environmental cleanup.

Q: What is compliance history in the context of a C&DD Facility License application?
A: Compliance history refers to the past record of a facility owner or operator in complying with environmental regulations, permits, and requirements. It demonstrates their ability to operate a C&DD facility in accordance with the law.

ADVERTISEMENT

Form Details:

  • The latest edition currently provided by the Ohio Environmental Protection Agency;
  • Ready to use and print;
  • Easy to customize;
  • Compatible with most PDF-viewing applications;
  • Fill out the form in our online filing application.

Download a printable version of the form by clicking the link below or browse more documents and templates provided by the Ohio Environmental Protection Agency.

Download C&DD Facility License Application Tabs - Ohio

4.3 of 5 (20 votes)
  • C&DD Facility License Application Tabs - Ohio

    1

  • C&DD Facility License Application Tabs - Ohio, Page 2

    2

  • C&DD Facility License Application Tabs - Ohio, Page 3

    3

  • C&DD Facility License Application Tabs - Ohio, Page 4

    4

  • C&DD Facility License Application Tabs - Ohio, Page 5

    5

  • C&DD Facility License Application Tabs - Ohio, Page 6

    6

  • C&DD Facility License Application Tabs - Ohio, Page 7

    7

  • C&DD Facility License Application Tabs - Ohio, Page 8

    8

  • C&DD Facility License Application Tabs - Ohio, Page 9

    9

  • C&DD Facility License Application Tabs - Ohio, Page 10

    10

  • C&DD Facility License Application Tabs - Ohio, Page 11

    11

  • C&DD Facility License Application Tabs - Ohio, Page 12

    12

  • C&DD Facility License Application Tabs - Ohio, Page 13

    13

  • C&DD Facility License Application Tabs - Ohio, Page 14

    14

  • CDD Facility License Application Tabs - Ohio, Page 1
  • CDD Facility License Application Tabs - Ohio, Page 2
  • CDD Facility License Application Tabs - Ohio, Page 3
  • CDD Facility License Application Tabs - Ohio, Page 4
  • CDD Facility License Application Tabs - Ohio, Page 5
  • CDD Facility License Application Tabs - Ohio, Page 6
  • CDD Facility License Application Tabs - Ohio, Page 7
  • CDD Facility License Application Tabs - Ohio, Page 8
  • CDD Facility License Application Tabs - Ohio, Page 9
  • CDD Facility License Application Tabs - Ohio, Page 10
  • CDD Facility License Application Tabs - Ohio, Page 11
  • CDD Facility License Application Tabs - Ohio, Page 12
  • CDD Facility License Application Tabs - Ohio, Page 13
  • CDD Facility License Application Tabs - Ohio, Page 14
Prev 1 2 3 4 5 ... 14 Next
ADVERTISEMENT