ADEC Form 18-0511 Ust Operations Inspection Report - Alaska

Notification Icon This version of the form is not currently in use and is provided for reference only. Download this version of ADEC Form 18-0511 for the current year.

ADEC Form 18-0511 Ust Operations Inspection Report - Alaska

What Is ADEC Form 18-0511?

This is a legal form that was released by the Alaska Department of Environmental Conservation - a government authority operating within Alaska. As of today, no separate filing guidelines for the form are provided by the issuing department.

FAQ

Q: What is ADEC Form 18-0511 Ust Operations Inspection Report?
A: ADEC Form 18-0511 Ust Operations Inspection Report is a specific document used in Alaska for inspecting underground storage tank (UST) operations.

Q: What does UST stand for?
A: UST stands for underground storage tank.

Q: What is the purpose of the UST Operations Inspection Report?
A: The purpose of the UST Operations Inspection Report is to evaluate the compliance and condition of underground storage tanks in Alaska.

Q: Who is responsible for completing the UST Operations Inspection Report?
A: The inspection report is typically completed by qualified individuals authorized by the Alaska Department of Environmental Conservation (ADEC).

Q: Are there any specific regulations or guidelines associated with the UST Operations Inspection Report?
A: Yes, the inspection report must comply with the regulations outlined in Alaska's UST regulations, which can include requirements for tank integrity testing, leak detection, and recordkeeping.

Q: Are there any fees associated with the UST Operations Inspection Report?
A: There may be fees associated with the inspection and filing of the UST Operations Inspection Report. The specific fees can vary depending on the size and type of the underground storage tank.

Q: How often does the UST Operations Inspection Report need to be conducted?
A: The frequency of the inspections can vary depending on the specific circumstances, but generally, inspections are required at least once every three years for regulated USTs in Alaska.

Q: What happens if there are non-compliance issues identified in the UST Operations Inspection Report?
A: If non-compliance issues are identified, corrective actions may be required, which can include repairs, upgrades, or additional monitoring and testing to bring the underground storage tank into compliance with regulations.

Q: Is the UST Operations Inspection Report applicable only to Alaska?
A: Yes, the UST Operations Inspection Report is specific to Alaska and its underground storage tank regulations. Other states may have their own inspection report forms and requirements.

Q: Who should I contact if I have questions or need more information about the UST Operations Inspection Report?
A: For any questions or further information, you can contact the Alaska Department of Environmental Conservation (ADEC) or their designated UST program contact for guidance.

ADVERTISEMENT

Form Details:

  • Released on March 20, 2020;
  • The latest edition provided by the Alaska Department of Environmental Conservation;
  • Easy to use and ready to print;
  • Quick to customize;
  • Compatible with most PDF-viewing applications;
  • Fill out the form in our online filing application.

Download a printable version of ADEC Form 18-0511 by clicking the link below or browse more documents and templates provided by the Alaska Department of Environmental Conservation.

Download ADEC Form 18-0511 Ust Operations Inspection Report - Alaska

4.4 of 5 (27 votes)
  • ADEC Form 18-0511 Ust Operations Inspection Report - Alaska

    1

  • ADEC Form 18-0511 Ust Operations Inspection Report - Alaska, Page 2

    2

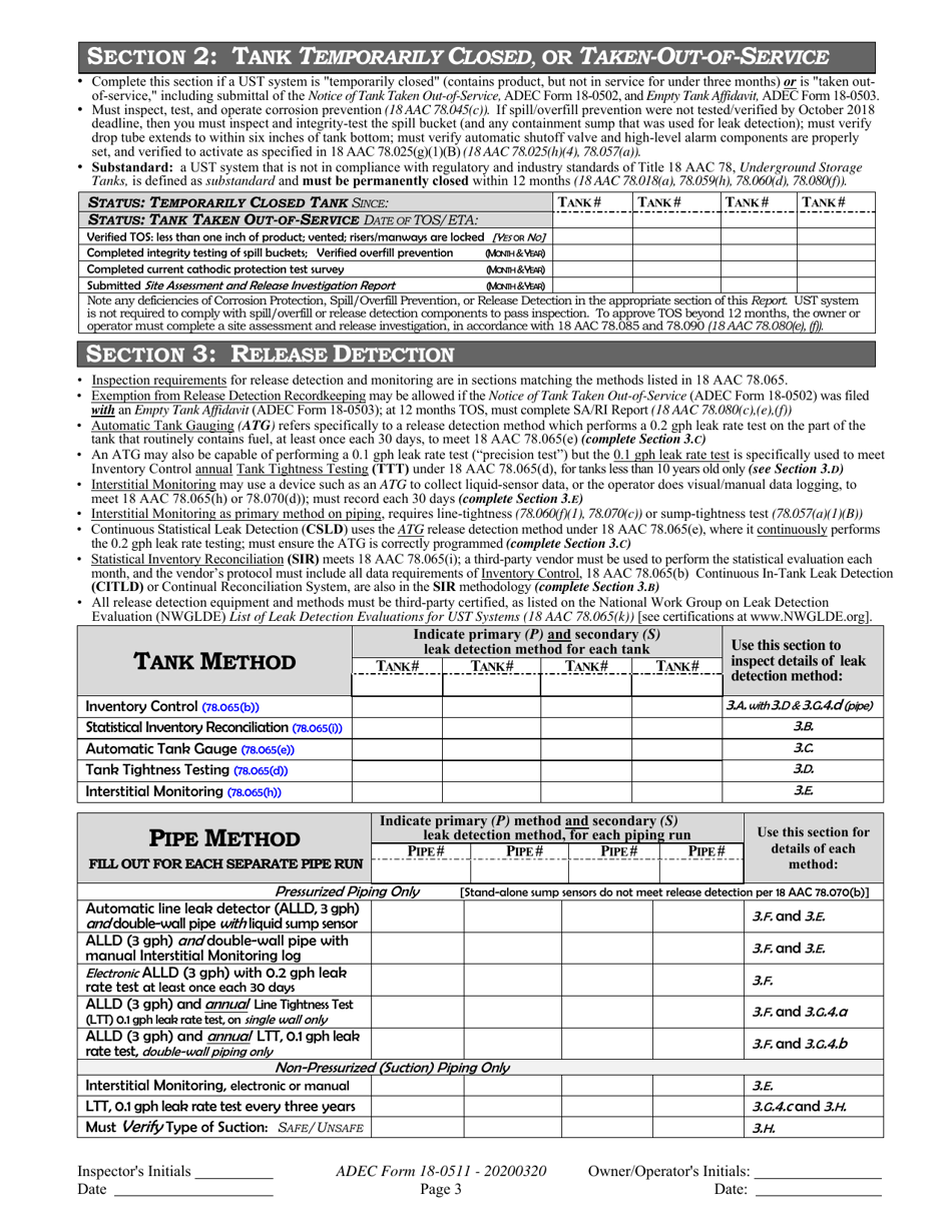
  • ADEC Form 18-0511 Ust Operations Inspection Report - Alaska, Page 3

    3

  • ADEC Form 18-0511 Ust Operations Inspection Report - Alaska, Page 4

    4

  • ADEC Form 18-0511 Ust Operations Inspection Report - Alaska, Page 5

    5

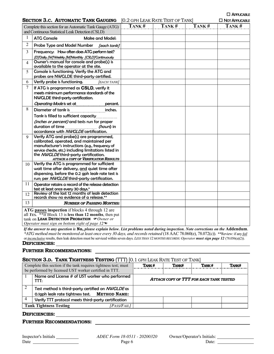
  • ADEC Form 18-0511 Ust Operations Inspection Report - Alaska, Page 6

    6

  • ADEC Form 18-0511 Ust Operations Inspection Report - Alaska, Page 7

    7

  • ADEC Form 18-0511 Ust Operations Inspection Report - Alaska, Page 8

    8

  • ADEC Form 18-0511 Ust Operations Inspection Report - Alaska, Page 9

    9

  • ADEC Form 18-0511 Ust Operations Inspection Report - Alaska, Page 10

    10

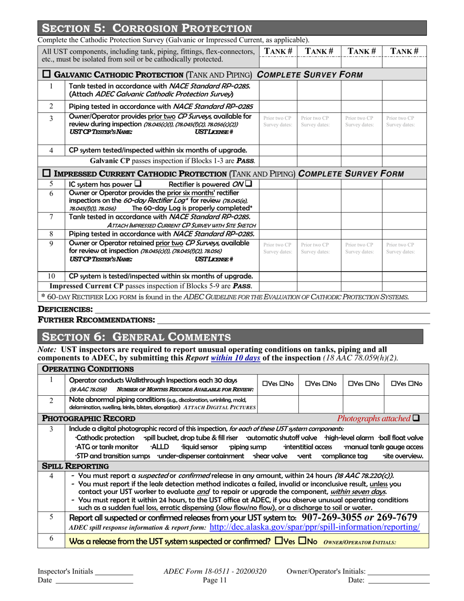
  • ADEC Form 18-0511 Ust Operations Inspection Report - Alaska, Page 11

    11

  • ADEC Form 18-0511 Ust Operations Inspection Report - Alaska, Page 12

    12

  • ADEC Form 18-0511 Ust Operations Inspection Report - Alaska, Page 13

    13

  • ADEC Form 18-0511 Ust Operations Inspection Report - Alaska, Page 1
  • ADEC Form 18-0511 Ust Operations Inspection Report - Alaska, Page 2
  • ADEC Form 18-0511 Ust Operations Inspection Report - Alaska, Page 3
  • ADEC Form 18-0511 Ust Operations Inspection Report - Alaska, Page 4
  • ADEC Form 18-0511 Ust Operations Inspection Report - Alaska, Page 5
  • ADEC Form 18-0511 Ust Operations Inspection Report - Alaska, Page 6
  • ADEC Form 18-0511 Ust Operations Inspection Report - Alaska, Page 7
  • ADEC Form 18-0511 Ust Operations Inspection Report - Alaska, Page 8
  • ADEC Form 18-0511 Ust Operations Inspection Report - Alaska, Page 9
  • ADEC Form 18-0511 Ust Operations Inspection Report - Alaska, Page 10
  • ADEC Form 18-0511 Ust Operations Inspection Report - Alaska, Page 11
  • ADEC Form 18-0511 Ust Operations Inspection Report - Alaska, Page 12
  • ADEC Form 18-0511 Ust Operations Inspection Report - Alaska, Page 13
Prev 1 2 3 4 5 ... 13 Next
ADVERTISEMENT