DNR Form 542-1415 Notice of Intent for Npdes Coverage Under General Permit - Iowa

Notification Icon This version of the form is not currently in use and is provided for reference only. Download this version of DNR Form 542-1415 for the current year.

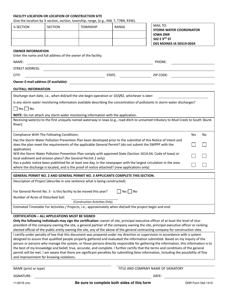
DNR Form 542-1415 Notice of Intent for Npdes Coverage Under General Permit - Iowa

What Is DNR Form 542-1415?

This is a legal form that was released by the Iowa Department of Natural Resources - a government authority operating within Iowa. As of today, no separate filing guidelines for the form are provided by the issuing department.

FAQ

Q: What is DNR Form 542-1415?
A: DNR Form 542-1415 is the Notice of Intent for NPDES Coverage under General Permit - Iowa.

Q: What is NPDES?
A: NPDES stands for National Pollutant Discharge Elimination System. It is a permit program that regulates the discharge of pollutants into U.S. waters.

Q: What is a General Permit?
A: A General Permit is a permit that covers multiple dischargers under similar conditions. It provides a streamlined process for obtaining permit coverage.

Q: What is the purpose of the Notice of Intent?
A: The Notice of Intent is used to notify the Iowa Department of Natural Resources of the intent to obtain NPDES coverage under the General Permit.

Q: Who needs to submit the Notice of Intent?
A: Any person or entity planning to discharge pollutants into U.S. waters in Iowa under the General Permit needs to submit the Notice of Intent.

Q: Are there any fees associated with submitting the Notice of Intent?
A: Yes, there are fees associated with submitting the Notice of Intent. The specific fee amounts can be found in the instructions accompanying the form.

Q: Is the Notice of Intent a one-time submission?
A: No, the Notice of Intent needs to be submitted annually for each permit year.

Q: What happens after I submit the Notice of Intent?
A: After submitting the Notice of Intent, the Iowa Department of Natural Resources will review the application and provide an approval or denial of the permit coverage.

Q: What should I do if my Notice of Intent is denied?
A: If your Notice of Intent is denied, you should contact the Iowa Department of Natural Resources to discuss the reasons for denial and any possible remedies.

ADVERTISEMENT

Form Details:

  • Released on November 1, 2018;
  • The latest edition provided by the Iowa Department of Natural Resources;
  • Easy to use and ready to print;
  • Quick to customize;
  • Compatible with most PDF-viewing applications;
  • Fill out the form in our online filing application.

Download a fillable version of DNR Form 542-1415 by clicking the link below or browse more documents and templates provided by the Iowa Department of Natural Resources.

Download DNR Form 542-1415 Notice of Intent for Npdes Coverage Under General Permit - Iowa

4.4 of 5 (34 votes)
  • DNR Form 542-1415 Notice of Intent for Npdes Coverage Under General Permit - Iowa

    1

  • DNR Form 542-1415 Notice of Intent for Npdes Coverage Under General Permit - Iowa, Page 2

    2

  • DNR Form 542-1415 Notice of Intent for Npdes Coverage Under General Permit - Iowa, Page 3

    3

  • DNR Form 542-1415 Notice of Intent for Npdes Coverage Under General Permit - Iowa, Page 4

    4

  • DNR Form 542-1415 Notice of Intent for Npdes Coverage Under General Permit - Iowa, Page 5

    5

  • DNR Form 542-1415 Notice of Intent for Npdes Coverage Under General Permit - Iowa, Page 1
  • DNR Form 542-1415 Notice of Intent for Npdes Coverage Under General Permit - Iowa, Page 2
  • DNR Form 542-1415 Notice of Intent for Npdes Coverage Under General Permit - Iowa, Page 3
  • DNR Form 542-1415 Notice of Intent for Npdes Coverage Under General Permit - Iowa, Page 4
  • DNR Form 542-1415 Notice of Intent for Npdes Coverage Under General Permit - Iowa, Page 5
Prev 1 2 3 4 5 Next
ADVERTISEMENT

Related Documents