Form GWS432 Report of Inspection for an on-Site Wastewater Treatment Facility - Arizona

Form GWS432 Report of Inspection for an on-Site Wastewater Treatment Facility - Arizona

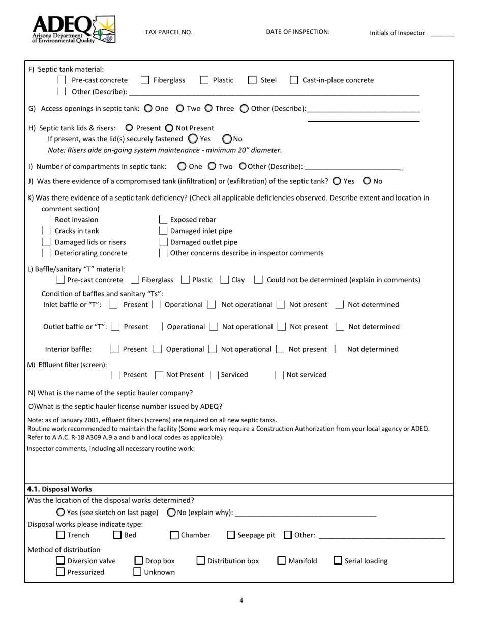
What Is Form GWS432?

This is a legal form that was released by the Arizona Department of Environmental Quality - a government authority operating within Arizona. As of today, no separate filing guidelines for the form are provided by the issuing department.

FAQ

Q: What is a GWS432 Report of Inspection?
A: The GWS432 Report of Inspection is a document used to report the inspection findings of an on-site wastewater treatment facility in Arizona.

Q: What is an on-site wastewater treatment facility?
A: An on-site wastewater treatment facility is a system that is used to treat and dispose of wastewater generated by a single property or building, usually located in rural areas where municipal sewer systems are not available.

Q: Why is a GWS432 Report of Inspection required?
A: The GWS432 Report of Inspection is required to ensure that on-site wastewater treatment facilities are properly maintained and functioning in accordance with Arizona's regulations and standards.

Q: Who is responsible for completing the GWS432 Report of Inspection?
A: The GWS432 Report of Inspection is typically completed by a certified inspector who is knowledgeable about on-site wastewater treatment systems in Arizona.

Q: What information is included in the GWS432 Report of Inspection?
A: The GWS432 Report of Inspection includes details about the property, the wastewater treatment facility, the inspection findings, and any recommended repairs or maintenance.

Q: How often is the GWS432 Report of Inspection required?
A: In Arizona, the GWS432 Report of Inspection is generally required to be completed every three years for residential properties, and every year for commercial properties.

Q: What happens if a property fails the GWS432 inspection?
A: If a property fails the GWS432 inspection, the owner is usually required to make the necessary repairs or improvements to bring the on-site wastewater treatment facility into compliance with the regulations.

Q: Is the GWS432 Report of Inspection applicable outside of Arizona?
A: No, the GWS432 Report of Inspection is specific to Arizona and may not be applicable in other states or jurisdictions.

Q: How can I find a certified inspector for the GWS432 Report of Inspection?
A: You can contact the Arizona Department of Environmental Quality (ADEQ) for a list of certified inspectors in your area.

Q: Are there any fees associated with the GWS432 Report of Inspection?
A: Yes, there are typically fees associated with the GWS432 Report of Inspection, which may vary depending on the inspector and the property's location.

ADVERTISEMENT

Form Details:

  • Released on April 22, 2021;
  • The latest edition provided by the Arizona Department of Environmental Quality;
  • Easy to use and ready to print;
  • Quick to customize;
  • Compatible with most PDF-viewing applications;
  • Fill out the form in our online filing application.

Download a fillable version of Form GWS432 by clicking the link below or browse more documents and templates provided by the Arizona Department of Environmental Quality.

Download Form GWS432 Report of Inspection for an on-Site Wastewater Treatment Facility - Arizona

4.8 of 5 (22 votes)
  • Form GWS432 Report of Inspection for an on-Site Wastewater Treatment Facility - Arizona

    1

  • Form GWS432 Report of Inspection for an on-Site Wastewater Treatment Facility - Arizona, Page 2

    2

  • Form GWS432 Report of Inspection for an on-Site Wastewater Treatment Facility - Arizona, Page 3

    3

  • Form GWS432 Report of Inspection for an on-Site Wastewater Treatment Facility - Arizona, Page 4

    4

  • Form GWS432 Report of Inspection for an on-Site Wastewater Treatment Facility - Arizona, Page 5

    5

  • Form GWS432 Report of Inspection for an on-Site Wastewater Treatment Facility - Arizona, Page 6

    6

  • Form GWS432 Report of Inspection for an on-Site Wastewater Treatment Facility - Arizona, Page 7

    7

  • Form GWS432 Report of Inspection for an on-Site Wastewater Treatment Facility - Arizona, Page 8

    8

  • Form GWS432 Report of Inspection for an on-Site Wastewater Treatment Facility - Arizona, Page 9

    9

  • Form GWS432 Report of Inspection for an on-Site Wastewater Treatment Facility - Arizona, Page 1
  • Form GWS432 Report of Inspection for an on-Site Wastewater Treatment Facility - Arizona, Page 2
  • Form GWS432 Report of Inspection for an on-Site Wastewater Treatment Facility - Arizona, Page 3
  • Form GWS432 Report of Inspection for an on-Site Wastewater Treatment Facility - Arizona, Page 4
  • Form GWS432 Report of Inspection for an on-Site Wastewater Treatment Facility - Arizona, Page 5
  • Form GWS432 Report of Inspection for an on-Site Wastewater Treatment Facility - Arizona, Page 6
  • Form GWS432 Report of Inspection for an on-Site Wastewater Treatment Facility - Arizona, Page 7
  • Form GWS432 Report of Inspection for an on-Site Wastewater Treatment Facility - Arizona, Page 8
  • Form GWS432 Report of Inspection for an on-Site Wastewater Treatment Facility - Arizona, Page 9
Prev 1 2 3 4 5 ... 9 Next
ADVERTISEMENT

Related Documents