Form SRG2009 Application for Major Aerodrome Infrastructure Project Approval - United Kingdom

Notification Icon This version of the form is not currently in use and is provided for reference only. Download this version of Form SRG2009 for the current year.

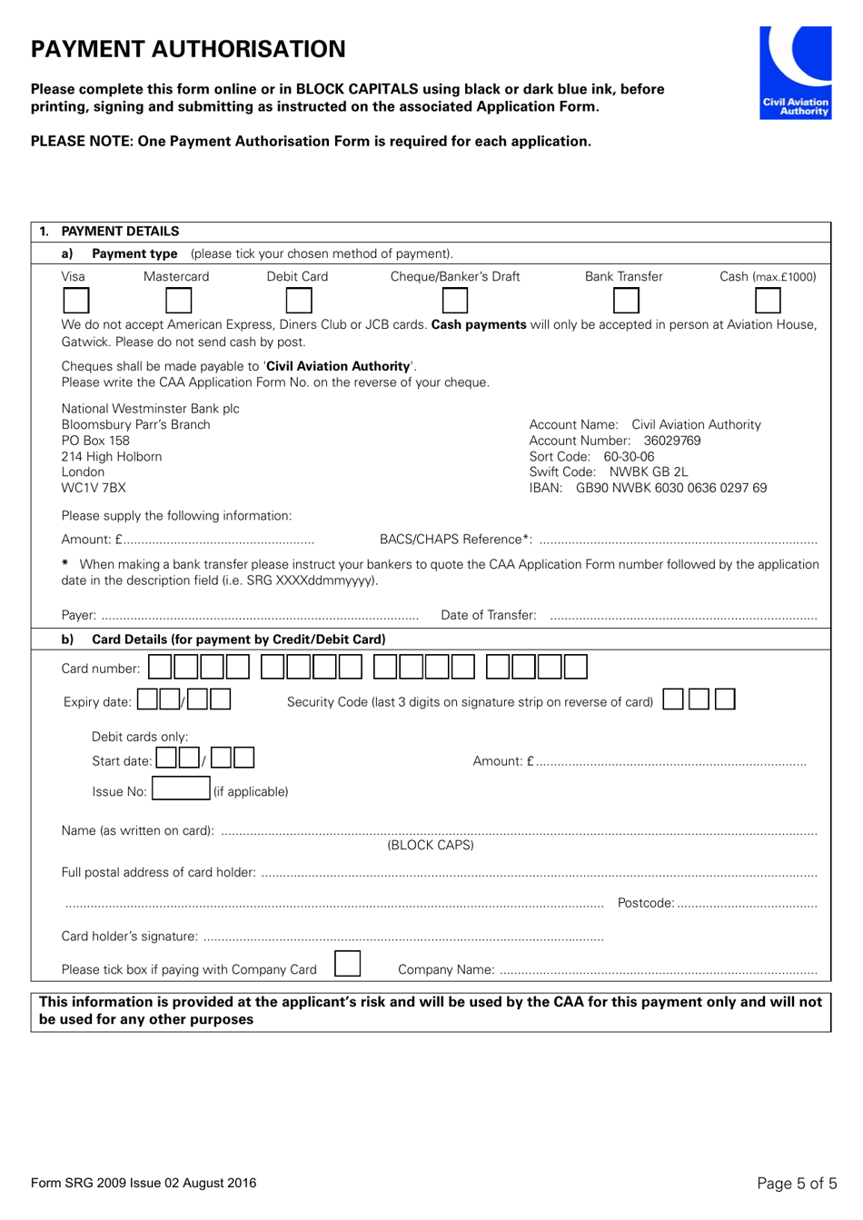
Form SRG2009 Application for Major Aerodrome Infrastructure Project Approval - United Kingdom

FAQ

Q: What is Form SRG2009?
A: Form SRG2009 is an application for Major Aerodrome Infrastructure Project Approval in the United Kingdom.

Q: What is the purpose of Form SRG2009?
A: The purpose of Form SRG2009 is to seek approval for major aerodrome infrastructure projects in the United Kingdom.

Q: Who needs to fill out Form SRG2009?
A: Anyone who is planning a major aerodrome infrastructure project in the United Kingdom needs to fill out Form SRG2009.

Q: What information is required in Form SRG2009?
A: Form SRG2009 requires information about the planned major aerodrome infrastructure project, including details of the project, purpose, location, and impact on the environment.

Q: Are there any fees associated with Form SRG2009?
A: There may be fees associated with Form SRG2009. The specific fees will depend on the nature and scale of the proposed project.

Q: Is approval guaranteed after filling out Form SRG2009?
A: Approval for major aerodrome infrastructure projects is not guaranteed after filling out Form SRG2009. The application will be reviewed by the relevant authorities, and approval will be granted based on compliance with regulations and assessment of the project's impact.

Q: What happens after submitting Form SRG2009?
A: After submitting Form SRG2009, the application will be reviewed by the relevant authorities. They will assess the project's compliance with regulations and its impact on the environment before making a decision on approval.

Q: Can I make changes to my application after submitting Form SRG2009?
A: It may be possible to make changes to the application after submitting Form SRG2009. However, it is advisable to consult with the relevant authorities to determine the procedure for making amendments.

Q: How long does it take to get a response after submitting Form SRG2009?
A: The timeline for receiving a response after submitting Form SRG2009 can vary. It depends on the complexity of the project and the workload of the relevant authorities. It is advisable to check with them for a more specific timeframe.

Q: What should I do if my application for Form SRG2009 is denied?
A: If your application for Form SRG2009 is denied, you may have the option to appeal the decision or make amendments to the application to address the concerns raised by the authorities. It is advisable to consult with the relevant authorities for guidance in such situations.

Q: Is Form SRG2009 only applicable to the United Kingdom?
A: Yes, Form SRG2009 is only applicable to major aerodrome infrastructure projects in the United Kingdom.

Q: Can I get assistance in filling out Form SRG2009?
A: Yes, you can seek assistance from the relevant authorities or professionals with experience in completing Form SRG2009. They can provide guidance and support in filling out the application correctly.

Q: Is there a deadline for submitting Form SRG2009?
A: There may be specific deadlines for submitting Form SRG2009, depending on the nature of the project and the requirements of the relevant authorities. It is advisable to check the official guidelines or consult with the authorities to determine any deadline.

Q: What are the consequences of not filling out Form SRG2009 for a major aerodrome infrastructure project?
A: Not filling out Form SRG2009 for a major aerodrome infrastructure project can result in non-compliance with regulations and potential legal consequences. It is important to follow the proper procedures and seek approval to ensure adherence to the law.

Q: Are there any alternative forms to Form SRG2009 for major aerodrome infrastructure project approval?
A: The availability of alternative forms for major aerodrome infrastructure project approval may vary. It is advisable to consult with the relevant authorities to determine if there are any alternative forms that can be used.

Q: Can I track the status of my application after submitting Form SRG2009?
A: It may be possible to track the status of your application after submitting Form SRG2009. This information can be obtained from the relevant authorities.

ADVERTISEMENT

Download Form SRG2009 Application for Major Aerodrome Infrastructure Project Approval - United Kingdom

4.6 of 5 (7 votes)
  • Form SRG2009 Application for Major Aerodrome Infrastructure Project Approval - United Kingdom

    1

  • Form SRG2009 Application for Major Aerodrome Infrastructure Project Approval - United Kingdom, Page 2

    2

  • Form SRG2009 Application for Major Aerodrome Infrastructure Project Approval - United Kingdom, Page 3

    3

  • Form SRG2009 Application for Major Aerodrome Infrastructure Project Approval - United Kingdom, Page 4

    4

  • Form SRG2009 Application for Major Aerodrome Infrastructure Project Approval - United Kingdom, Page 5

    5

  • Form SRG2009 Application for Major Aerodrome Infrastructure Project Approval - United Kingdom, Page 1
  • Form SRG2009 Application for Major Aerodrome Infrastructure Project Approval - United Kingdom, Page 2
  • Form SRG2009 Application for Major Aerodrome Infrastructure Project Approval - United Kingdom, Page 3
  • Form SRG2009 Application for Major Aerodrome Infrastructure Project Approval - United Kingdom, Page 4
  • Form SRG2009 Application for Major Aerodrome Infrastructure Project Approval - United Kingdom, Page 5
Prev 1 2 3 4 5 Next
ADVERTISEMENT

Related Documents