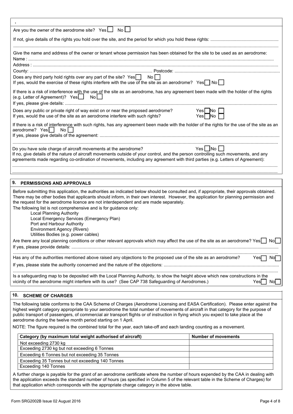
Form SRG2002B Application for an Aerodrome Certificate - United Kingdom

Notification Icon This version of the form is not currently in use and is provided for reference only. Download this version of Form SRG2002B for the current year.

Form SRG2002B Application for an Aerodrome Certificate - United Kingdom

FAQ

Q: What is Form SRG2002B?
A: Form SRG2002B is an application for an Aerodrome Certificate in the United Kingdom.

Q: Who needs to fill out Form SRG2002B?
A: Operators of aerodromes in the United Kingdom who wish to obtain an Aerodrome Certificate need to fill out this form.

Q: What is an Aerodrome Certificate?
A: An Aerodrome Certificate is a document issued by the Civil Aviation Authority (CAA) in the United Kingdom, indicating that an aerodrome meets certain safety and operational standards.

Q: What information is required in Form SRG2002B?
A: Form SRG2002B requires information about the aerodrome operator, the aerodrome's location, facilities, safety management systems, and other operational details.

Q: Are there any fees associated with Form SRG2002B?
A: Yes, there are fees associated with the application for an Aerodrome Certificate. The amount varies depending on the type of aerodrome and its operations.

Q: How long does it take to process Form SRG2002B?
A: The processing time for Form SRG2002B varies depending on the complexity of the application and the completeness of the information provided.

Q: What happens after submitting Form SRG2002B?
A: After submitting Form SRG2002B, the Civil Aviation Authority (CAA) will review the application, conduct inspections if necessary, and make a decision on whether to issue an Aerodrome Certificate or not.

ADVERTISEMENT

Download Form SRG2002B Application for an Aerodrome Certificate - United Kingdom

4.6 of 5 (7 votes)
  • Form SRG2002B Application for an Aerodrome Certificate - United Kingdom

    1

  • Form SRG2002B Application for an Aerodrome Certificate - United Kingdom, Page 2

    2

  • Form SRG2002B Application for an Aerodrome Certificate - United Kingdom, Page 3

    3

  • Form SRG2002B Application for an Aerodrome Certificate - United Kingdom, Page 4

    4

  • Form SRG2002B Application for an Aerodrome Certificate - United Kingdom, Page 5

    5

  • Form SRG2002B Application for an Aerodrome Certificate - United Kingdom, Page 6

    6

  • Form SRG2002B Application for an Aerodrome Certificate - United Kingdom, Page 7

    7

  • Form SRG2002B Application for an Aerodrome Certificate - United Kingdom, Page 8

    8

  • Form SRG2002B Application for an Aerodrome Certificate - United Kingdom, Page 1
  • Form SRG2002B Application for an Aerodrome Certificate - United Kingdom, Page 2
  • Form SRG2002B Application for an Aerodrome Certificate - United Kingdom, Page 3
  • Form SRG2002B Application for an Aerodrome Certificate - United Kingdom, Page 4
  • Form SRG2002B Application for an Aerodrome Certificate - United Kingdom, Page 5
  • Form SRG2002B Application for an Aerodrome Certificate - United Kingdom, Page 6
  • Form SRG2002B Application for an Aerodrome Certificate - United Kingdom, Page 7
  • Form SRG2002B Application for an Aerodrome Certificate - United Kingdom, Page 8
Prev 1 2 3 4 5 ... 8 Next
ADVERTISEMENT