Form ARB-M1 Municipal Act Application / Appeal - Apportionment - Ontario, Canada

Notification Icon This version of the form is not currently in use and is provided for reference only. Download this version of Form ARB-M1 for the current year.

Form ARB-M1 Municipal Act Application / Appeal - Apportionment - Ontario, Canada

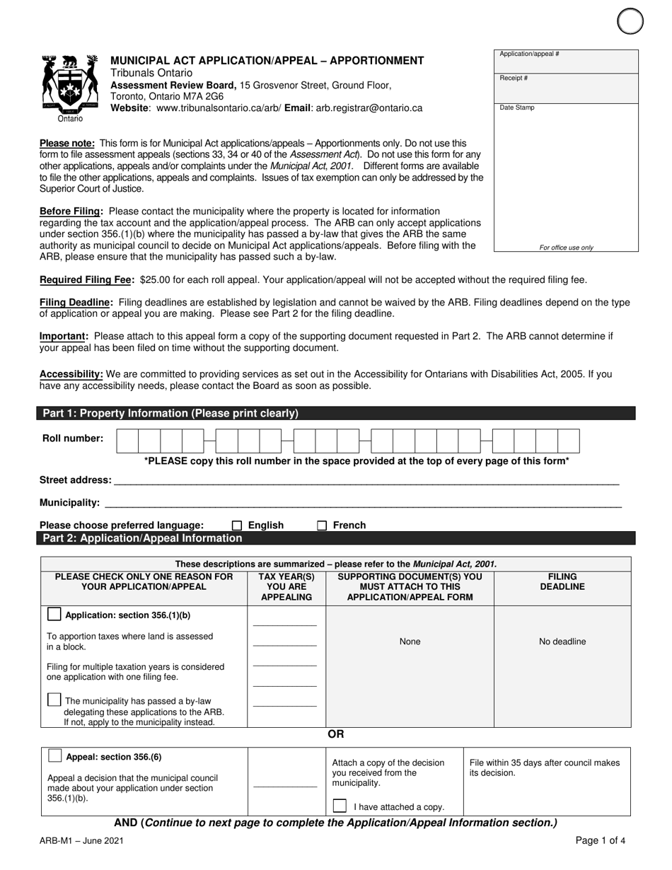
Form ARB-M1 Municipal Act Application/Appeal is used in Ontario, Canada for applying or appealing the apportionment of property taxes. It is a form that property owners can use to request a re-evaluation or adjustment of how their property taxes are apportioned.

The Form ARB-M1 Municipal Act Application/Appeal for Apportionment in Ontario, Canada is filed by property owners.

FAQ

Q: What is the Form ARB-M1?
A: Form ARB-M1 is the application/appeal form used for matters related to apportionment under the Municipal Act in Ontario, Canada.

Q: What is the Municipal Act?
A: The Municipal Act is legislation in Ontario, Canada, which governs municipal governments and their activities.

Q: What is apportionment under the Municipal Act?
A: Apportionment under the Municipal Act refers to the allocation of costs or expenses among property owners.

Q: Who can use Form ARB-M1?
A: Form ARB-M1 can be used by individuals or entities who wish to apply for or appeal matters related to apportionment under the Municipal Act.

Q: What information is required in Form ARB-M1?
A: Form ARB-M1 requires information such as the property details, description of the apportionment matter, and grounds for the appeal.

Q: What is the process after submitting Form ARB-M1?
A: After submitting Form ARB-M1, the Assessment Review Board will review the application/appeal and schedule a hearing if necessary.

Q: Can I get assistance in filling out Form ARB-M1?
A: Yes, you can seek assistance from legal professionals or contact the Assessment Review Board for guidance in filling out Form ARB-M1.

Q: How long does the process take after submitting Form ARB-M1?
A: The timeframe for the process after submitting Form ARB-M1 may vary depending on the complexity of the matter and the workload of the Assessment Review Board.

ADVERTISEMENT

Download Form ARB-M1 Municipal Act Application / Appeal - Apportionment - Ontario, Canada

4.4 of 5 (22 votes)
  • Form ARB-M1 Municipal Act Application/Appeal - Apportionment - Ontario, Canada

    1

  • Form ARB-M1 Municipal Act Application/Appeal - Apportionment - Ontario, Canada, Page 2

    2

  • Form ARB-M1 Municipal Act Application/Appeal - Apportionment - Ontario, Canada, Page 3

    3

  • Form ARB-M1 Municipal Act Application/Appeal - Apportionment - Ontario, Canada, Page 4

    4

  • Form ARB-M1 Municipal Act Application/Appeal - Apportionment - Ontario, Canada, Page 5

    5

  • Form ARB-M1 Municipal Act Application/Appeal - Apportionment - Ontario, Canada, Page 6

    6

  • Form ARB-M1 Municipal Act Application/Appeal - Apportionment - Ontario, Canada, Page 7

    7

  • Form ARB-M1 Municipal Act Application/Appeal - Apportionment - Ontario, Canada, Page 8

    8

  • Form ARB-M1 Municipal Act Application / Appeal - Apportionment - Ontario, Canada, Page 1
  • Form ARB-M1 Municipal Act Application / Appeal - Apportionment - Ontario, Canada, Page 2
  • Form ARB-M1 Municipal Act Application / Appeal - Apportionment - Ontario, Canada, Page 3
  • Form ARB-M1 Municipal Act Application / Appeal - Apportionment - Ontario, Canada, Page 4
  • Form ARB-M1 Municipal Act Application / Appeal - Apportionment - Ontario, Canada, Page 5
  • Form ARB-M1 Municipal Act Application / Appeal - Apportionment - Ontario, Canada, Page 6
  • Form ARB-M1 Municipal Act Application / Appeal - Apportionment - Ontario, Canada, Page 7
  • Form ARB-M1 Municipal Act Application / Appeal - Apportionment - Ontario, Canada, Page 8
Prev 1 2 3 4 5 ... 8 Next
ADVERTISEMENT