Form ARB-COTA5 City of Toronto Act Application / Appeal - Cancel, Reduce, Refund - Ontario, Canada

Notification Icon This version of the form is not currently in use and is provided for reference only. Download this version of Form ARB-COTA5 for the current year.

Form ARB-COTA5 City of Toronto Act Application / Appeal - Cancel, Reduce, Refund - Ontario, Canada

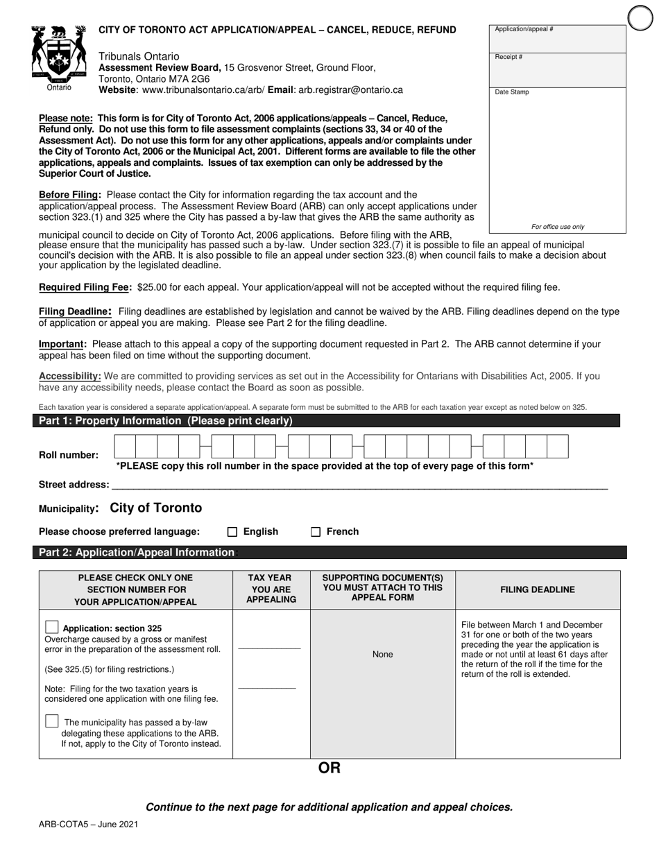
Form ARB-COTA5 is a City of Toronto Act Application/Appeal form used in Ontario, Canada. It is used for requesting a cancellation, reduction, or refund for certain matters related to property taxes or assessments in the City of Toronto.

The form ARB-COTA5 City of Toronto Act Application/Appeal is filed by individuals or businesses who would like to cancel, reduce, or seek a refund for a specific matter related to the City of Toronto in the province of Ontario, Canada.

FAQ

Q: What is the ARB-COTA5 City of Toronto Act?
A: The ARB-COTA5 City of Toronto Act is an application or appeal process for property owners in the City of Toronto, Ontario, Canada.

Q: What is the purpose of the ARB-COTA5 City of Toronto Act?
A: The purpose of the ARB-COTA5 City of Toronto Act is to address property assessment issues and potential tax adjustments.

Q: Who can apply or appeal through the ARB-COTA5 City of Toronto Act?
A: Property owners in the City of Toronto, Ontario, Canada can apply or appeal through the ARB-COTA5 City of Toronto Act.

Q: What can be canceled, reduced, or refunded through the ARB-COTA5 City of Toronto Act?
A: Through the ARB-COTA5 City of Toronto Act, property owners can seek to cancel, reduce, or obtain a refund for their property assessment or tax.

Q: Is the ARB-COTA5 City of Toronto Act only applicable in Toronto?
A: Yes, the ARB-COTA5 City of Toronto Act is specifically applicable to properties within the City of Toronto in Ontario, Canada.

ADVERTISEMENT

Download Form ARB-COTA5 City of Toronto Act Application / Appeal - Cancel, Reduce, Refund - Ontario, Canada

4.6 of 5 (32 votes)
  • Form ARB-COTA5 City of Toronto Act Application/Appeal - Cancel, Reduce, Refund - Ontario, Canada

    1

  • Form ARB-COTA5 City of Toronto Act Application/Appeal - Cancel, Reduce, Refund - Ontario, Canada, Page 2

    2

  • Form ARB-COTA5 City of Toronto Act Application/Appeal - Cancel, Reduce, Refund - Ontario, Canada, Page 3

    3

  • Form ARB-COTA5 City of Toronto Act Application/Appeal - Cancel, Reduce, Refund - Ontario, Canada, Page 4

    4

  • Form ARB-COTA5 City of Toronto Act Application/Appeal - Cancel, Reduce, Refund - Ontario, Canada, Page 5

    5

  • Form ARB-COTA5 City of Toronto Act Application/Appeal - Cancel, Reduce, Refund - Ontario, Canada, Page 6

    6

  • Form ARB-COTA5 City of Toronto Act Application/Appeal - Cancel, Reduce, Refund - Ontario, Canada, Page 7

    7

  • Form ARB-COTA5 City of Toronto Act Application / Appeal - Cancel, Reduce, Refund - Ontario, Canada, Page 1
  • Form ARB-COTA5 City of Toronto Act Application / Appeal - Cancel, Reduce, Refund - Ontario, Canada, Page 2
  • Form ARB-COTA5 City of Toronto Act Application / Appeal - Cancel, Reduce, Refund - Ontario, Canada, Page 3
  • Form ARB-COTA5 City of Toronto Act Application / Appeal - Cancel, Reduce, Refund - Ontario, Canada, Page 4
  • Form ARB-COTA5 City of Toronto Act Application / Appeal - Cancel, Reduce, Refund - Ontario, Canada, Page 5
  • Form ARB-COTA5 City of Toronto Act Application / Appeal - Cancel, Reduce, Refund - Ontario, Canada, Page 6
  • Form ARB-COTA5 City of Toronto Act Application / Appeal - Cancel, Reduce, Refund - Ontario, Canada, Page 7
Prev 1 2 3 4 5 ... 7 Next
ADVERTISEMENT