Form ARB-COTA6 City of Toronto Act, 2006 Application / Appeal - Limits on Traditional Municipal Taxes - Ontario, Canada

Notification Icon This version of the form is not currently in use and is provided for reference only. Download this version of Form ARB-COTA6 for the current year.

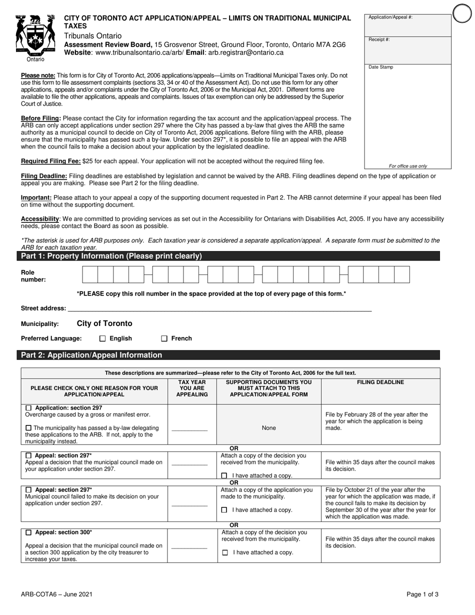
Form ARB-COTA6 City of Toronto Act, 2006 Application / Appeal - Limits on Traditional Municipal Taxes - Ontario, Canada

Form ARB-COTA6 is an application or appeal form used under the City of Toronto Act, 2006 in Ontario, Canada. It is specifically related to seeking limits on traditional municipal taxes in the City of Toronto.

The Form ARB-COTA6 for the City of Toronto Act, 2006 Application/Appeal is typically filed by taxpayers or property owners in Ontario, Canada.

FAQ

Q: What is ARB-COTA6?
A: ARB-COTA6 refers to the City of Toronto Act, 2006 Application/Appeal regarding limits on traditional municipal taxes.

Q: What does ARB-COTA6 cover?
A: ARB-COTA6 covers the limits on traditional municipal taxes in the City of Toronto.

Q: What is the purpose of ARB-COTA6?
A: The purpose of ARB-COTA6 is to regulate and establish limits on traditional municipal taxes in the City of Toronto.

Q: Who is affected by ARB-COTA6?
A: ARB-COTA6 affects residents, property owners, and businesses in the City of Toronto who are subject to traditional municipal taxes.

ADVERTISEMENT

Download Form ARB-COTA6 City of Toronto Act, 2006 Application / Appeal - Limits on Traditional Municipal Taxes - Ontario, Canada

4.7 of 5 (18 votes)
  • Form ARB-COTA6 City of Toronto Act, 2006 Application/Appeal - Limits on Traditional Municipal Taxes - Ontario, Canada

    1

  • Form ARB-COTA6 City of Toronto Act, 2006 Application/Appeal - Limits on Traditional Municipal Taxes - Ontario, Canada, Page 2

    2

  • Form ARB-COTA6 City of Toronto Act, 2006 Application/Appeal - Limits on Traditional Municipal Taxes - Ontario, Canada, Page 3

    3

  • Form ARB-COTA6 City of Toronto Act, 2006 Application/Appeal - Limits on Traditional Municipal Taxes - Ontario, Canada, Page 4

    4

  • Form ARB-COTA6 City of Toronto Act, 2006 Application/Appeal - Limits on Traditional Municipal Taxes - Ontario, Canada, Page 5

    5

  • Form ARB-COTA6 City of Toronto Act, 2006 Application/Appeal - Limits on Traditional Municipal Taxes - Ontario, Canada, Page 6

    6

  • Form ARB-COTA6 City of Toronto Act, 2006 Application / Appeal - Limits on Traditional Municipal Taxes - Ontario, Canada, Page 1
  • Form ARB-COTA6 City of Toronto Act, 2006 Application / Appeal - Limits on Traditional Municipal Taxes - Ontario, Canada, Page 2
  • Form ARB-COTA6 City of Toronto Act, 2006 Application / Appeal - Limits on Traditional Municipal Taxes - Ontario, Canada, Page 3
  • Form ARB-COTA6 City of Toronto Act, 2006 Application / Appeal - Limits on Traditional Municipal Taxes - Ontario, Canada, Page 4
  • Form ARB-COTA6 City of Toronto Act, 2006 Application / Appeal - Limits on Traditional Municipal Taxes - Ontario, Canada, Page 5
  • Form ARB-COTA6 City of Toronto Act, 2006 Application / Appeal - Limits on Traditional Municipal Taxes - Ontario, Canada, Page 6
Prev 1 2 3 4 5 6 Next
ADVERTISEMENT