Form PR6287 Private Road Easement Letter and Application - Michigan

Form PR6287 Private Road Easement Letter and Application - Michigan

What Is Form PR6287?

This is a legal form that was released by the Michigan Department of Natural Resources - a government authority operating within Michigan. As of today, no separate filing guidelines for the form are provided by the issuing department.

FAQ

Q: What is the PR6287 Private Road Easement Letter and Application?
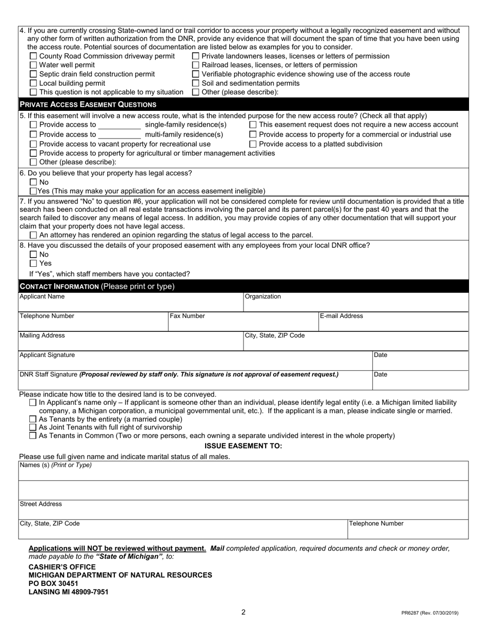
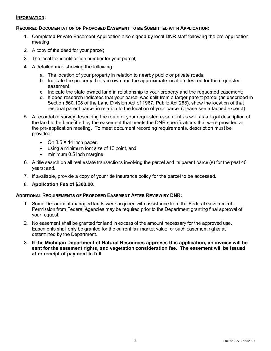
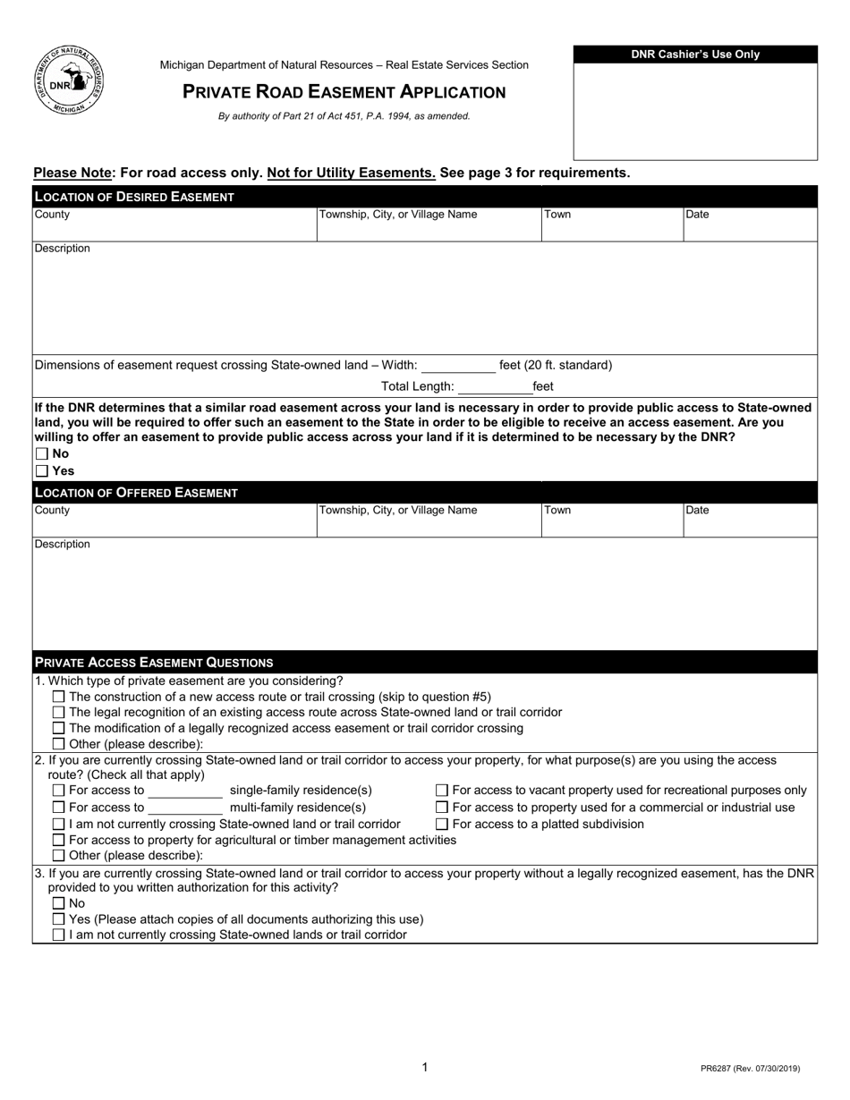
A: The PR6287 Private Road Easement Letter and Application is a legal document used in Michigan to request permission for a private road easement.

Q: What is a private road easement?
A: A private road easement grants a person or entity the right to use a specified portion of someone else's property for accessing their own property.

Q: Why would I need a private road easement?
A: You may need a private road easement if you need to cross someone else's property to access your property and there is no public road available.

Q: How do I use the PR6287 Private Road Easement Letter and Application?
A: You need to fill out the form with the necessary information and submit it to the appropriate authorities.

Q: Are there any fees associated with the PR6287 Private Road Easement Letter and Application?
A: There may be fees associated with the application process. You should check with the Michigan Department of Transportation or consult legal professionals for specific information.

ADVERTISEMENT

Form Details:

  • Released on July 30, 2019;
  • The latest edition provided by the Michigan Department of Natural Resources;
  • Easy to use and ready to print;
  • Quick to customize;
  • Compatible with most PDF-viewing applications;
  • Fill out the form in our online filing application.

Download a fillable version of Form PR6287 by clicking the link below or browse more documents and templates provided by the Michigan Department of Natural Resources.

Download Form PR6287 Private Road Easement Letter and Application - Michigan

4.3 of 5 (10 votes)
  • Form PR6287 Private Road Easement Letter and Application - Michigan

    1

  • Form PR6287 Private Road Easement Letter and Application - Michigan, Page 2

    2

  • Form PR6287 Private Road Easement Letter and Application - Michigan, Page 3

    3

  • Form PR6287 Private Road Easement Letter and Application - Michigan, Page 4

    4

  • Form PR6287 Private Road Easement Letter and Application - Michigan, Page 5

    5

  • Form PR6287 Private Road Easement Letter and Application - Michigan, Page 6

    6

  • Form PR6287 Private Road Easement Letter and Application - Michigan, Page 7

    7

  • Form PR6287 Private Road Easement Letter and Application - Michigan, Page 8

    8

  • Form PR6287 Private Road Easement Letter and Application - Michigan, Page 9

    9

  • Form PR6287 Private Road Easement Letter and Application - Michigan, Page 10

    10

  • Form PR6287 Private Road Easement Letter and Application - Michigan, Page 11

    11

  • Form PR6287 Private Road Easement Letter and Application - Michigan, Page 12

    12

  • Form PR6287 Private Road Easement Letter and Application - Michigan, Page 1
  • Form PR6287 Private Road Easement Letter and Application - Michigan, Page 2
  • Form PR6287 Private Road Easement Letter and Application - Michigan, Page 3
  • Form PR6287 Private Road Easement Letter and Application - Michigan, Page 4
  • Form PR6287 Private Road Easement Letter and Application - Michigan, Page 5
  • Form PR6287 Private Road Easement Letter and Application - Michigan, Page 6
  • Form PR6287 Private Road Easement Letter and Application - Michigan, Page 7
  • Form PR6287 Private Road Easement Letter and Application - Michigan, Page 8
  • Form PR6287 Private Road Easement Letter and Application - Michigan, Page 9
  • Form PR6287 Private Road Easement Letter and Application - Michigan, Page 10
  • Form PR6287 Private Road Easement Letter and Application - Michigan, Page 11
  • Form PR6287 Private Road Easement Letter and Application - Michigan, Page 12
Prev 1 2 3 4 5 ... 12 Next
ADVERTISEMENT