Formulario RD3550-21 Certificacion De Renovacion Del Pago De Subsidios (Spanish)

Formulario RD3550-21 Certificacion De Renovacion Del Pago De Subsidios (Spanish)

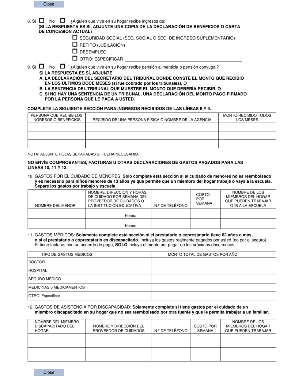
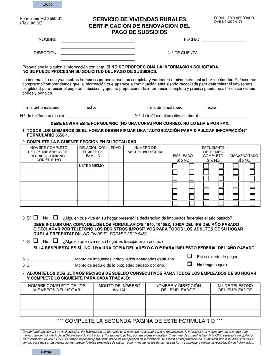
Qué es Formulario RD3550-21?

Este es un formulario legal que fue publicado por el U.S. Department of Agriculture - Rural Development, el 1 de marzo de 2006 y usado en todo el país. A partir de hoy, el departamento emisor no proporciona en separado pautas de presentación para el formulario.

Detalles del formulario:

  • Publicado el 1 de marzo de 2006;
  • La última edición disponible publicada por el U.S. Department of Agriculture - Rural Development;
  • Fácil de usar y lista para imprimir;
  • Es suyo para completar y guardar en sus registros;
  • Compatible con la mayoría de las aplicaciones para visualizar PDF;
  • Complete este formulario en línea.

Descargue una versión del Formulario RD3550-21 haciendo clic en el enlace debajo o busque más documentos y plantillas proporcionados por el U.S. Department of Agriculture - Rural Development.

FAQ

Q: What is the Form RD3550-21?
A: The Form RD3550-21 is a certification form for the renewal of subsidy payments.

Q: What is the purpose of the Form RD3550-21?
A: The purpose of the Form RD3550-21 is to certify the renewal of subsidy payments.

Q: Who should fill out the Form RD3550-21?
A: The Form RD3550-21 should be filled out by individuals or entities receiving subsidy payments.

Q: What information is required on the Form RD3550-21?
A: The Form RD3550-21 requires information regarding the recipient's identity and the details of the subsidy payment.

Q: Is the Form RD3550-21 available in Spanish?
A: Yes, the Form RD3550-21 is available in Spanish as 'Certificación de Renovación del Pago de Subsidios (Formulario RD3550-21)'.

ADVERTISEMENT

Download Formulario RD3550-21 Certificacion De Renovacion Del Pago De Subsidios (Spanish)

4.4 of 5 (12 votes)
  • Formulario RD3550-21 Certificacion De Renovacion Del Pago De Subsidios (Spanish)

    1

  • Formulario RD3550-21 Certificacion De Renovacion Del Pago De Subsidios (Spanish), Page 2

    2

  • Formulario RD3550-21 Certificacion De Renovacion Del Pago De Subsidios (Spanish), Page 3

    3

  • Formulario RD3550-21 Certificacion De Renovacion Del Pago De Subsidios (Spanish), Page 1
  • Formulario RD3550-21 Certificacion De Renovacion Del Pago De Subsidios (Spanish), Page 2
  • Formulario RD3550-21 Certificacion De Renovacion Del Pago De Subsidios (Spanish), Page 3
Prev 1 2 3 Next
ADVERTISEMENT

Related Documents