Form EQP1719 Public Swimming Pool Monthly Operation Report - Michigan

Notification Icon This version of the form is not currently in use and is provided for reference only. Download this version of Form EQP1719 for the current year.

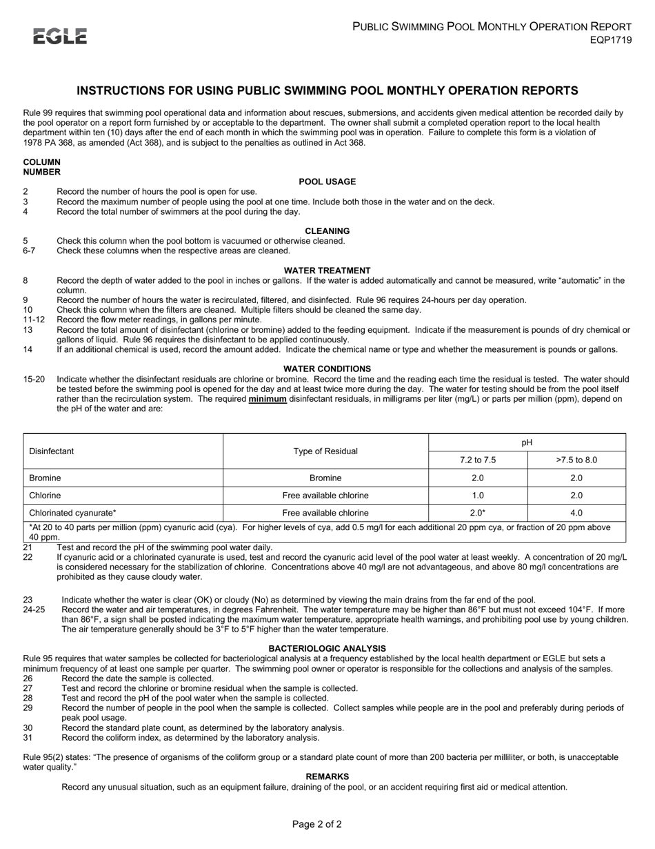
Form EQP1719 Public Swimming Pool Monthly Operation Report - Michigan

What Is Form EQP1719?

This is a legal form that was released by the Michigan Department of Environment, Great Lakes, and Energy - a government authority operating within Michigan. As of today, no separate filing guidelines for the form are provided by the issuing department.

FAQ

Q: What is Form EQP1719?
A: Form EQP1719 is the Public Swimming PoolMonthly Operation Report in Michigan.

Q: What information does Form EQP1719 require?
A: Form EQP1719 requires information about the monthly operation of a public swimming pool in Michigan.

Q: Who needs to fill out Form EQP1719?
A: Owners or operators of public swimming pools in Michigan need to fill out Form EQP1719.

Q: Why is Form EQP1719 necessary?
A: Form EQP1719 is necessary to ensure the safe and proper operation of public swimming pools in Michigan.

Q: When is Form EQP1719 due?
A: Form EQP1719 is typically due on a monthly basis, with specific due dates determined by the Michigan Department of Health and Human Services.

Q: How do I submit Form EQP1719?
A: Form EQP1719 can be submitted electronically or by mail to the Michigan Department of Health and Human Services.

ADVERTISEMENT

Form Details:

  • Released on September 1, 2020;
  • The latest edition provided by the Michigan Department of Environment, Great Lakes, and Energy;
  • Easy to use and ready to print;
  • Quick to customize;
  • Compatible with most PDF-viewing applications;
  • Fill out the form in our online filing application.

Download a printable version of Form EQP1719 by clicking the link below or browse more documents and templates provided by the Michigan Department of Environment, Great Lakes, and Energy.

Download Form EQP1719 Public Swimming Pool Monthly Operation Report - Michigan

4.7 of 5 (12 votes)
  • Form EQP1719 Public Swimming Pool Monthly Operation Report - Michigan

    1

  • Form EQP1719 Public Swimming Pool Monthly Operation Report - Michigan, Page 2

    2

  • Form EQP1719 Public Swimming Pool Monthly Operation Report - Michigan, Page 1
  • Form EQP1719 Public Swimming Pool Monthly Operation Report - Michigan, Page 2
Prev 1 2 Next
ADVERTISEMENT