DOT Form 350-042 Hma Mix Design Submittal - Washington

Notification Icon This version of the form is not currently in use and is provided for reference only. Download this version of DOT Form 350-042 for the current year.

DOT Form 350-042 Hma Mix Design Submittal - Washington

What Is DOT Form 350-042?

This is a legal form that was released by the Washington State Department of Transportation - a government authority operating within Washington. As of today, no separate filing guidelines for the form are provided by the issuing department.

FAQ

Q: What is DOT Form 350-042?
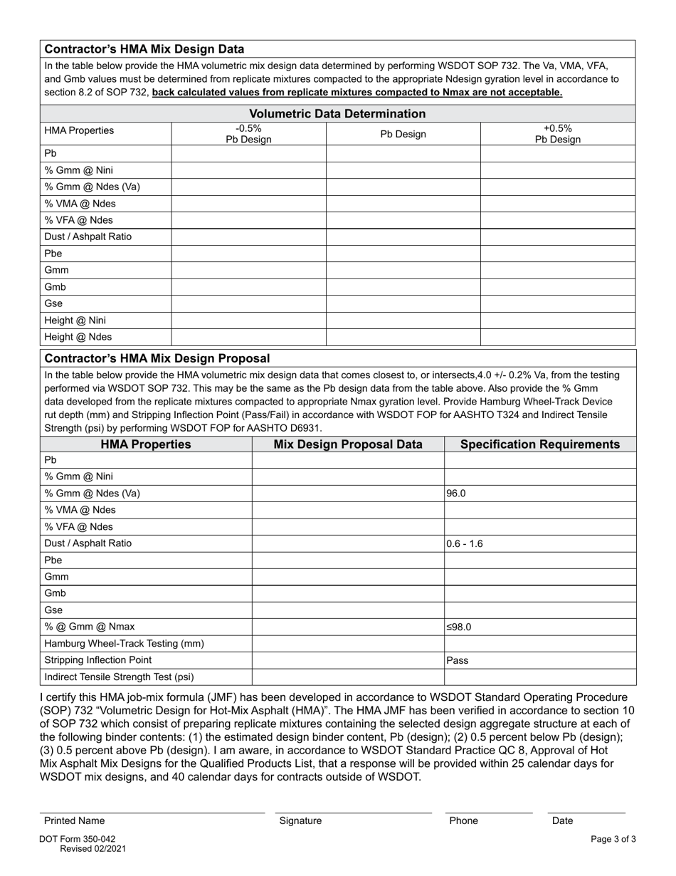
A: DOT Form 350-042 is a HMA (Hot Mix Asphalt) Mix Design Submittal form.

Q: What is HMA?
A: HMA stands for Hot Mix Asphalt, which is a mixture of asphalt cement and aggregates that is used for road construction and maintenance.

Q: What is a Mix Design Submittal?
A: A Mix Design Submittal is a process of submitting the proposed mix design for HMA to the appropriate authority, in this case, the Washington Department of Transportation (DOT).

Q: Who needs to submit DOT Form 350-042?
A: Contractors or individuals involved in road construction or maintenance projects in Washington State that require HMA mix design approval need to submit DOT Form 350-042.

Q: What information is required in DOT Form 350-042?
A: DOT Form 350-042 requires information such as project details, mix design details, aggregate and asphalt binder details, test results, and certifications.

Q: Is DOT Form 350-042 specific to Washington State?
A: Yes, DOT Form 350-042 is specific to Washington State and is used for HMA Mix Design Submittals in that region.

Q: Can DOT Form 350-042 be used for other states?
A: No, DOT Form 350-042 is specific to Washington State and may not be applicable or accepted in other states. It is important to follow the specific guidelines and requirements of each state.

ADVERTISEMENT

Form Details:

  • Released on February 1, 2021;
  • The latest edition provided by the Washington State Department of Transportation;
  • Easy to use and ready to print;
  • Quick to customize;
  • Compatible with most PDF-viewing applications;
  • Fill out the form in our online filing application.

Download a fillable version of DOT Form 350-042 by clicking the link below or browse more documents and templates provided by the Washington State Department of Transportation.

Download DOT Form 350-042 Hma Mix Design Submittal - Washington

4.4 of 5 (22 votes)
  • DOT Form 350-042 Hma Mix Design Submittal - Washington

    1

  • DOT Form 350-042 Hma Mix Design Submittal - Washington, Page 2

    2

  • DOT Form 350-042 Hma Mix Design Submittal - Washington, Page 3

    3

  • DOT Form 350-042 Hma Mix Design Submittal - Washington, Page 1
  • DOT Form 350-042 Hma Mix Design Submittal - Washington, Page 2
  • DOT Form 350-042 Hma Mix Design Submittal - Washington, Page 3
Prev 1 2 3 Next
ADVERTISEMENT