DOT Form 420-010 Standard Questionnaire and Financial Statement - Washington

DOT Form 420-010 Standard Questionnaire and Financial Statement - Washington

What Is DOT Form 420-010?

This is a legal form that was released by the Washington State Department of Transportation - a government authority operating within Washington. As of today, no separate filing guidelines for the form are provided by the issuing department.

FAQ

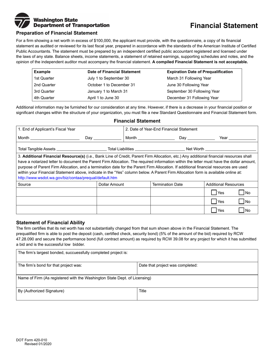
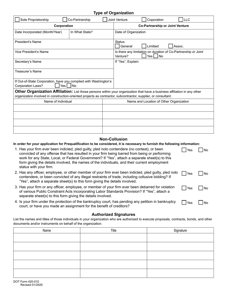
Q: What is DOT Form 420-010?
A: DOT Form 420-010 is a Standard Questionnaire and Financial Statement.

Q: What is the purpose of DOT Form 420-010?
A: The purpose of DOT Form 420-010 is to gather information about an individual or business's financial status.

Q: Who is required to fill out DOT Form 420-010?
A: Individuals or businesses in Washington may be required to fill out DOT Form 420-010.

Q: What information is required in DOT Form 420-010?
A: DOT Form 420-010 requires information about income, assets, liabilities, and other financial details.

ADVERTISEMENT

Form Details:

  • Released on January 1, 2020;
  • The latest edition provided by the Washington State Department of Transportation;
  • Easy to use and ready to print;
  • Quick to customize;
  • Compatible with most PDF-viewing applications;
  • Fill out the form in our online filing application.

Download a fillable version of DOT Form 420-010 by clicking the link below or browse more documents and templates provided by the Washington State Department of Transportation.

Download DOT Form 420-010 Standard Questionnaire and Financial Statement - Washington

4.6 of 5 (25 votes)
  • DOT Form 420-010 Standard Questionnaire and Financial Statement - Washington

    1

  • DOT Form 420-010 Standard Questionnaire and Financial Statement - Washington, Page 2

    2

  • DOT Form 420-010 Standard Questionnaire and Financial Statement - Washington, Page 3

    3

  • DOT Form 420-010 Standard Questionnaire and Financial Statement - Washington, Page 4

    4

  • DOT Form 420-010 Standard Questionnaire and Financial Statement - Washington, Page 5

    5

  • DOT Form 420-010 Standard Questionnaire and Financial Statement - Washington, Page 6

    6

  • DOT Form 420-010 Standard Questionnaire and Financial Statement - Washington, Page 7

    7

  • DOT Form 420-010 Standard Questionnaire and Financial Statement - Washington, Page 8

    8

  • DOT Form 420-010 Standard Questionnaire and Financial Statement - Washington, Page 9

    9

  • DOT Form 420-010 Standard Questionnaire and Financial Statement - Washington, Page 10

    10

  • DOT Form 420-010 Standard Questionnaire and Financial Statement - Washington, Page 11

    11

  • DOT Form 420-010 Standard Questionnaire and Financial Statement - Washington, Page 12

    12

  • DOT Form 420-010 Standard Questionnaire and Financial Statement - Washington, Page 1
  • DOT Form 420-010 Standard Questionnaire and Financial Statement - Washington, Page 2
  • DOT Form 420-010 Standard Questionnaire and Financial Statement - Washington, Page 3
  • DOT Form 420-010 Standard Questionnaire and Financial Statement - Washington, Page 4
  • DOT Form 420-010 Standard Questionnaire and Financial Statement - Washington, Page 5
  • DOT Form 420-010 Standard Questionnaire and Financial Statement - Washington, Page 6
  • DOT Form 420-010 Standard Questionnaire and Financial Statement - Washington, Page 7
  • DOT Form 420-010 Standard Questionnaire and Financial Statement - Washington, Page 8
  • DOT Form 420-010 Standard Questionnaire and Financial Statement - Washington, Page 9
  • DOT Form 420-010 Standard Questionnaire and Financial Statement - Washington, Page 10
  • DOT Form 420-010 Standard Questionnaire and Financial Statement - Washington, Page 11
  • DOT Form 420-010 Standard Questionnaire and Financial Statement - Washington, Page 12
Prev 1 2 3 4 5 ... 12 Next
ADVERTISEMENT