DOT Form 420-020 Small Works Questionnaire - Washington

DOT Form 420-020 Small Works Questionnaire - Washington

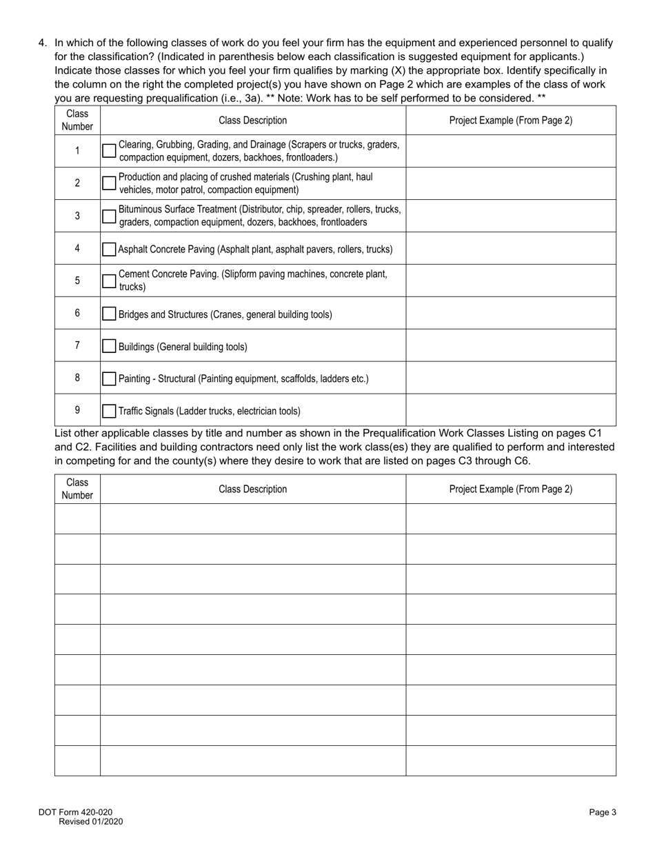
What Is DOT Form 420-020?

This is a legal form that was released by the Washington State Department of Transportation - a government authority operating within Washington. As of today, no separate filing guidelines for the form are provided by the issuing department.

FAQ

Q: What is DOT Form 420-020?
A: DOT Form 420-020 is the Small Works Questionnaire used in Washington state.

Q: What is the purpose of DOT Form 420-020?
A: The purpose of DOT Form 420-020 is to collect information about a contractor's qualifications for small works contracts in Washington state.

Q: Who needs to fill out DOT Form 420-020?
A: Contractors who want to bid on small works contracts in Washington state need to fill out DOT Form 420-020.

Q: Is DOT Form 420-020 specific to Washington state?
A: Yes, DOT Form 420-020 is specifically used in Washington state.

Q: What information is required in DOT Form 420-020?
A: DOT Form 420-020 requires contractors to provide information about their company, financial stability, experience, and references.

Q: Is DOT Form 420-020 mandatory for bidding on small works contracts?
A: Yes, DOT Form 420-020 is mandatory for contractors who want to bid on small works contracts in Washington state.

ADVERTISEMENT

Form Details:

  • Released on January 1, 2020;
  • The latest edition provided by the Washington State Department of Transportation;
  • Easy to use and ready to print;
  • Quick to customize;
  • Compatible with most PDF-viewing applications;
  • Fill out the form in our online filing application.

Download a fillable version of DOT Form 420-020 by clicking the link below or browse more documents and templates provided by the Washington State Department of Transportation.

Download DOT Form 420-020 Small Works Questionnaire - Washington

4.3 of 5 (17 votes)
  • DOT Form 420-020 Small Works Questionnaire - Washington

    1

  • DOT Form 420-020 Small Works Questionnaire - Washington, Page 2

    2

  • DOT Form 420-020 Small Works Questionnaire - Washington, Page 3

    3

  • DOT Form 420-020 Small Works Questionnaire - Washington, Page 4

    4

  • DOT Form 420-020 Small Works Questionnaire - Washington, Page 5

    5

  • DOT Form 420-020 Small Works Questionnaire - Washington, Page 6

    6

  • DOT Form 420-020 Small Works Questionnaire - Washington, Page 7

    7

  • DOT Form 420-020 Small Works Questionnaire - Washington, Page 8

    8

  • DOT Form 420-020 Small Works Questionnaire - Washington, Page 1
  • DOT Form 420-020 Small Works Questionnaire - Washington, Page 2
  • DOT Form 420-020 Small Works Questionnaire - Washington, Page 3
  • DOT Form 420-020 Small Works Questionnaire - Washington, Page 4
  • DOT Form 420-020 Small Works Questionnaire - Washington, Page 5
  • DOT Form 420-020 Small Works Questionnaire - Washington, Page 6
  • DOT Form 420-020 Small Works Questionnaire - Washington, Page 7
  • DOT Form 420-020 Small Works Questionnaire - Washington, Page 8
Prev 1 2 3 4 5 ... 8 Next
ADVERTISEMENT

Related Documents