Contract Compliance Review Checklist - Georgia (United States)

Contract Compliance Review Checklist - Georgia (United States)

Contract Compliance Review Checklist is a legal document that was released by the Georgia Department of Transportation - a government authority operating within Georgia (United States).

FAQ

Q: What is a Contract Compliance Review?
A: A Contract Compliance Review is a process conducted to ensure that contractors are meeting the terms and conditions of their contracts.

Q: Why is a Contract Compliance Review important?
A: A Contract Compliance Review is important to ensure that taxpayers' money is being used efficiently and effectively, and that contractors are fulfilling their contractual obligations.

Q: Who conducts Contract Compliance Reviews in Georgia?
A: In Georgia, Contract Compliance Reviews are typically conducted by the Georgia Department of Audits and Accounts.

Q: What is included in a Contract Compliance Review Checklist?
A: A Contract Compliance Review Checklist typically includes a review of contract documents, financial records, performance measures, and other relevant documentation.

Q: What are some common areas reviewed in a Contract Compliance Review?
A: Some common areas reviewed in a Contract Compliance Review include contract deliverables, payment terms, subcontractor utilization, compliance with laws and regulations, and financial management.

Q: What happens if a contractor fails a Contract Compliance Review?
A: If a contractor fails a Contract Compliance Review, they may face penalties such as contract termination, financial penalties, or being barred from future procurement opportunities.

Q: Can contractors appeal the results of a Contract Compliance Review?
A: Yes, contractors have the right to appeal the results of a Contract Compliance Review if they believe there were errors or unfair assessments made.

ADVERTISEMENT

Form Details:

  • Released on February 1, 2010;
  • The latest edition currently provided by the Georgia Department of Transportation;
  • Ready to use and print;
  • Easy to customize;
  • Compatible with most PDF-viewing applications;
  • Fill out the form in our online filing application.

Download a printable version of the form by clicking the link below or browse more documents and templates provided by the Georgia Department of Transportation.

Download Contract Compliance Review Checklist - Georgia (United States)

4.8 of 5 (18 votes)
  • Contract Compliance Review Checklist - Georgia (United States)

    1

  • Contract Compliance Review Checklist - Georgia (United States), Page 2

    2

  • Contract Compliance Review Checklist - Georgia (United States), Page 3

    3

  • Contract Compliance Review Checklist - Georgia (United States), Page 4

    4

  • Contract Compliance Review Checklist - Georgia (United States), Page 5

    5

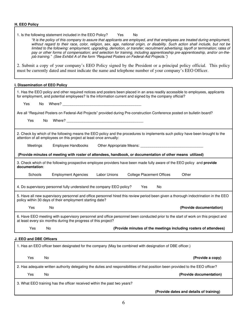
  • Contract Compliance Review Checklist - Georgia (United States), Page 6

    6

  • Contract Compliance Review Checklist - Georgia (United States), Page 7

    7

  • Contract Compliance Review Checklist - Georgia (United States), Page 8

    8

  • Contract Compliance Review Checklist - Georgia (United States), Page 1
  • Contract Compliance Review Checklist - Georgia (United States), Page 2
  • Contract Compliance Review Checklist - Georgia (United States), Page 3
  • Contract Compliance Review Checklist - Georgia (United States), Page 4
  • Contract Compliance Review Checklist - Georgia (United States), Page 5
  • Contract Compliance Review Checklist - Georgia (United States), Page 6
  • Contract Compliance Review Checklist - Georgia (United States), Page 7
  • Contract Compliance Review Checklist - Georgia (United States), Page 8
Prev 1 2 3 4 5 ... 8 Next
ADVERTISEMENT