Commercial Building Finish out / Remodel / Renovation - Application Checklist - City of Dallas, Texas

Commercial Building Finish out / Remodel / Renovation - Application Checklist - City of Dallas, Texas

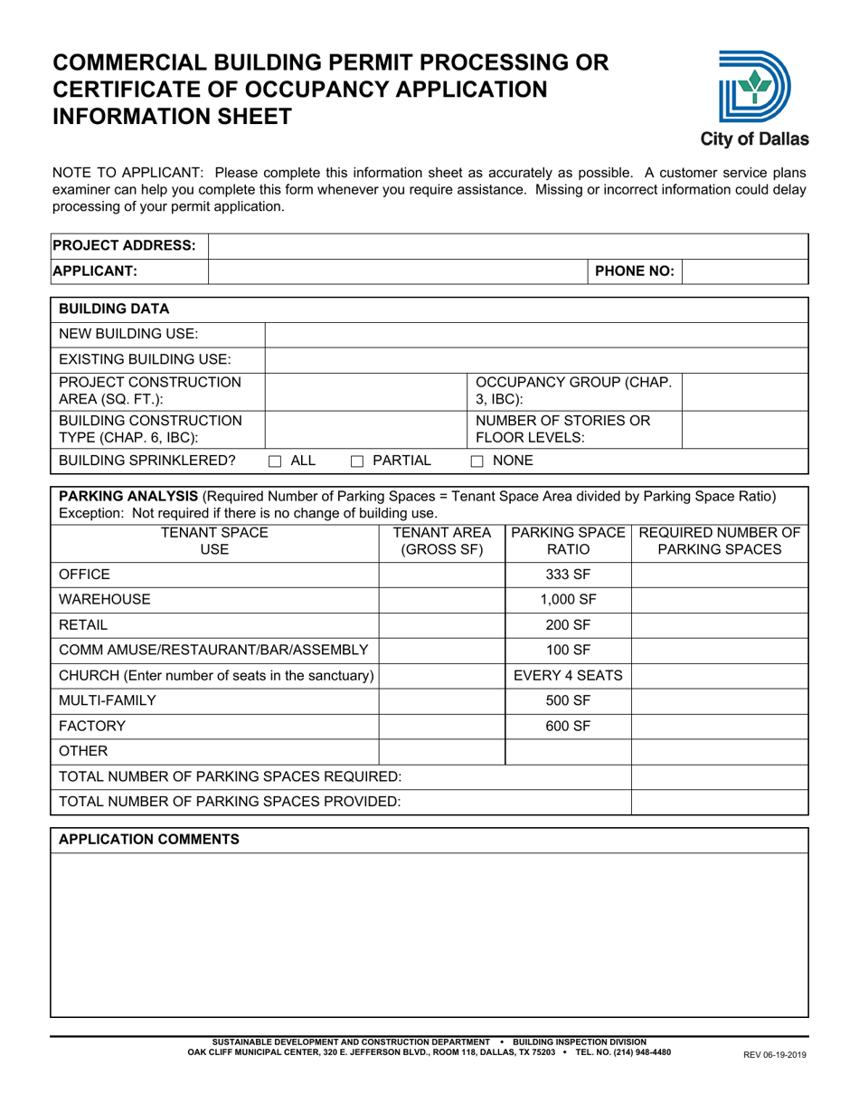
Commercial Building Finish out/Remodel/Renovation - Application Checklist is a legal document that was released by the Development Services Department - City of Dallas, Texas - a government authority operating within Texas. The form may be used strictly within City of Dallas.

FAQ

Q: What is a commercial building finish out?
A: A commercial building finish out refers to the process of completing the interior of a commercial building, including walls, floors, plumbing, electrical work, and more.

Q: What is a commercial building remodel?
A: A commercial building remodel involves making significant changes to the structure and layout of a commercial building.

Q: What is a commercial building renovation?
A: A commercial building renovation involves restoring or improving the existing condition of a commercial building.

Q: What is the application checklist for commercial building finish out/remodel/renovation in the City of Dallas, Texas?
A: The application checklist for commercial building finish out/remodel/renovation in the City of Dallas, Texas may include requirements such as submitting architectural plans, obtaining necessary permits, providing proof of insurance, and complying with building codes and regulations.

Q: Do I need to submit architectural plans for a commercial building finish out/remodel/renovation in the City of Dallas, Texas?
A: Yes, it is likely that you will need to submit architectural plans for a commercial building finish out/remodel/renovation in the City of Dallas, Texas.

Q: What kind of permits are required for a commercial building finish out/remodel/renovation in the City of Dallas, Texas?
A: The specific permits required may vary depending on the scope of the project, but examples include building permits, electrical permits, plumbing permits, and mechanical permits.

Q: Is proof of insurance required for a commercial building finish out/remodel/renovation in the City of Dallas, Texas?
A: Yes, proof of insurance is typically required for a commercial building finish out/remodel/renovation in the City of Dallas, Texas.

Q: What building codes and regulations must be complied with for a commercial building finish out/remodel/renovation in the City of Dallas, Texas?
A: The specific building codes and regulations that must be complied with will depend on the nature of the project, but examples may include fire safety codes, accessibility requirements, and energy efficiency standards.

ADVERTISEMENT

Form Details:

  • Released on June 19, 2019;
  • The latest edition currently provided by the Development Services Department - City of Dallas, Texas;
  • Ready to use and print;
  • Easy to customize;
  • Compatible with most PDF-viewing applications;
  • Fill out the form in our online filing application.

Download a fillable version of the form by clicking the link below or browse more documents and templates provided by the Development Services Department - City of Dallas, Texas.

Download Commercial Building Finish out / Remodel / Renovation - Application Checklist - City of Dallas, Texas

4.6 of 5 (22 votes)
  • Commercial Building Finish out/Remodel/Renovation - Application Checklist - City of Dallas, Texas

    1

  • Commercial Building Finish out/Remodel/Renovation - Application Checklist - City of Dallas, Texas, Page 2

    2

  • Commercial Building Finish out/Remodel/Renovation - Application Checklist - City of Dallas, Texas, Page 3

    3

  • Commercial Building Finish out / Remodel / Renovation - Application Checklist - City of Dallas, Texas, Page 1
  • Commercial Building Finish out / Remodel / Renovation - Application Checklist - City of Dallas, Texas, Page 2
  • Commercial Building Finish out / Remodel / Renovation - Application Checklist - City of Dallas, Texas, Page 3
Prev 1 2 3 Next
ADVERTISEMENT

Related Documents