Final Plat & as-Built Application - City of Johns Creek, Georgia (United States)

Final Plat & as-Built Application - City of Johns Creek, Georgia (United States)

Final Plat & as-Built Application is a legal document that was released by the Community Development Department - City of Johns Creek, Georgia - a government authority operating within Georgia (United States). The form may be used strictly within City of Johns Creek.

FAQ

Q: What is a Final Plat application?
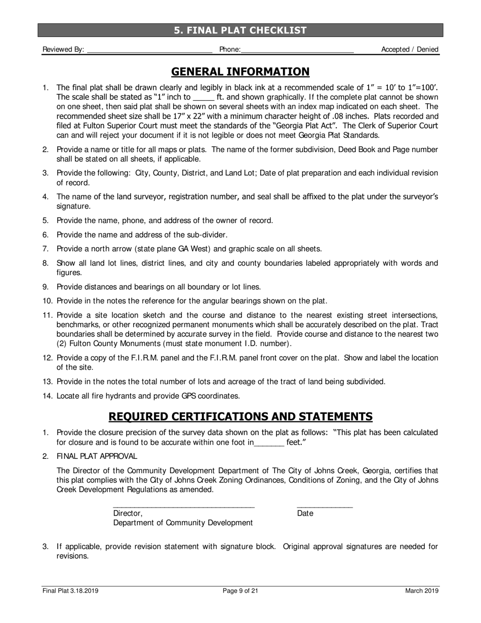
A: A Final Plat application is a formal request to the City of Johns Creek, Georgia for approval of the final plans, layouts, and details of a proposed land development project.

Q: What is an as-Built application?
A: An as-Built application is a formal request to the City of Johns Creek, Georgia for approval of the construction plans and details as they were actually built.

Q: Who can submit a Final Plat application?
A: Any individual or entity who is involved in a land development project in the City of Johns Creek, Georgia can submit a Final Plat application.

Q: Who can submit an as-Built application?
A: Any individual or entity who has completed a construction project in the City of Johns Creek, Georgia can submit an as-Built application.

Q: What is the purpose of a Final Plat application?
A: The purpose of a Final Plat application is to ensure that the proposed land development project complies with all relevant regulations and standards.

Q: What is the purpose of an as-Built application?
A: The purpose of an as-Built application is to verify that the construction project was completed in accordance with the approved plans and permits.

Q: What documents are required for a Final Plat application?
A: The required documents for a Final Plat application may include a survey plat, subdivision plans, engineering plans, and other relevant documentation.

Q: What documents are required for an as-Built application?
A: The required documents for an as-Built application may include construction drawings, building permits, and any changes or modifications made during the construction process.

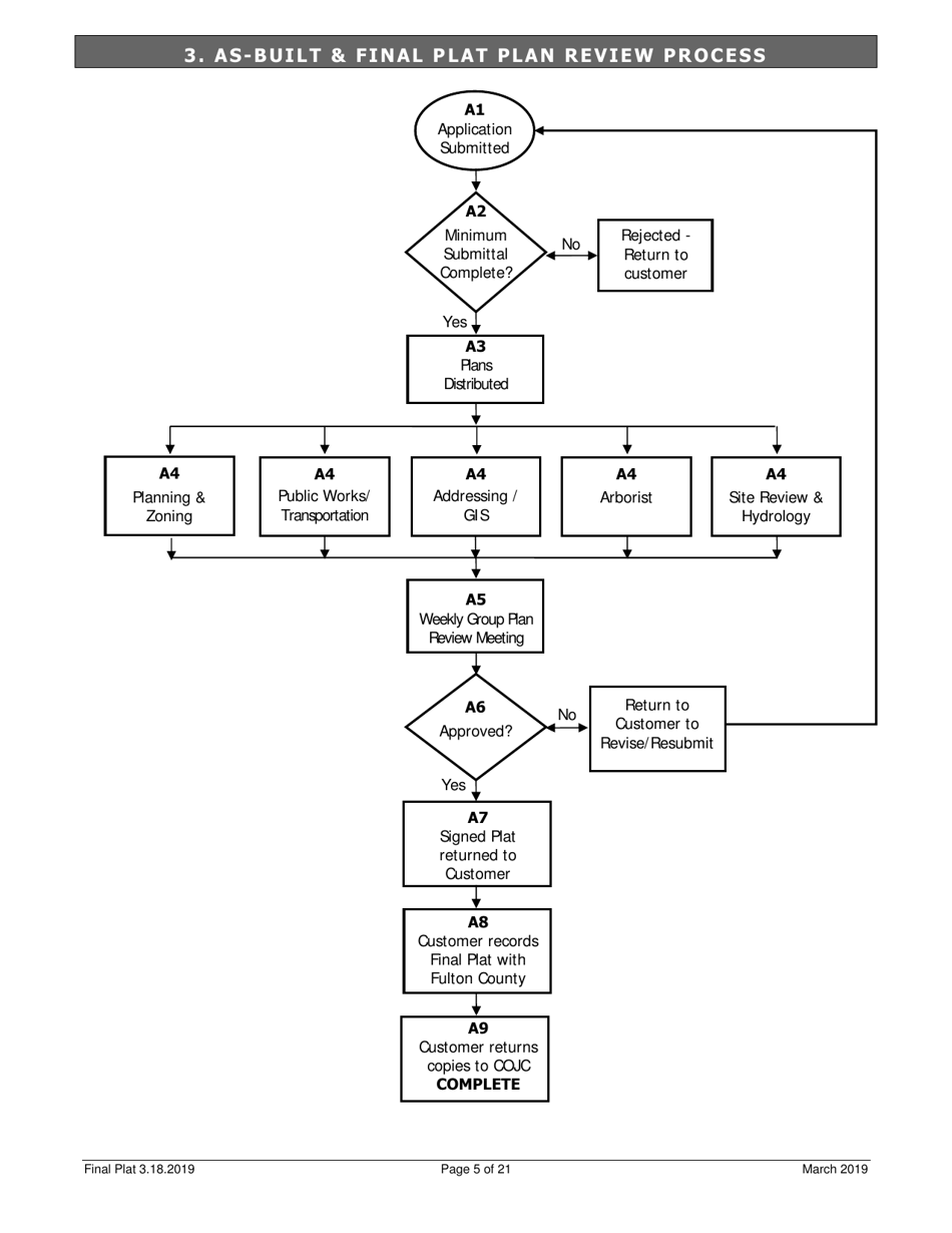
Q: What is the process for reviewing a Final Plat application?
A: The City of Johns Creek, Georgia will review the Final Plat application to ensure compliance with all applicable regulations and standards.

Q: What is the process for reviewing an as-Built application?
A: The City of Johns Creek, Georgia will review the as-Built application to verify that the construction project was completed in accordance with the approved plans and permits.

ADVERTISEMENT

Form Details:

  • Released on March 18, 2019;
  • The latest edition currently provided by the Community Development Department - City of Johns Creek, Georgia;
  • Ready to use and print;
  • Easy to customize;
  • Compatible with most PDF-viewing applications;
  • Fill out the form in our online filing application.

Download a fillable version of the form by clicking the link below or browse more documents and templates provided by the Community Development Department - City of Johns Creek, Georgia.

Download Final Plat & as-Built Application - City of Johns Creek, Georgia (United States)

4.6 of 5 (7 votes)
  • Final Plat & as-Built Application - City of Johns Creek, Georgia (United States)

    1

  • Final Plat & as-Built Application - City of Johns Creek, Georgia (United States), Page 2

    2

  • Final Plat & as-Built Application - City of Johns Creek, Georgia (United States), Page 3

    3

  • Final Plat & as-Built Application - City of Johns Creek, Georgia (United States), Page 4

    4

  • Final Plat & as-Built Application - City of Johns Creek, Georgia (United States), Page 5

    5

  • Final Plat & as-Built Application - City of Johns Creek, Georgia (United States), Page 6

    6

  • Final Plat & as-Built Application - City of Johns Creek, Georgia (United States), Page 7

    7

  • Final Plat & as-Built Application - City of Johns Creek, Georgia (United States), Page 8

    8

  • Final Plat & as-Built Application - City of Johns Creek, Georgia (United States), Page 9

    9

  • Final Plat & as-Built Application - City of Johns Creek, Georgia (United States), Page 10

    10

  • Final Plat & as-Built Application - City of Johns Creek, Georgia (United States), Page 11

    11

  • Final Plat & as-Built Application - City of Johns Creek, Georgia (United States), Page 12

    12

  • Final Plat & as-Built Application - City of Johns Creek, Georgia (United States), Page 13

    13

  • Final Plat & as-Built Application - City of Johns Creek, Georgia (United States), Page 14

    14

  • Final Plat & as-Built Application - City of Johns Creek, Georgia (United States), Page 15

    15

  • Final Plat & as-Built Application - City of Johns Creek, Georgia (United States), Page 16

    16

  • Final Plat & as-Built Application - City of Johns Creek, Georgia (United States), Page 17

    17

  • Final Plat & as-Built Application - City of Johns Creek, Georgia (United States), Page 18

    18

  • Final Plat & as-Built Application - City of Johns Creek, Georgia (United States), Page 19

    19

  • Final Plat & as-Built Application - City of Johns Creek, Georgia (United States), Page 20

    20

  • Final Plat  as-Built Application - City of Johns Creek, Georgia (United States), Page 1
  • Final Plat  as-Built Application - City of Johns Creek, Georgia (United States), Page 2
  • Final Plat  as-Built Application - City of Johns Creek, Georgia (United States), Page 3
  • Final Plat  as-Built Application - City of Johns Creek, Georgia (United States), Page 4
  • Final Plat  as-Built Application - City of Johns Creek, Georgia (United States), Page 5
  • Final Plat  as-Built Application - City of Johns Creek, Georgia (United States), Page 6
  • Final Plat  as-Built Application - City of Johns Creek, Georgia (United States), Page 7
  • Final Plat  as-Built Application - City of Johns Creek, Georgia (United States), Page 8
  • Final Plat  as-Built Application - City of Johns Creek, Georgia (United States), Page 9
  • Final Plat  as-Built Application - City of Johns Creek, Georgia (United States), Page 10
  • Final Plat  as-Built Application - City of Johns Creek, Georgia (United States), Page 11
  • Final Plat  as-Built Application - City of Johns Creek, Georgia (United States), Page 12
  • Final Plat  as-Built Application - City of Johns Creek, Georgia (United States), Page 13
  • Final Plat  as-Built Application - City of Johns Creek, Georgia (United States), Page 14
  • Final Plat  as-Built Application - City of Johns Creek, Georgia (United States), Page 15
  • Final Plat  as-Built Application - City of Johns Creek, Georgia (United States), Page 16
  • Final Plat  as-Built Application - City of Johns Creek, Georgia (United States), Page 17
  • Final Plat  as-Built Application - City of Johns Creek, Georgia (United States), Page 18
  • Final Plat  as-Built Application - City of Johns Creek, Georgia (United States), Page 19
  • Final Plat  as-Built Application - City of Johns Creek, Georgia (United States), Page 20
Prev 1 2 3 4 5 ... 20 Next
ADVERTISEMENT

Related Documents