Permit Application - Groundwater and Vadose Monitoring Wells and Exploratory or Test Borings - County of San Diego, California

Notification Icon This version of the form is not currently in use and is provided for reference only. Download this version of the document for the current year.

Permit Application - Groundwater and Vadose Monitoring Wells and Exploratory or Test Borings - County of San Diego, California

Permit Application - Groundwater and Vadose Monitoring Wells and Exploratory or Test Borings is a legal document that was released by the Department of Environmental Health and Quality - County of San Diego, California - a government authority operating within California. The form may be used strictly within County of San Diego.

FAQ

Q: What is this document about?
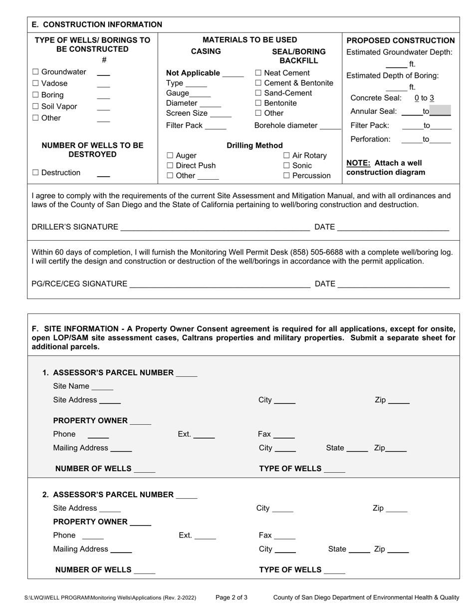
A: This document is about the permit application for groundwater and vadose monitoring wells and exploratory or test borings in the County of San Diego, California.

Q: What is the purpose of this permit?
A: The purpose of this permit is to regulate the installation and operation of groundwater and vadose monitoring wells as well as exploratory or test borings in San Diego County.

Q: Who needs to apply for this permit?
A: Anyone who wants to install and operate groundwater and vadose monitoring wells or exploratory or test borings in San Diego County needs to apply for this permit.

Q: What information is required in the permit application?
A: The permit application will require you to provide information such as project location, well specifications, drilling method, and details of the proposed well or boring.

Q: Are there any fees associated with the permit application?
A: Yes, there are fees associated with the permit application for groundwater and vadose monitoring wells and exploratory or test borings in San Diego County. The fees depend on the type and number of wells or borings.

Q: Who should I contact for more information?
A: For more information about the permit application for groundwater and vadose monitoring wells and exploratory or test borings in San Diego County, you can contact the relevant county office or department responsible for issuing the permit.

ADVERTISEMENT

Form Details:

  • Released on February 1, 2022;
  • The latest edition currently provided by the Department of Environmental Health and Quality - County of San Diego, California;
  • Ready to use and print;
  • Easy to customize;
  • Compatible with most PDF-viewing applications;
  • Fill out the form in our online filing application.

Download a printable version of the form by clicking the link below or browse more documents and templates provided by the Department of Environmental Health and Quality - County of San Diego, California.

Download Permit Application - Groundwater and Vadose Monitoring Wells and Exploratory or Test Borings - County of San Diego, California

4.4 of 5 (19 votes)
  • Permit Application - Groundwater and Vadose Monitoring Wells and Exploratory or Test Borings - County of San Diego, California

    1

  • Permit Application - Groundwater and Vadose Monitoring Wells and Exploratory or Test Borings - County of San Diego, California, Page 2

    2

  • Permit Application - Groundwater and Vadose Monitoring Wells and Exploratory or Test Borings - County of San Diego, California, Page 3

    3

  • Permit Application - Groundwater and Vadose Monitoring Wells and Exploratory or Test Borings - County of San Diego, California, Page 1
  • Permit Application - Groundwater and Vadose Monitoring Wells and Exploratory or Test Borings - County of San Diego, California, Page 2
  • Permit Application - Groundwater and Vadose Monitoring Wells and Exploratory or Test Borings - County of San Diego, California, Page 3
Prev 1 2 3 Next
ADVERTISEMENT

Related Documents