ADEC Form 18-0511 Ust Operations Inspection Report - Alaska

Notification Icon This version of the form is not currently in use and is provided for reference only. Download this version of ADEC Form 18-0511 for the current year.

ADEC Form 18-0511 Ust Operations Inspection Report - Alaska

What Is ADEC Form 18-0511?

This is a legal form that was released by the Alaska Department of Environmental Conservation - a government authority operating within Alaska. As of today, no separate filing guidelines for the form are provided by the issuing department.

FAQ

Q: What is ADEC Form 18-0511 Ust Operations Inspection Report?
A: ADEC Form 18-0511 Ust Operations Inspection Report is a document used in Alaska to inspect underground storage tank operations.

Q: What is the purpose of ADEC Form 18-0511 Ust Operations Inspection Report?
A: The purpose of this report is to ensure compliance with regulations and standards related to underground storage tanks.

Q: Who uses ADEC Form 18-0511 Ust Operations Inspection Report?
A: This form is used by inspectors and regulatory authorities responsible for monitoring underground storage tank operations in Alaska.

Q: What does UST stand for in ADEC Form 18-0511 Ust Operations Inspection Report?
A: UST stands for Underground Storage Tank.

Q: What information is included in ADEC Form 18-0511 Ust Operations Inspection Report?
A: The form includes details about the tank owner/operator, inspection dates, tank location, tank equipment, leak detection systems, spill prevention measures, and any violations or discrepancies found during the inspection.

Q: Why is it important to inspect underground storage tank operations?
A: Inspecting underground storage tank operations is important to prevent leaks and spills, protect human health and the environment, and ensure compliance with regulations and safety standards.

ADVERTISEMENT

Form Details:

  • Released on March 29, 2022;
  • The latest edition provided by the Alaska Department of Environmental Conservation;
  • Easy to use and ready to print;
  • Quick to customize;
  • Compatible with most PDF-viewing applications;
  • Fill out the form in our online filing application.

Download a printable version of ADEC Form 18-0511 by clicking the link below or browse more documents and templates provided by the Alaska Department of Environmental Conservation.

Download ADEC Form 18-0511 Ust Operations Inspection Report - Alaska

4.4 of 5 (19 votes)
  • ADEC Form 18-0511 Ust Operations Inspection Report - Alaska

    1

  • ADEC Form 18-0511 Ust Operations Inspection Report - Alaska, Page 2

    2

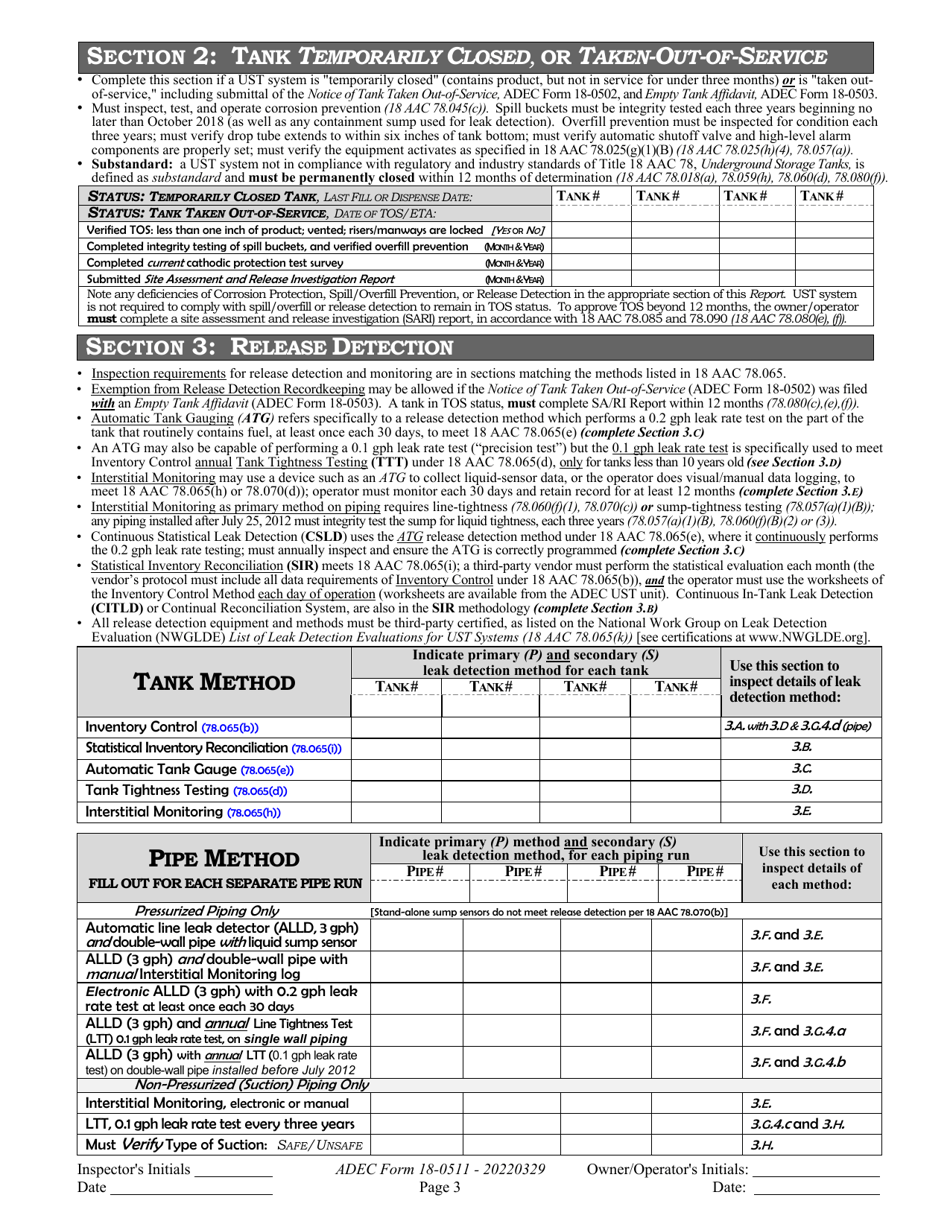
  • ADEC Form 18-0511 Ust Operations Inspection Report - Alaska, Page 3

    3

  • ADEC Form 18-0511 Ust Operations Inspection Report - Alaska, Page 4

    4

  • ADEC Form 18-0511 Ust Operations Inspection Report - Alaska, Page 5

    5

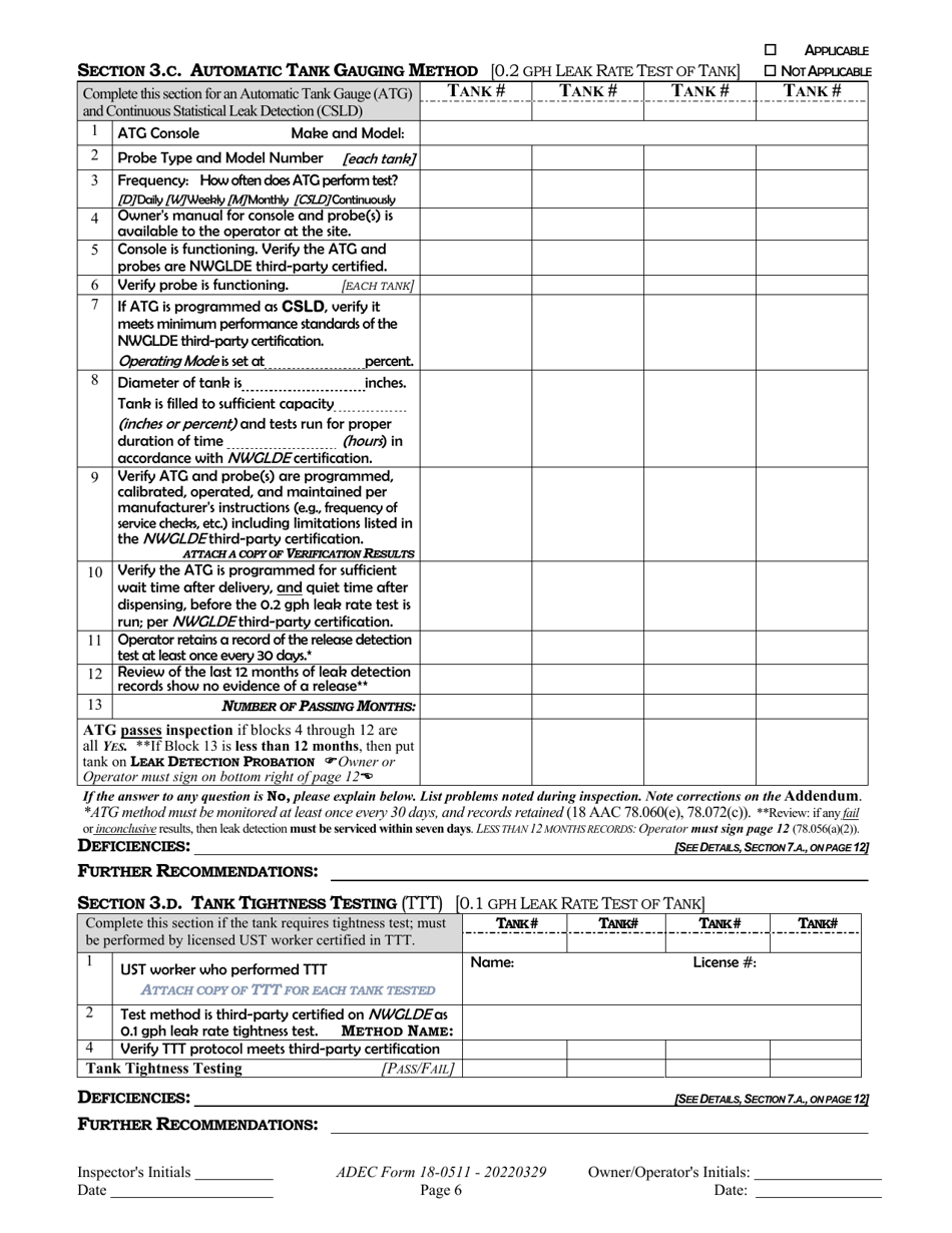
  • ADEC Form 18-0511 Ust Operations Inspection Report - Alaska, Page 6

    6

  • ADEC Form 18-0511 Ust Operations Inspection Report - Alaska, Page 7

    7

  • ADEC Form 18-0511 Ust Operations Inspection Report - Alaska, Page 8

    8

  • ADEC Form 18-0511 Ust Operations Inspection Report - Alaska, Page 9

    9

  • ADEC Form 18-0511 Ust Operations Inspection Report - Alaska, Page 10

    10

  • ADEC Form 18-0511 Ust Operations Inspection Report - Alaska, Page 11

    11

  • ADEC Form 18-0511 Ust Operations Inspection Report - Alaska, Page 12

    12

  • ADEC Form 18-0511 Ust Operations Inspection Report - Alaska, Page 13

    13

  • ADEC Form 18-0511 Ust Operations Inspection Report - Alaska, Page 14

    14

  • ADEC Form 18-0511 Ust Operations Inspection Report - Alaska, Page 1
  • ADEC Form 18-0511 Ust Operations Inspection Report - Alaska, Page 2
  • ADEC Form 18-0511 Ust Operations Inspection Report - Alaska, Page 3
  • ADEC Form 18-0511 Ust Operations Inspection Report - Alaska, Page 4
  • ADEC Form 18-0511 Ust Operations Inspection Report - Alaska, Page 5
  • ADEC Form 18-0511 Ust Operations Inspection Report - Alaska, Page 6
  • ADEC Form 18-0511 Ust Operations Inspection Report - Alaska, Page 7
  • ADEC Form 18-0511 Ust Operations Inspection Report - Alaska, Page 8
  • ADEC Form 18-0511 Ust Operations Inspection Report - Alaska, Page 9
  • ADEC Form 18-0511 Ust Operations Inspection Report - Alaska, Page 10
  • ADEC Form 18-0511 Ust Operations Inspection Report - Alaska, Page 11
  • ADEC Form 18-0511 Ust Operations Inspection Report - Alaska, Page 12
  • ADEC Form 18-0511 Ust Operations Inspection Report - Alaska, Page 13
  • ADEC Form 18-0511 Ust Operations Inspection Report - Alaska, Page 14
Prev 1 2 3 4 5 ... 14 Next
ADVERTISEMENT