Residential Pool and / or Uncovered Deck Permit Application - City of Austin, Texas

Notification Icon This version of the form is not currently in use and is provided for reference only. Download this version of the document for the current year.

Residential Pool and / or Uncovered Deck Permit Application - City of Austin, Texas

Residential Pool and/or Uncovered Deck Permit Application is a legal document that was released by the Development Services Department - City of Austin, Texas - a government authority operating within Texas. The form may be used strictly within City of Austin.

FAQ

Q: Do I need a permit to build a pool or uncovered deck in the City of Austin, Texas?
A: Yes, you need a permit to build a pool or uncovered deck in the City of Austin, Texas.

Q: What is the purpose of the Residential Pool and/or Uncovered Deck Permit Application?
A: The purpose of the Residential Pool and/or Uncovered Deck Permit Application is to apply for a permit to build a pool or uncovered deck in the City of Austin, Texas.

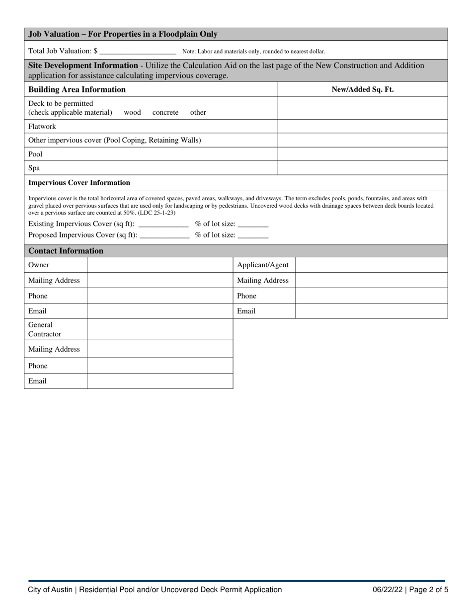
Q: What information is required on the Residential Pool and/or Uncovered Deck Permit Application?
A: The Residential Pool and/or Uncovered Deck Permit Application requires information such as property address, dimensions of the pool or deck, construction materials, and details of any electrical or plumbing work.

Q: Are there any fees associated with the Residential Pool and/or Uncovered Deck Permit Application?
A: Yes, there are fees associated with the Residential Pool and/or Uncovered Deck Permit Application. The amount of the fees will depend on the project size and complexity.

Q: How long does it take to process the Residential Pool and/or Uncovered Deck Permit Application?
A: The processing time for the Residential Pool and/or Uncovered Deck Permit Application may vary. It is recommended to contact the City of Austin, Texas for specific information regarding the processing time.

Q: Are there any regulations and requirements for building a pool or uncovered deck in the City of Austin, Texas?
A: Yes, there are regulations and requirements for building a pool or uncovered deck in the City of Austin, Texas. These may include setback distances, fencing requirements, and safety regulations. It is important to review the local building codes and regulations before starting the construction.

Q: Do I need to hire a licensed contractor to build a pool or uncovered deck in the City of Austin, Texas?
A: It is recommended to hire a licensed contractor to build a pool or uncovered deck in the City of Austin, Texas. A licensed contractor has the necessary knowledge and expertise to ensure the construction meets all the legal requirements and safety standards.

Q: What happens if I start building a pool or uncovered deck without a permit in the City of Austin, Texas?
A: Building a pool or uncovered deck without a permit in the City of Austin, Texas is a violation of the local building codes and regulations. You may be subject to fines, penalties, and legal consequences. It is important to obtain the necessary permit before starting the construction.

ADVERTISEMENT

Form Details:

  • Released on June 22, 2022;
  • The latest edition currently provided by the Development Services Department - City of Austin, Texas;
  • Ready to use and print;
  • Easy to customize;
  • Compatible with most PDF-viewing applications;
  • Fill out the form in our online filing application.

Download a fillable version of the form by clicking the link below or browse more documents and templates provided by the Development Services Department - City of Austin, Texas.

Download Residential Pool and / or Uncovered Deck Permit Application - City of Austin, Texas

4.4 of 5 (10 votes)
  • Residential Pool and/or Uncovered Deck Permit Application - City of Austin, Texas

    1

  • Residential Pool and/or Uncovered Deck Permit Application - City of Austin, Texas, Page 2

    2

  • Residential Pool and/or Uncovered Deck Permit Application - City of Austin, Texas, Page 3

    3

  • Residential Pool and/or Uncovered Deck Permit Application - City of Austin, Texas, Page 4

    4

  • Residential Pool and/or Uncovered Deck Permit Application - City of Austin, Texas, Page 5

    5

  • Residential Pool and / or Uncovered Deck Permit Application - City of Austin, Texas, Page 1
  • Residential Pool and / or Uncovered Deck Permit Application - City of Austin, Texas, Page 2
  • Residential Pool and / or Uncovered Deck Permit Application - City of Austin, Texas, Page 3
  • Residential Pool and / or Uncovered Deck Permit Application - City of Austin, Texas, Page 4
  • Residential Pool and / or Uncovered Deck Permit Application - City of Austin, Texas, Page 5
Prev 1 2 3 4 5 Next
ADVERTISEMENT

Related Documents