Form DBPR AR5 Application to Qualify Architectural Business Organization - Florida

Notification Icon This version of the form is not currently in use and is provided for reference only. Download this version of Form DBPR AR5 for the current year.

Form DBPR AR5 Application to Qualify Architectural Business Organization - Florida

What Is Form DBPR AR5?

This is a legal form that was released by the Florida Department of Business & Professional Regulation - a government authority operating within Florida. As of today, no separate filing guidelines for the form are provided by the issuing department.

FAQ

Q: What is the DBPR AR5 application?
A: The DBPR AR5 application is a form used to apply for architectural business organization qualification in the state of Florida.

Q: What is an architectural business organization?
A: An architectural business organization refers to a business entity that offers architectural services.

Q: Who needs to submit the DBPR AR5 application?
A: Architectural business organizations in Florida need to submit the DBPR AR5 application.

Q: What is the purpose of the DBPR AR5 application?
A: The purpose of the DBPR AR5 application is to qualify an architectural business organization to provide architectural services in Florida.

Q: What information is required on the DBPR AR5 application?
A: The DBPR AR5 application requires information such as the business entity's name, address, contact information, and details about the business organization's architecture practice.

Q: How long does it take to process the DBPR AR5 application?
A: The processing time for the DBPR AR5 application may vary. It is recommended to check with the DBPR for current processing times.

Q: What happens after the DBPR AR5 application is approved?
A: Once the DBPR AR5 application is approved, the architectural business organization will be qualified to provide architectural services in Florida.

Q: What if the DBPR AR5 application is denied?
A: If the DBPR AR5 application is denied, the architectural business organization may need to address the reasons for denial and submit a revised application, if applicable.

ADVERTISEMENT

Form Details:

  • Released on February 1, 2022;
  • The latest edition provided by the Florida Department of Business & Professional Regulation;
  • Easy to use and ready to print;
  • Quick to customize;
  • Compatible with most PDF-viewing applications;
  • Fill out the form in our online filing application.

Download a printable version of Form DBPR AR5 by clicking the link below or browse more documents and templates provided by the Florida Department of Business & Professional Regulation.

Download Form DBPR AR5 Application to Qualify Architectural Business Organization - Florida

4.4 of 5 (15 votes)
  • Form DBPR AR5 Application to Qualify Architectural Business Organization - Florida

    1

  • Form DBPR AR5 Application to Qualify Architectural Business Organization - Florida, Page 2

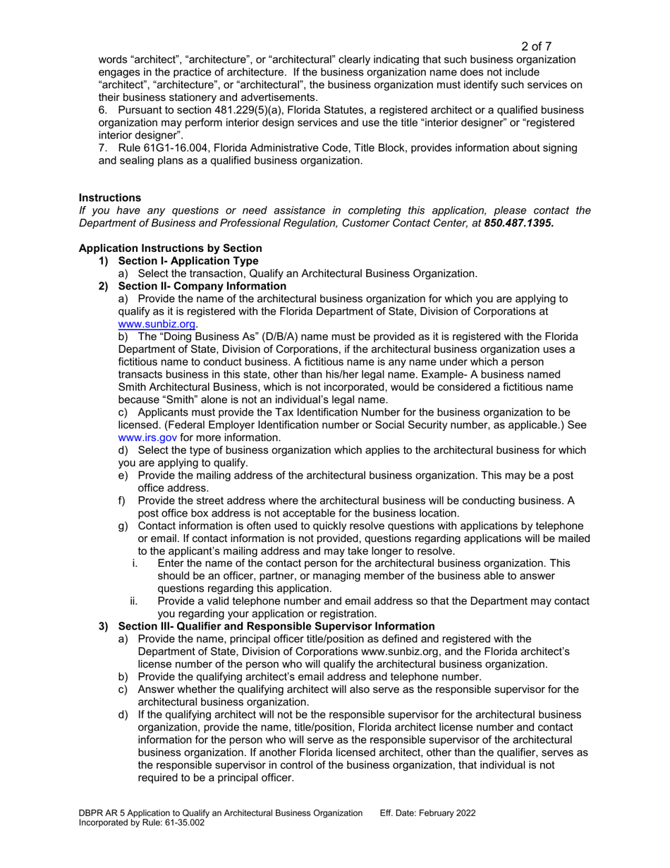
    2

  • Form DBPR AR5 Application to Qualify Architectural Business Organization - Florida, Page 3

    3

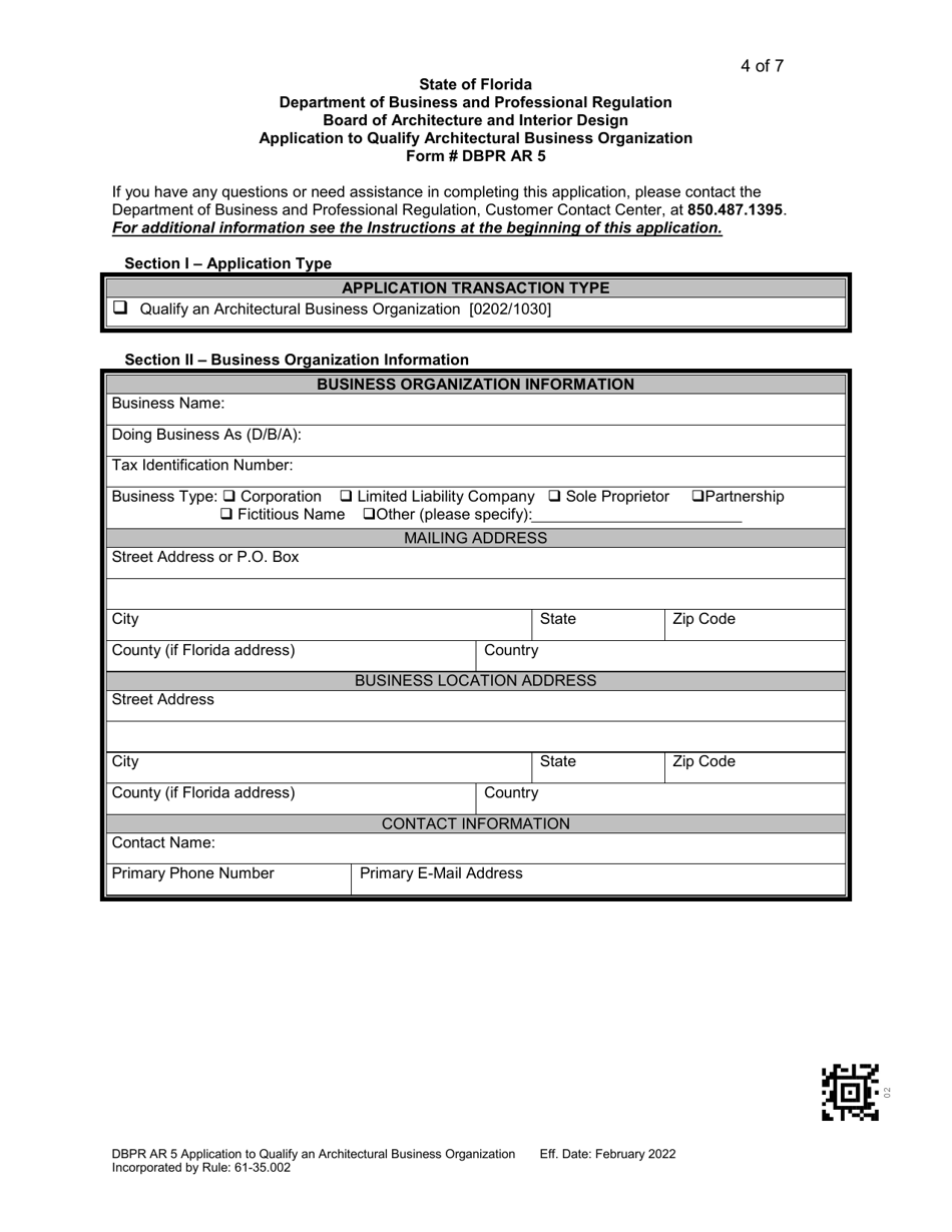
  • Form DBPR AR5 Application to Qualify Architectural Business Organization - Florida, Page 4

    4

  • Form DBPR AR5 Application to Qualify Architectural Business Organization - Florida, Page 5

    5

  • Form DBPR AR5 Application to Qualify Architectural Business Organization - Florida, Page 6

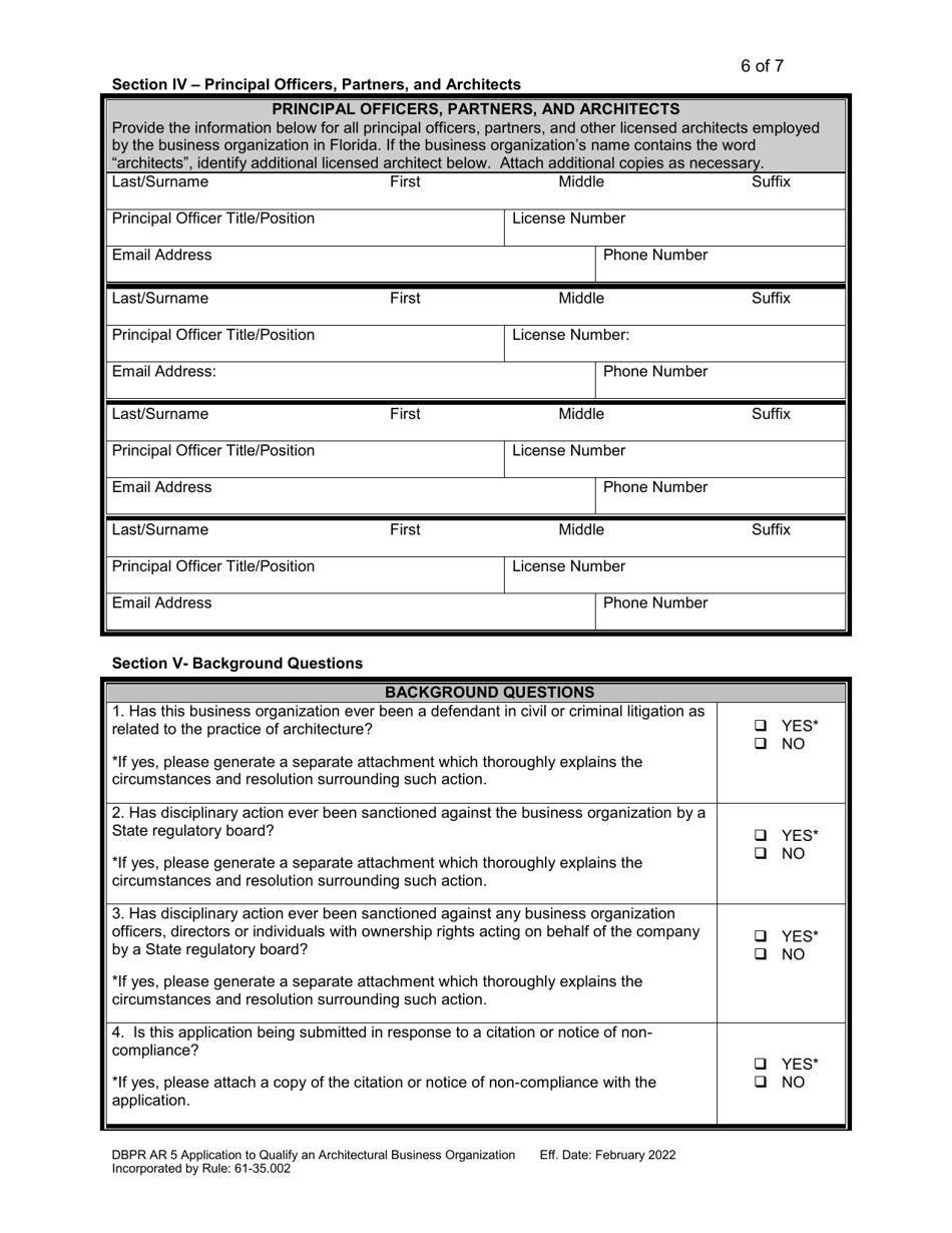
    6

  • Form DBPR AR5 Application to Qualify Architectural Business Organization - Florida, Page 7

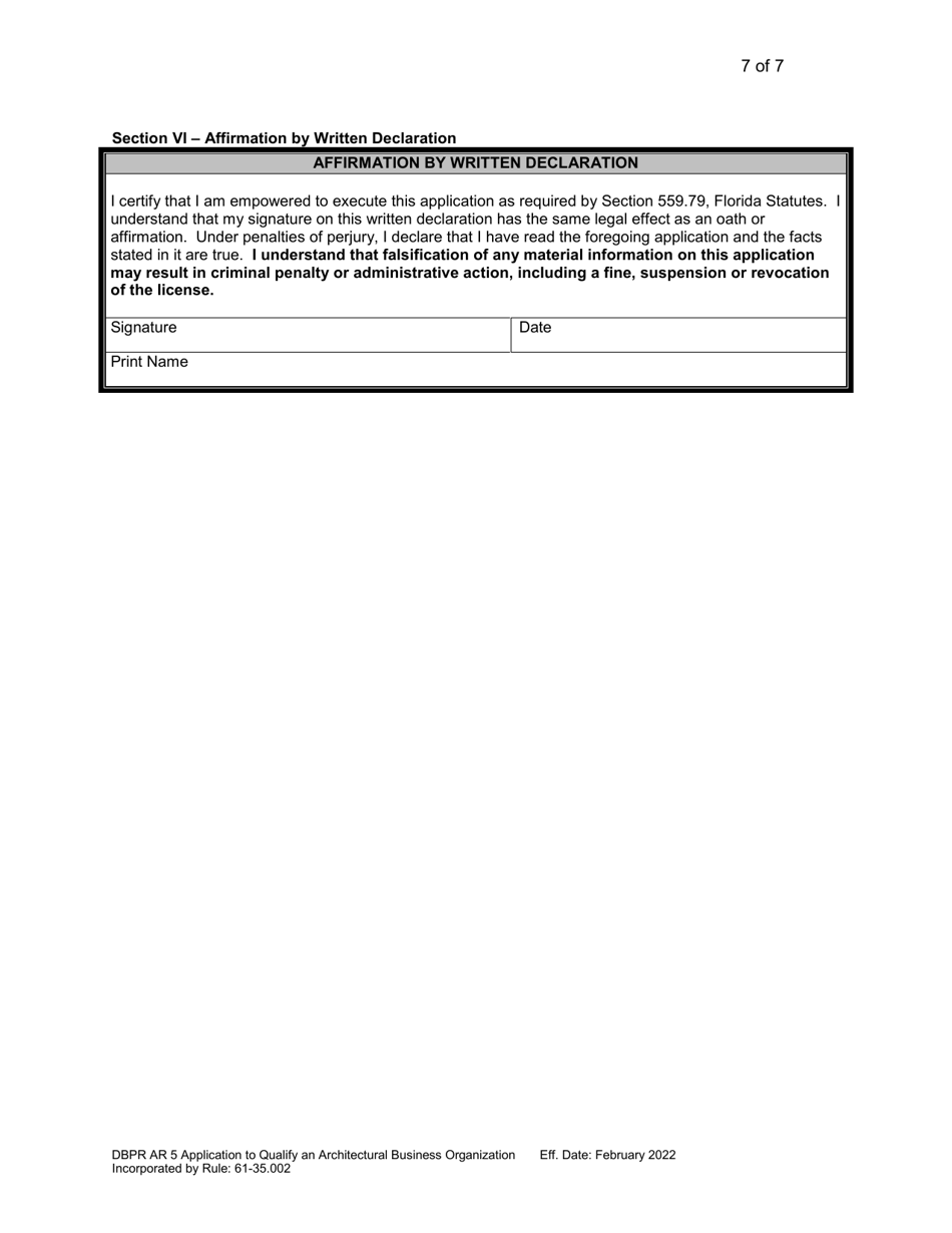
    7

  • Form DBPR AR5 Application to Qualify Architectural Business Organization - Florida, Page 1
  • Form DBPR AR5 Application to Qualify Architectural Business Organization - Florida, Page 2
  • Form DBPR AR5 Application to Qualify Architectural Business Organization - Florida, Page 3
  • Form DBPR AR5 Application to Qualify Architectural Business Organization - Florida, Page 4
  • Form DBPR AR5 Application to Qualify Architectural Business Organization - Florida, Page 5
  • Form DBPR AR5 Application to Qualify Architectural Business Organization - Florida, Page 6
  • Form DBPR AR5 Application to Qualify Architectural Business Organization - Florida, Page 7
Prev 1 2 3 4 5 ... 7 Next
ADVERTISEMENT