Form OR-18-WC (150-101-284) Report of Tax Payment or Written Affirmation for Oregon Real Property Conveyance - Oregon

Notification Icon This version of the form is not currently in use and is provided for reference only. Download this version of Form OR-18-WC (150-101-284) for the current year.

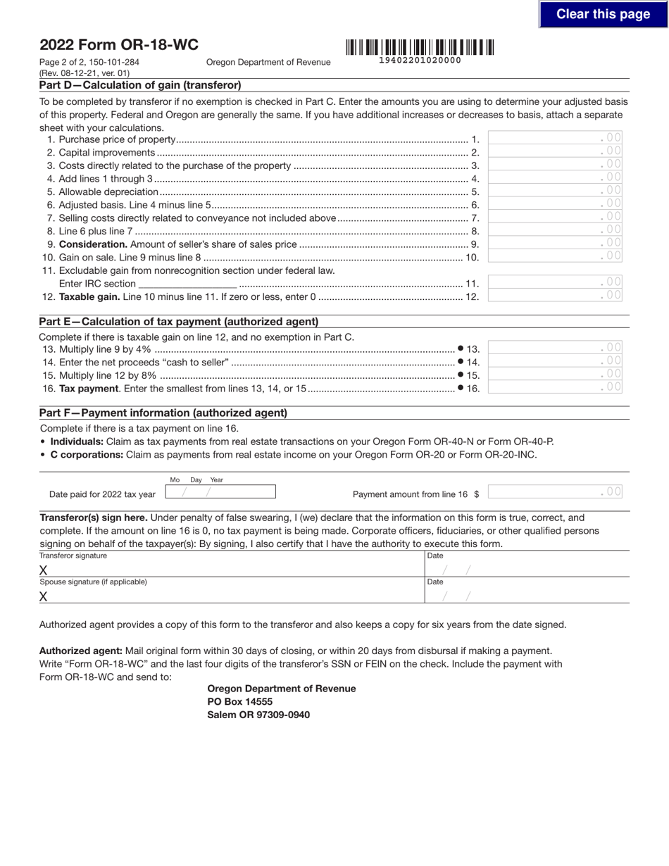
Form OR-18-WC (150-101-284) Report of Tax Payment or Written Affirmation for Oregon Real Property Conveyance - Oregon

What Is Form OR-18-WC (150-101-284)?

This is a legal form that was released by the Oregon Department of Revenue - a government authority operating within Oregon. As of today, no separate filing guidelines for the form are provided by the issuing department.

FAQ

Q: What is Form OR-18-WC?
A: Form OR-18-WC is the Report of Tax Payment or Written Affirmation for Oregon Real Property Conveyance.

Q: What is the purpose of Form OR-18-WC?
A: The purpose of Form OR-18-WC is to report tax payment or provide a written affirmation for the conveyance of real property in Oregon.

Q: Do I need to use Form OR-18-WC for every real property conveyance in Oregon?
A: Yes, Form OR-18-WC is required for every real property conveyance in Oregon.

Q: What information is required on Form OR-18-WC?
A: Form OR-18-WC requires information such as the property address, transferor and transferee details, and payment verification.

Q: When should I submit Form OR-18-WC?
A: Form OR-18-WC should be submitted within 30 days from the date of conveyance.

ADVERTISEMENT

Form Details:

  • Released on August 12, 2021;
  • The latest edition provided by the Oregon Department of Revenue;
  • Easy to use and ready to print;
  • Quick to customize;
  • Compatible with most PDF-viewing applications;
  • Fill out the form in our online filing application.

Download a fillable version of Form OR-18-WC (150-101-284) by clicking the link below or browse more documents and templates provided by the Oregon Department of Revenue.

Download Form OR-18-WC (150-101-284) Report of Tax Payment or Written Affirmation for Oregon Real Property Conveyance - Oregon

4.8 of 5 (19 votes)
  • Form OR-18-WC (150-101-284) Report of Tax Payment or Written Affirmation for Oregon Real Property Conveyance - Oregon

    1

  • Form OR-18-WC (150-101-284) Report of Tax Payment or Written Affirmation for Oregon Real Property Conveyance - Oregon, Page 2

    2

  • Form OR-18-WC (150-101-284) Report of Tax Payment or Written Affirmation for Oregon Real Property Conveyance - Oregon, Page 1
  • Form OR-18-WC (150-101-284) Report of Tax Payment or Written Affirmation for Oregon Real Property Conveyance - Oregon, Page 2
Prev 1 2 Next
ADVERTISEMENT