Form 734-2886 Temporary Transverse Rumble Strip Request Form - Oregon

Form 734-2886 Temporary Transverse Rumble Strip Request Form - Oregon

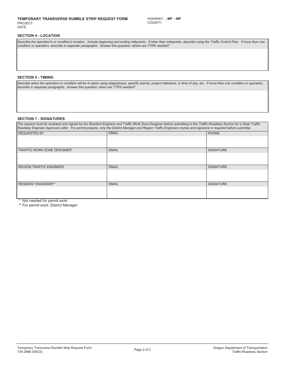
What Is Form 734-2886?

This is a legal form that was released by the Oregon Department of Transportation - a government authority operating within Oregon. As of today, no separate filing guidelines for the form are provided by the issuing department.

FAQ

Q: What is Form 734-2886?
A: Form 734-2886 is the Temporary Transverse Rumble Strip Request Form in Oregon.

Q: What is the purpose of Form 734-2886?
A: The purpose of Form 734-2886 is to request the installation of temporary transverse rumble strips in Oregon.

Q: How do I fill out Form 734-2886?
A: You need to provide the required information, such as location details, dates, and reasons for the rumble strip request.

Q: Who can submit Form 734-2886?
A: Anyone can submit Form 734-2886, including individuals, organizations, or agencies.

Q: Are there any fees associated with Form 734-2886?
A: No, there are no fees associated with submitting Form 734-2886.

ADVERTISEMENT

Form Details:

  • Released on September 1, 2022;
  • The latest edition provided by the Oregon Department of Transportation;
  • Easy to use and ready to print;
  • Quick to customize;
  • Compatible with most PDF-viewing applications;
  • Fill out the form in our online filing application.

Download a fillable version of Form 734-2886 by clicking the link below or browse more documents and templates provided by the Oregon Department of Transportation.

Download Form 734-2886 Temporary Transverse Rumble Strip Request Form - Oregon

4.8 of 5 (15 votes)
  • Form 734-2886 Temporary Transverse Rumble Strip Request Form - Oregon

    1

  • Form 734-2886 Temporary Transverse Rumble Strip Request Form - Oregon, Page 2

    2

  • Form 734-2886 Temporary Transverse Rumble Strip Request Form - Oregon, Page 1
  • Form 734-2886 Temporary Transverse Rumble Strip Request Form - Oregon, Page 2
Prev 1 2 Next
ADVERTISEMENT