Form SRG2002B Application for an Aerodrome Certificate - United Kingdom

Notification Icon This version of the form is not currently in use and is provided for reference only. Download this version of Form SRG2002B for the current year.

Form SRG2002B Application for an Aerodrome Certificate - United Kingdom

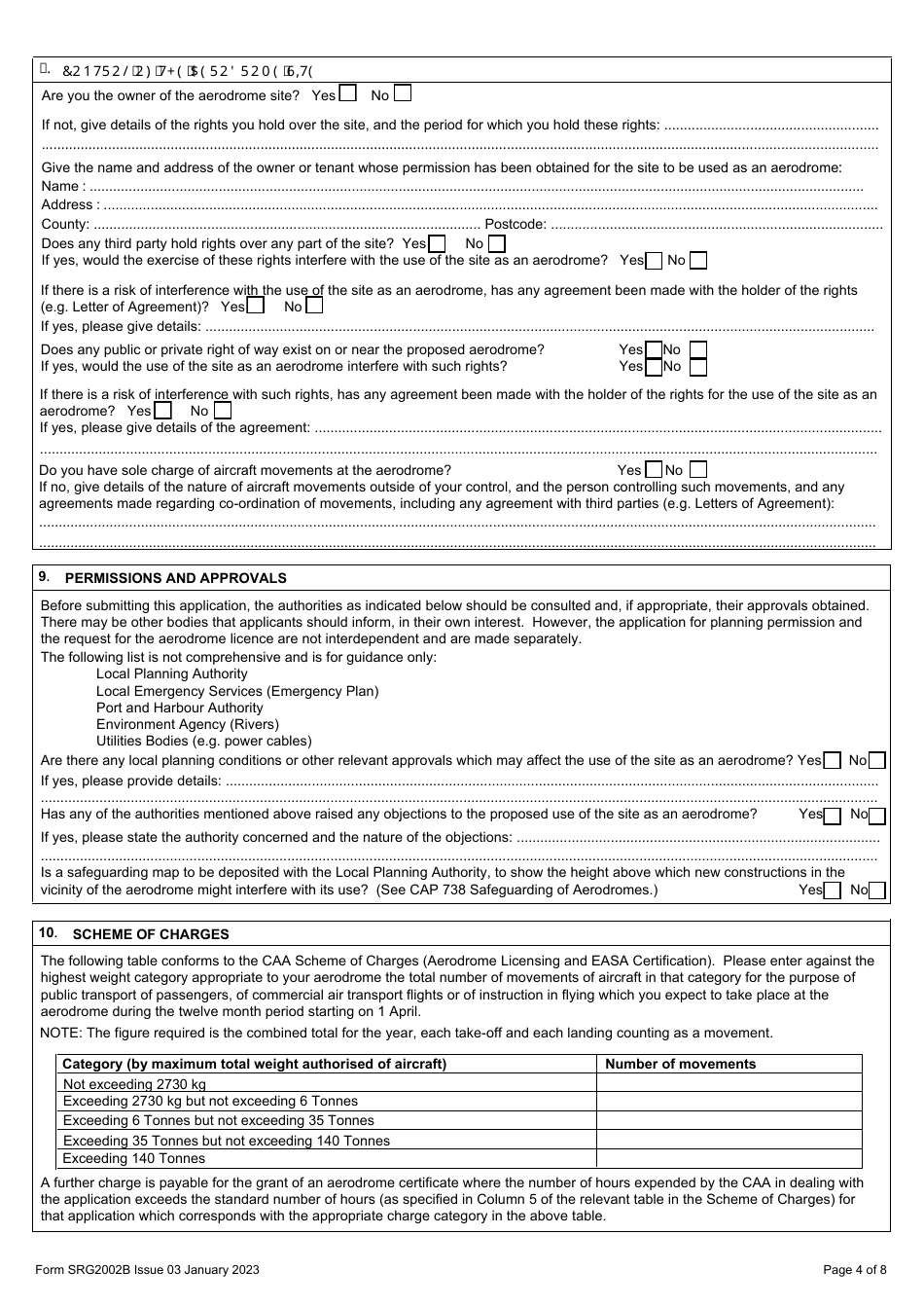
Form SRG2002B is the application form used in the United Kingdom to apply for an Aerodrome Certificate. This certificate is required for an aerodrome (an area where aircraft take off, land, and maneuver on the ground) to operate legally in the UK. The form gathers information about the aerodrome and its operation, including details about the management, facilities, safety procedures, and emergency plans. The application process ensures that the aerodrome meets all the necessary safety and operational requirements set by the UK Civil Aviation Authority.

The Form SRG2002B Application for an Aerodrome Certificate in the United Kingdom is typically filed by the operator or owner of the aerodrome.

FAQ

Q: What is the Form SRG2002B?
A: Form SRG2002B is the application form for an Aerodrome Certificate in the United Kingdom.

Q: What is an Aerodrome Certificate?
A: An Aerodrome Certificate is a document issued by the regulatory authority in the United Kingdom that certifies an aerodrome's compliance with safety and operational standards.

Q: Who needs to fill out Form SRG2002B?
A: Any organization or entity operating an aerodrome in the United Kingdom and seeking certification needs to fill out Form SRG2002B.

Q: What information is required in Form SRG2002B?
A: Form SRG2002B requires information about the aerodrome operator, the aerodrome's infrastructure, the safety management system, and operational procedures.

Q: Are there any fees associated with submitting Form SRG2002B?
A: Yes, there are fees associated with submitting Form SRG2002B. The exact fees may vary depending on the size and complexity of the aerodrome.

Q: What happens after submitting Form SRG2002B?
A: After submitting Form SRG2002B, the regulatory authority will review the application and conduct inspections and assessments to determine if the aerodrome meets the necessary standards for certification.

Q: How long does it take to process Form SRG2002B?
A: The processing time for Form SRG2002B can vary depending on the complexity of the application and the workload of the regulatory authority. It is best to contact the regulatory authority for an estimate.

Q: What are the benefits of having an Aerodrome Certificate?
A: Having an Aerodrome Certificate demonstrates compliance with safety and operational standards, which can enhance the reputation and credibility of the aerodrome. It also allows the aerodrome to operate legally and ensures the safety of aircraft and passengers.

Q: Can an Aerodrome Certificate be revoked?
A: Yes, an Aerodrome Certificate can be revoked if the aerodrome fails to maintain compliance with safety and operational standards or if there are significant safety concerns. Revocation can result in the suspension or closure of the aerodrome.

ADVERTISEMENT

Download Form SRG2002B Application for an Aerodrome Certificate - United Kingdom

4.3 of 5 (7 votes)
  • Form SRG2002B Application for an Aerodrome Certificate - United Kingdom

    1

  • Form SRG2002B Application for an Aerodrome Certificate - United Kingdom, Page 2

    2

  • Form SRG2002B Application for an Aerodrome Certificate - United Kingdom, Page 3

    3

  • Form SRG2002B Application for an Aerodrome Certificate - United Kingdom, Page 4

    4

  • Form SRG2002B Application for an Aerodrome Certificate - United Kingdom, Page 5

    5

  • Form SRG2002B Application for an Aerodrome Certificate - United Kingdom, Page 6

    6

  • Form SRG2002B Application for an Aerodrome Certificate - United Kingdom, Page 7

    7

  • Form SRG2002B Application for an Aerodrome Certificate - United Kingdom, Page 8

    8

  • Form SRG2002B Application for an Aerodrome Certificate - United Kingdom, Page 1
  • Form SRG2002B Application for an Aerodrome Certificate - United Kingdom, Page 2
  • Form SRG2002B Application for an Aerodrome Certificate - United Kingdom, Page 3
  • Form SRG2002B Application for an Aerodrome Certificate - United Kingdom, Page 4
  • Form SRG2002B Application for an Aerodrome Certificate - United Kingdom, Page 5
  • Form SRG2002B Application for an Aerodrome Certificate - United Kingdom, Page 6
  • Form SRG2002B Application for an Aerodrome Certificate - United Kingdom, Page 7
  • Form SRG2002B Application for an Aerodrome Certificate - United Kingdom, Page 8
Prev 1 2 3 4 5 ... 8 Next
ADVERTISEMENT