Form ARB-M1 Municipal Act Application / Appeal - Cancel, Reduce, Refund - Ontario, Canada

Notification Icon This version of the form is not currently in use and is provided for reference only. Download this version of Form ARB-M1 for the current year.

Form ARB-M1 Municipal Act Application / Appeal - Cancel, Reduce, Refund - Ontario, Canada

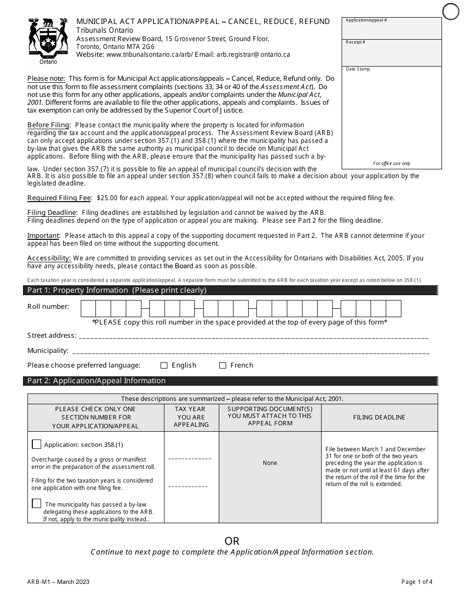
Form ARB-M1 Municipal Act Application/Appeal - Cancel, Reduce, Refund is used in Ontario, Canada for applying or appealing to cancel, reduce, or request a refund of property taxes assessed by a municipality. It is a formal process for property owners to seek relief from property tax assessments.

The Form ARB-M1 Municipal Act Application/Appeal - Cancel, Reduce, Refund is typically filed by property owners in Ontario, Canada who wish to challenge their property assessment or seek a reduction or cancellation of their property taxes.

FAQ

Q: What is the ARB-M1 Municipal Act Application/Appeal form?
A: The ARB-M1 Municipal Act Application/Appeal form is a form used in Ontario, Canada for requesting the cancellation, reduction, or refund of municipal taxes.

Q: Who can use the ARB-M1 Municipal Act Application/Appeal form?
A: Any property owner in Ontario, Canada can use the ARB-M1 Municipal Act Application/Appeal form to request the cancellation, reduction, or refund of municipal taxes.

Q: What can I use the ARB-M1 Municipal Act Application/Appeal form for?
A: You can use the ARB-M1 Municipal Act Application/Appeal form to request the cancellation, reduction, or refund of municipal taxes in Ontario, Canada.

Q: How can I obtain the ARB-M1 Municipal Act Application/Appeal form?
A: You can obtain the ARB-M1 Municipal Act Application/Appeal form from the Assessment Review Board (ARB) or the municipality in Ontario, Canada.

Q: Is there a fee for submitting the ARB-M1 Municipal Act Application/Appeal form?
A: Yes, there is a fee for submitting the ARB-M1 Municipal Act Application/Appeal form. The fee amount may vary and should be confirmed with the Assessment Review Board or the municipality.

Q: What should I include when submitting the ARB-M1 Municipal Act Application/Appeal form?
A: When submitting the ARB-M1 Municipal Act Application/Appeal form, you should include all necessary supporting documents, such as assessment notices, property information, and any other relevant documents.

Q: What happens after I submit the ARB-M1 Municipal Act Application/Appeal form?
A: After you submit the ARB-M1 Municipal Act Application/Appeal form, your request will be reviewed by the Assessment Review Board (ARB) or the municipality, and they will make a decision based on the information provided.

ADVERTISEMENT

Download Form ARB-M1 Municipal Act Application / Appeal - Cancel, Reduce, Refund - Ontario, Canada

4.4 of 5 (23 votes)
  • Form ARB-M1 Municipal Act Application/Appeal - Cancel, Reduce, Refund - Ontario, Canada

    1

  • Form ARB-M1 Municipal Act Application/Appeal - Cancel, Reduce, Refund - Ontario, Canada, Page 2

    2

  • Form ARB-M1 Municipal Act Application/Appeal - Cancel, Reduce, Refund - Ontario, Canada, Page 3

    3

  • Form ARB-M1 Municipal Act Application/Appeal - Cancel, Reduce, Refund - Ontario, Canada, Page 4

    4

  • Form ARB-M1 Municipal Act Application/Appeal - Cancel, Reduce, Refund - Ontario, Canada, Page 5

    5

  • Form ARB-M1 Municipal Act Application/Appeal - Cancel, Reduce, Refund - Ontario, Canada, Page 6

    6

  • Form ARB-M1 Municipal Act Application/Appeal - Cancel, Reduce, Refund - Ontario, Canada, Page 7

    7

  • Form ARB-M1 Municipal Act Application/Appeal - Cancel, Reduce, Refund - Ontario, Canada, Page 8

    8

  • Form ARB-M1 Municipal Act Application / Appeal - Cancel, Reduce, Refund - Ontario, Canada, Page 1
  • Form ARB-M1 Municipal Act Application / Appeal - Cancel, Reduce, Refund - Ontario, Canada, Page 2
  • Form ARB-M1 Municipal Act Application / Appeal - Cancel, Reduce, Refund - Ontario, Canada, Page 3
  • Form ARB-M1 Municipal Act Application / Appeal - Cancel, Reduce, Refund - Ontario, Canada, Page 4
  • Form ARB-M1 Municipal Act Application / Appeal - Cancel, Reduce, Refund - Ontario, Canada, Page 5
  • Form ARB-M1 Municipal Act Application / Appeal - Cancel, Reduce, Refund - Ontario, Canada, Page 6
  • Form ARB-M1 Municipal Act Application / Appeal - Cancel, Reduce, Refund - Ontario, Canada, Page 7
  • Form ARB-M1 Municipal Act Application / Appeal - Cancel, Reduce, Refund - Ontario, Canada, Page 8
Prev 1 2 3 4 5 ... 8 Next
ADVERTISEMENT