Bordering Vegetated Wetland Determination Form - Massachusetts

Notification Icon This version of the form is not currently in use and is provided for reference only. Download this version of the document for the current year.

Bordering Vegetated Wetland Determination Form - Massachusetts

Bordering Vegetated Wetland Determination Form is a legal document that was released by the Massachusetts Department of Environmental Protection - a government authority operating within Massachusetts.

FAQ

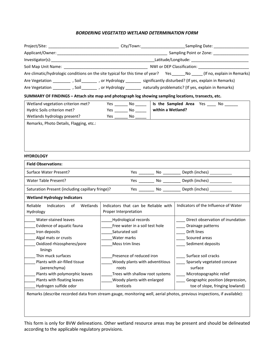
Q: What is the Bordering Vegetated Wetland Determination Form?
A: The Bordering Vegetated Wetland Determination Form is a document used in Massachusetts to assess and determine the presence of wetlands on a property.

Q: Why is the Bordering Vegetated Wetland Determination Form important?
A: This form is important because it helps identify and protect wetlands, which are vital for flood control, water filtration, and wildlife habitat.

Q: Who needs to fill out the Bordering Vegetated Wetland Determination Form?
A: Property owners, developers, or anyone seeking to undertake activities near wetland areas in Massachusetts may need to fill out this form.

Q: What information is required in the Bordering Vegetated Wetland Determination Form?
A: The form typically requires information about the property owner, location of the property, and a description of the proposed activity.

Q: What happens after the Bordering Vegetated Wetland Determination Form is submitted?
A: After submitting the form, it will be reviewed by the appropriate authorities who will assess whether the proposed activity may impact wetlands. Depending on the findings, permits or further actions may be required.

Q: Are there any fees associated with the Bordering Vegetated Wetland Determination Form?
A: There may be associated fees, such as filing fees, depending on the local regulations and requirements.

Q: What are the consequences of not filling out the Bordering Vegetated Wetland Determination Form?
A: Failing to fill out the form when required may result in legal penalties and fines for non-compliance with wetland protection laws.

ADVERTISEMENT

Form Details:

  • The latest edition currently provided by the Massachusetts Department of Environmental Protection;
  • Ready to use and print;
  • Easy to customize;
  • Compatible with most PDF-viewing applications;
  • Fill out the form in our online filing application.

Download a printable version of the form by clicking the link below or browse more documents and templates provided by the Massachusetts Department of Environmental Protection.

Download Bordering Vegetated Wetland Determination Form - Massachusetts

4.8 of 5 (5 votes)
  • Bordering Vegetated Wetland Determination Form - Massachusetts

    1

  • Bordering Vegetated Wetland Determination Form - Massachusetts, Page 2

    2

  • Bordering Vegetated Wetland Determination Form - Massachusetts, Page 3

    3

  • Bordering Vegetated Wetland Determination Form - Massachusetts, Page 4

    4

  • Bordering Vegetated Wetland Determination Form - Massachusetts, Page 5

    5

  • Bordering Vegetated Wetland Determination Form - Massachusetts, Page 6

    6

  • Bordering Vegetated Wetland Determination Form - Massachusetts, Page 7

    7

  • Bordering Vegetated Wetland Determination Form - Massachusetts, Page 8

    8

  • Bordering Vegetated Wetland Determination Form - Massachusetts, Page 9

    9

  • Bordering Vegetated Wetland Determination Form - Massachusetts, Page 10

    10

  • Bordering Vegetated Wetland Determination Form - Massachusetts, Page 1
  • Bordering Vegetated Wetland Determination Form - Massachusetts, Page 2
  • Bordering Vegetated Wetland Determination Form - Massachusetts, Page 3
  • Bordering Vegetated Wetland Determination Form - Massachusetts, Page 4
  • Bordering Vegetated Wetland Determination Form - Massachusetts, Page 5
  • Bordering Vegetated Wetland Determination Form - Massachusetts, Page 6
  • Bordering Vegetated Wetland Determination Form - Massachusetts, Page 7
  • Bordering Vegetated Wetland Determination Form - Massachusetts, Page 8
  • Bordering Vegetated Wetland Determination Form - Massachusetts, Page 9
  • Bordering Vegetated Wetland Determination Form - Massachusetts, Page 10
Prev 1 2 3 4 5 ... 10 Next
ADVERTISEMENT