State Form 53050 Notice of Intent (Noi) Form General Npdes Permit Ing410000 for Onsite Residential Sewage Discharging Disposal Systems in Allen County, in - Indiana

State Form 53050 Notice of Intent (Noi) Form General Npdes Permit Ing410000 for Onsite Residential Sewage Discharging Disposal Systems in Allen County, in - Indiana

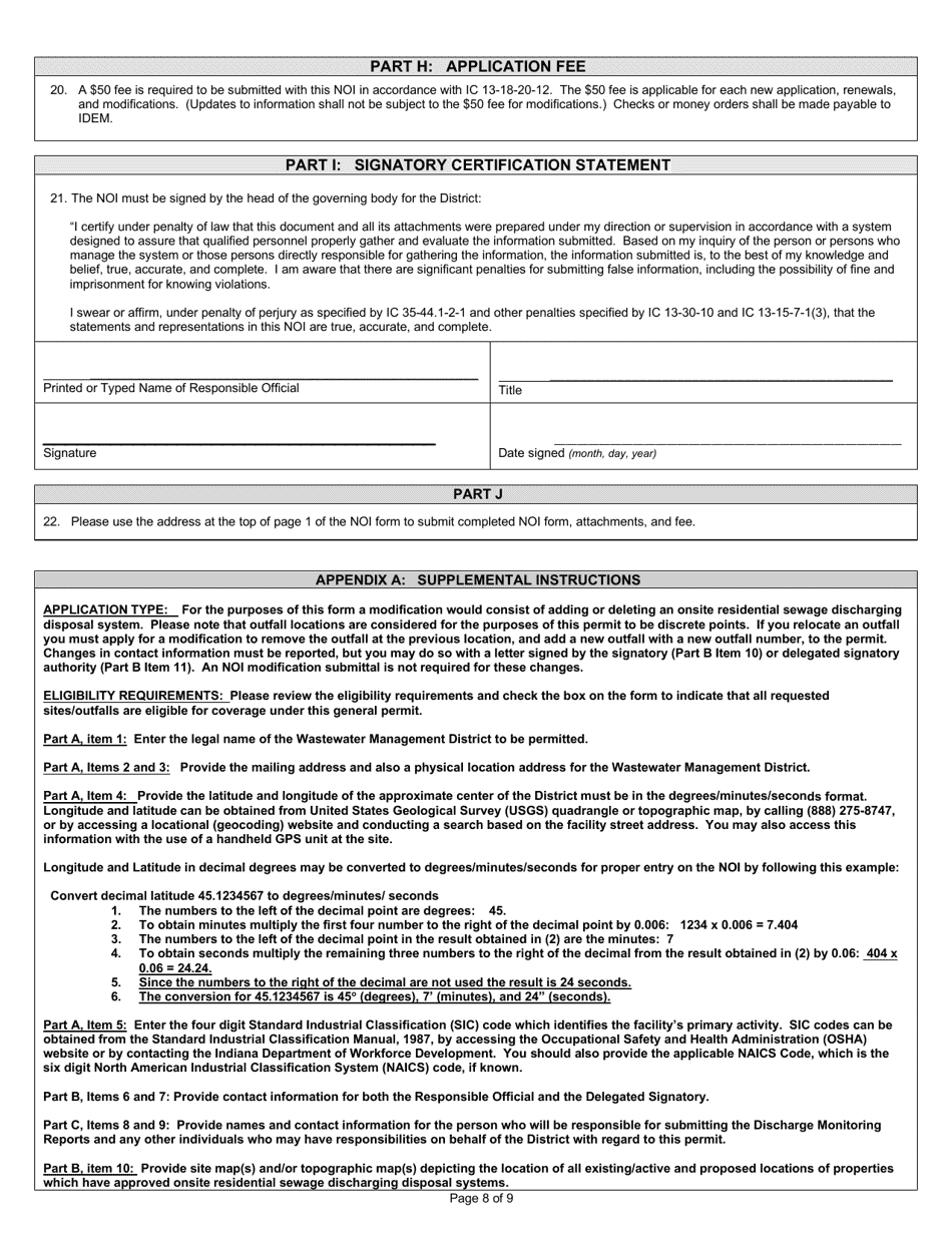
What Is State Form 53050?

This is a legal form that was released by the Indiana Department of Environmental Management - a government authority operating within Indiana. As of today, no separate filing guidelines for the form are provided by the issuing department.

FAQ

Q: What is Form 53050?
A: Form 53050 is a Notice of Intent (NOI) form.

Q: What is the purpose of Form 53050?
A: The purpose of Form 53050 is to obtain a General NPDES permit for onsite residential sewage disposal systems in Allen County, Indiana.

Q: What is NPDES?
A: NPDES stands for National Pollutant Discharge Elimination System, which is a permit program that regulates the discharge of pollutants into waters of the United States.

Q: What does General NPDES permit mean?
A: A General NPDES permit is a permit that covers multiple dischargers with similar operations or activities.

Q: What is an onsite residential sewage disposal system?
A: An onsite residential sewage disposal system is a system that is used to treat and dispose of sewage from residential properties on-site, usually through a septic tank and drainfield.

Q: Who needs to complete Form 53050?
A: Anyone who has an onsite residential sewage disposal system in Allen County, Indiana, and wishes to obtain a General NPDES permit needs to complete Form 53050.

Q: What should I do after completing Form 53050?
A: After completing Form 53050, you should submit it to the appropriate regulatory agency along with any required fees or supporting documents.

ADVERTISEMENT

Form Details:

  • Released on November 1, 2022;
  • The latest edition provided by the Indiana Department of Environmental Management;
  • Easy to use and ready to print;
  • Quick to customize;
  • Compatible with most PDF-viewing applications;
  • Fill out the form in our online filing application.

Download a fillable version of State Form 53050 by clicking the link below or browse more documents and templates provided by the Indiana Department of Environmental Management.

Download State Form 53050 Notice of Intent (Noi) Form General Npdes Permit Ing410000 for Onsite Residential Sewage Discharging Disposal Systems in Allen County, in - Indiana

4.3 of 5 (15 votes)
  • State Form 53050 Notice of Intent (Noi) Form General Npdes Permit Ing410000 for Onsite Residential Sewage Discharging Disposal Systems in Allen County, in - Indiana

    1

  • State Form 53050 Notice of Intent (Noi) Form General Npdes Permit Ing410000 for Onsite Residential Sewage Discharging Disposal Systems in Allen County, in - Indiana, Page 2

    2

  • State Form 53050 Notice of Intent (Noi) Form General Npdes Permit Ing410000 for Onsite Residential Sewage Discharging Disposal Systems in Allen County, in - Indiana, Page 3

    3

  • State Form 53050 Notice of Intent (Noi) Form General Npdes Permit Ing410000 for Onsite Residential Sewage Discharging Disposal Systems in Allen County, in - Indiana, Page 4

    4

  • State Form 53050 Notice of Intent (Noi) Form General Npdes Permit Ing410000 for Onsite Residential Sewage Discharging Disposal Systems in Allen County, in - Indiana, Page 5

    5

  • State Form 53050 Notice of Intent (Noi) Form General Npdes Permit Ing410000 for Onsite Residential Sewage Discharging Disposal Systems in Allen County, in - Indiana, Page 6

    6

  • State Form 53050 Notice of Intent (Noi) Form General Npdes Permit Ing410000 for Onsite Residential Sewage Discharging Disposal Systems in Allen County, in - Indiana, Page 7

    7

  • State Form 53050 Notice of Intent (Noi) Form General Npdes Permit Ing410000 for Onsite Residential Sewage Discharging Disposal Systems in Allen County, in - Indiana, Page 8

    8

  • State Form 53050 Notice of Intent (Noi) Form General Npdes Permit Ing410000 for Onsite Residential Sewage Discharging Disposal Systems in Allen County, in - Indiana, Page 9

    9

  • State Form 53050 Notice of Intent (Noi) Form General Npdes Permit Ing410000 for Onsite Residential Sewage Discharging Disposal Systems in Allen County, in - Indiana, Page 1
  • State Form 53050 Notice of Intent (Noi) Form General Npdes Permit Ing410000 for Onsite Residential Sewage Discharging Disposal Systems in Allen County, in - Indiana, Page 2
  • State Form 53050 Notice of Intent (Noi) Form General Npdes Permit Ing410000 for Onsite Residential Sewage Discharging Disposal Systems in Allen County, in - Indiana, Page 3
  • State Form 53050 Notice of Intent (Noi) Form General Npdes Permit Ing410000 for Onsite Residential Sewage Discharging Disposal Systems in Allen County, in - Indiana, Page 4
  • State Form 53050 Notice of Intent (Noi) Form General Npdes Permit Ing410000 for Onsite Residential Sewage Discharging Disposal Systems in Allen County, in - Indiana, Page 5
  • State Form 53050 Notice of Intent (Noi) Form General Npdes Permit Ing410000 for Onsite Residential Sewage Discharging Disposal Systems in Allen County, in - Indiana, Page 6
  • State Form 53050 Notice of Intent (Noi) Form General Npdes Permit Ing410000 for Onsite Residential Sewage Discharging Disposal Systems in Allen County, in - Indiana, Page 7
  • State Form 53050 Notice of Intent (Noi) Form General Npdes Permit Ing410000 for Onsite Residential Sewage Discharging Disposal Systems in Allen County, in - Indiana, Page 8
  • State Form 53050 Notice of Intent (Noi) Form General Npdes Permit Ing410000 for Onsite Residential Sewage Discharging Disposal Systems in Allen County, in - Indiana, Page 9
Prev 1 2 3 4 5 ... 9 Next
ADVERTISEMENT

Related Documents